センター南駅の賃貸オフィス・貸事務所情報
検索結果 8 件
並び替え
センター南ビル(横浜市都筑区、茅ケ崎中央、センター南、センター北)
- 所在地
- 神奈川県横浜市都筑区茅ケ崎中央3-1
- 最寄り駅
- センター南駅徒歩1分、センター北駅徒歩16分、都筑ふれあいの丘駅徒歩22分
- 竣工
- 1998年
- 規模
- 地上4階・地下3階
- 耐震基準
- 新耐震基準適合
- セキュリティ
- 機械警備(24時間監視)
- 駐車場設備
- 有
神奈川県横浜市都筑区茅ヶ崎中央のセンター南駅から徒歩1分の距離にある本物件は、駅前広場に隣接する視認性の高い賃貸オフィスです。1998年竣工の新耐震基準適合ビルで、2023年には地下1階区画と共用部のリニューアルが実施されました。3階の天井高2,700mmのオフィス空間に加え、2階は階高5,000mmを誇り、駅前広場からダイレクトに入館できる構造となっています。地下1階も窓面から採光が可能で、個別空調やOAフロアを完備しています。複数台収容可能な駐車場や駐輪場も備えており、多様な通勤形態に対応する機能性の高い貸事務所です。
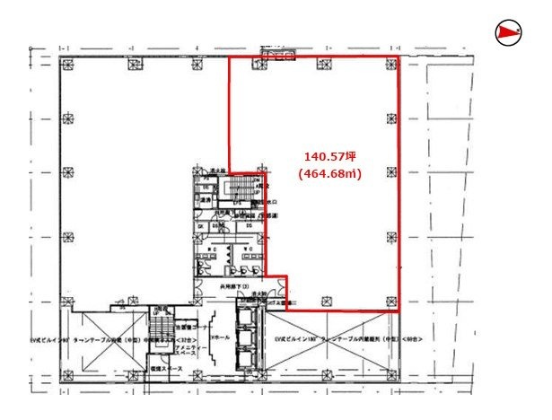
センター南ビル の募集区画 (総募集面積 503.13坪)
| 図面 | 階数 | 坪数 | 月額費用 | 坪単価 | 入居可能日 | |
|---|---|---|---|---|---|---|
![]() | B1階 | 180.27坪 | お問い合わせください | 即時 | 検討リスト お問い合わせ | |
![]() | B2階 | 12.61坪 | お問い合わせください | 即時 | 検討リスト お問い合わせ | |
![]() | 2階 | 158.35坪 | お問い合わせください | 2026/4/1 | 検討リスト お問い合わせ | |
![]() | 3階 | 151.90坪 | お問い合わせください | 2026/7/1 | 検討リスト お問い合わせ |
※月額費用、坪単価 ともに共益費込・税別の価格です
サウス・コア(横浜市都筑区、茅ケ崎中央、センター南、センター北)
- 所在地
- 神奈川県横浜市都筑区茅ケ崎中央8-33
- 最寄り駅
- センター南駅徒歩2分、センター北駅徒歩16分
- 竣工
- 2009年
- 規模
- 地上7階・地下2階
- 耐震基準
- 新耐震基準適合
- セキュリティ
- 機械警備(24時間監視)
- 駐車場設備
- 有(機械式100台)
- 設備
- リフレッシュコーナー、 トイレ男女別
センター南駅から徒歩2分の至近に位置するサウス・コアは、都筑区のビジネス拠点として高い存在感を放つハイグレードな賃貸オフィスです。2009年竣工のSRC造(鉄骨鉄筋コンクリート造)による堅牢な構造に加え、計3基のエレベーターや100台収容の駐車場など、大規模ビルに匹敵する充実した設備を誇ります。館内にはリフレッシュコーナーが設けられ、ワーカーの快適性にも配慮されています。駅前の利便性を享受しながら、最新のセキュリティ環境のもとで事業を展開できる、地域屈指の優良物件です。
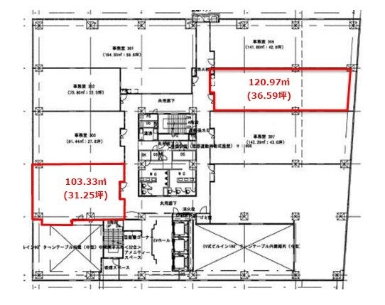
サウス・コア の募集区画 (総募集面積 177.16坪)
※月額費用、坪単価 ともに共益費込・税別の価格です
プレミアヨコハマ(横浜市都筑区、中川中央、センター北、センター南)
- 所在地
- 神奈川県横浜市都筑区中川中央1-30-1
- 最寄り駅
- センター北駅徒歩1分、センター南駅徒歩16分
- 竣工
- 2013年
- 規模
- 地上7階・地下1階
- 耐震基準
- 新耐震基準適合
- セキュリティ
- 機械警備・有人管理(24時間体制)
- 駐車場設備
- 有(235台(機械式72台、自走式163台))
- 設備
- 複合施設
プレミアヨコハマは、横浜市営地下鉄センター北駅近接の神奈川県横浜市都筑区中川中央に位置する地上7階建ての複合施設です。大規模リニューアルにより、オフィス・シェアオフィス・商業施設が融合した新しい形態へ生まれ変わりました。リニューアル後はオフィステナント様の入居により一日平均450名程度の館内人口増加を想定し、集客力を高めています。駐車場235台(機械式72台、自走式163台、24時間営業)完備、グランピングレストラン・イベントホール・美容系サービス・飲食店など充実した施設構成で、利便性の高い環境を整えています。
プレミアヨコハマ の募集区画 (総募集面積 99.24坪)
※月額費用、坪単価 ともに共益費込・税別の価格です











































