物件情報を探す
検索結果 1016 件
並び替え
ネスティングパーク黒川ビル(川崎市麻生区、黒川、はるひ野、若葉台)
- 所在地
- 神奈川県川崎市麻生区黒川4-2
- 最寄り駅
- 黒川駅徒歩1分、はるひ野駅徒歩12分、若葉台駅徒歩16分
- 竣工
- 2019年
- 規模
- 地上1階
- 耐震基準
- 新耐震基準適合
- セキュリティ
- 機械警備(24時間監視)
- 駐車場設備
- 要確認
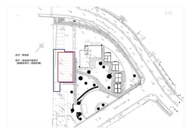
ネスティングパーク黒川は、黒川駅徒歩1分に誕生した「働く・遊ぶ・暮らす」をテーマにした複合施設です。2019年竣工の木造平屋建てで、広大な敷地にウッドデッキや植栽を配した開放的な空間が魅力。募集区画は約60坪のスケルトン仕様で、天井高を活かした開放的な店舗やオフィスが実現可能です。都心のビルでは得られない、自然と調和した創造的な拠点をお探しの企業様に自信を持っておすすめします。
ネスティングパーク黒川ビル の募集区画 (総募集面積 60.25坪)
※月額費用、坪単価 ともに共益費込・税別の価格です
橋本MNビル(相模原市緑区、橋本)
- 所在地
- 神奈川県相模原市緑区橋本3-25-1
- 最寄り駅
- 橋本駅徒歩3分
- 竣工
- 1992年
- 規模
- 地上8階
- 耐震基準
- 新耐震基準適合
- セキュリティ
- 機械警備(24時間監視)
- 駐車場設備
- 要確認
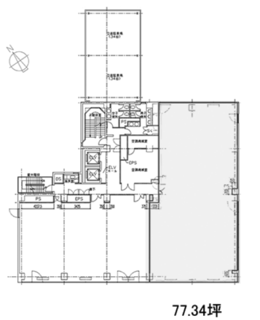
橋本MNビル の募集区画 (総募集面積 77.32坪)
※月額費用、坪単価 ともに共益費込・税別の価格です
アゴラ大船(鎌倉市、大船)
- 所在地
- 神奈川県鎌倉市大船1-24-30
- 最寄り駅
- 大船駅徒歩2分
- 竣工
- 2023年
- 規模
- 地上5階
- 耐震基準
- 新耐震基準適合
- セキュリティ
- 機械警備(24時間監視)
- 駐車場設備
- 要確認
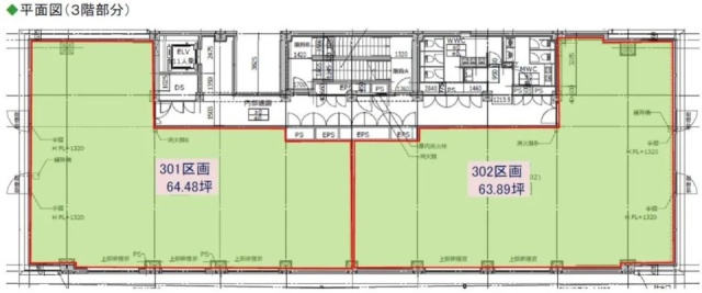
アゴラ大船 の募集区画 (総募集面積 63.89坪)
※月額費用、坪単価 ともに共益費込・税別の価格です
本厚木トーセイビルⅡ(厚木市、中町、本厚木、厚木)
- 所在地
- 神奈川県厚木市中町4-9-18
- 最寄り駅
- 本厚木駅徒歩6分、厚木駅徒歩25分
- 竣工
- 1995年
- 規模
- 地上8階
- 耐震基準
- 新耐震基準適合
- セキュリティ
- 機械警備・有人管理(24時間体制)
- 駐車場設備
- 有
本厚木トーセイビルⅡは、小田急線「本厚木」駅徒歩6分に位置する地上8階建のオフィスビルです。1995年竣工で、天井高2,560mm、OAフロア40mm、床荷重300kg/㎡と、日常業務に必要なスペックを備えています。個別空調により快適な執務環境を維持しやすく、エレベーターは1基を設置。機械式駐車場は空きがあり、入庫制限(全長4,950mm等)に対応した車両で利用できます。実用性と利便性を兼ね備えたバランスの良い物件です。
本厚木トーセイビルⅡ の募集区画 (総募集面積 67.78坪)
※月額費用、坪単価 ともに共益費込・税別の価格です
米新ビル(厚木市、中町、本厚木)
- 所在地
- 神奈川県厚木市中町2-1-15
- 最寄り駅
- 本厚木駅徒歩1分
- 竣工
- 1979年
- 規模
- 地上7階
- 耐震基準
- 耐震補強済み(新耐震相当)
- 駐車場設備
- 要確認
米新ビル の募集区画 (総募集面積 61.51坪)
※月額費用、坪単価 ともに共益費込・税別の価格です
5風来館(静岡市葵区、呉服町、静岡、新静岡)
- 所在地
- 静岡県静岡市葵区呉服町2-1-5
- 最寄り駅
- 静岡駅徒歩9分、新静岡駅徒歩8分
- 竣工
- 1997年
- 規模
- 地上8階・地下1階
- 耐震基準
- 新耐震基準適合
- セキュリティ
- 機械警備(24時間監視)
- 駐車場設備
- 要確認
5風来館 の募集区画 (総募集面積 76.89坪)
※月額費用、坪単価 ともに共益費込・税別の価格です
名古屋国際センタービル(名古屋市中村区、那古野)
- 所在地
- 愛知県名古屋市中村区那古野1-47-1
- 竣工
- 1984年
- 規模
- 地上26階・地下3階
- 耐震基準
- 新耐震基準適合
- セキュリティ
- 機械警備・有人管理(24時間体制)
- 駐車場設備
- 要確認
名古屋国際センタービル の募集区画 (総募集面積 89.13坪)
※月額費用、坪単価 ともに共益費込・税別の価格です
エニシオ名駅(名古屋市中村区、名駅)
- 所在地
- 愛知県名古屋市中村区名駅4-801-803
- 竣工
- 2023年
- 規模
- 地上16階・地下2階
- 耐震基準
- 新耐震基準適合
- セキュリティ
- 機械警備(24時間監視)
- 駐車場設備
- 要確認
エニシオ名駅 の募集区画 (総募集面積 161.66坪)
※月額費用、坪単価 ともに共益費込・税別の価格です
いちご栄ビル(名古屋市中区、栄)
- 所在地
- 愛知県名古屋市中区栄3-15-27
- 竣工
- 1982年
- 規模
- 地上11階・地下1階
- 駐車場設備
- 要確認
いちご栄ビル の募集区画 (総募集面積 74.53坪)
※月額費用、坪単価 ともに共益費込・税別の価格です
I-FOREST名古屋伏見ビル(名古屋市中区、錦)
- 所在地
- 愛知県名古屋市中区錦2-8-1
- 竣工
- 2024年
- 規模
- 地上10階・地下1階
- 耐震基準
- 新耐震基準適合
- セキュリティ
- 機械警備(24時間監視)
- 駐車場設備
- 要確認
I-FOREST名古屋伏見ビル の募集区画 (総募集面積 65.28坪)
※月額費用、坪単価 ともに共益費込・税別の価格です
関電不動産西本町ビル(大阪市西区、阿波座)
- 所在地
- 大阪府大阪市西区阿波座1-3-15
- 竣工
- 1988年
- 規模
- 地上11階・地下1階
- 耐震基準
- 新耐震基準適合
- 駐車場設備
- 要確認
関電不動産西本町ビル の募集区画 (総募集面積 65.28坪)
※月額費用、坪単価 ともに共益費込・税別の価格です
新大阪第一生命ビル(大阪市淀川区、宮原)
- 所在地
- 大阪府大阪市淀川区宮原3-5-24
- 竣工
- 1986年
- 規模
- 地上14階・地下2階
- 耐震基準
- 新耐震基準適合
- 駐車場設備
- 要確認
新大阪第一生命ビル の募集区画 (総募集面積 138.90坪)
※月額費用、坪単価 ともに共益費込・税別の価格です
トレードピア淀屋橋(大阪市中央区、今橋)
- 所在地
- 大阪府大阪市中央区今橋2-5-8
- 竣工
- 1975年
- 規模
- 地上21階・地下3階
- 駐車場設備
- 要確認
トレードピア淀屋橋 の募集区画 (総募集面積 83.83坪)
※月額費用、坪単価 ともに共益費込・税別の価格です
JRE堺筋本町ビル(大阪市中央区、南本町)
- 所在地
- 大阪府大阪市中央区南本町1-8-14
- 竣工
- 1992年
- 規模
- 地上13階・地下2階
- 耐震基準
- 新耐震基準適合
- 駐車場設備
- 要確認
JRE堺筋本町ビル の募集区画 (総募集面積 90.74坪)
※月額費用、坪単価 ともに共益費込・税別の価格です























































