中原町(川越市)の賃貸オフィス・貸事務所情報

検索結果 13

並び替え

(仮)本川越駅前新築工事(川越市、中原町、本川越)

所在地
埼玉県川越市中原町2-25-2
最寄り駅
本川越駅徒歩1分、川越市駅徒歩7分
竣工
2026年
規模
地上4階
耐震基準
新耐震基準適合
駐車場設備
要確認
(仮称)本川越駅前新築工事は、2026年3月竣工予定の新築賃貸オフィスビルです。西武新宿線本川越駅から徒歩わずか1分という抜群の立地に位置し、各階約124.51坪という広々とした執務空間を確保しています。年間約732万人の観光客が訪れる川越市の玄関口に立地し、駅前という高い視認性により企業イメージの向上に貢献します。複数フロアからの検討も可能で、開業スケジュールを立てやすい環境です。新築ならではの最新設備と快適な執務環境で、貴社のビジネスを力強くサポートいたします。

(仮)本川越駅前新築工事 の募集区画 (総募集面積 498.05坪)

図面 階数 坪数 月額費用 坪単価 入居可能日
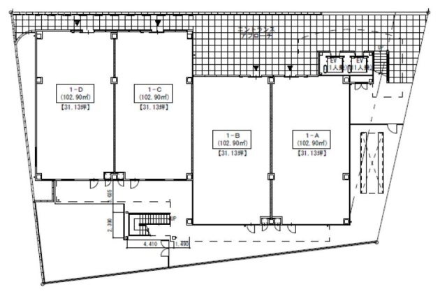
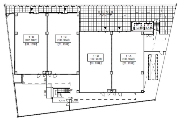
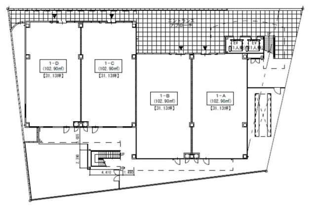
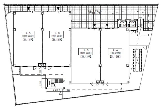
(仮)本川越駅前新築工事A 間取り図
1階31.13坪お問い合わせください2026/4
検討リスト
お問い合わせ
(仮)本川越駅前新築工事B 間取り図
1階31.13坪お問い合わせください2026/4
検討リスト
お問い合わせ
(仮)本川越駅前新築工事C 間取り図
1階31.13坪お問い合わせください2026/4
検討リスト
お問い合わせ
(仮)本川越駅前新築工事D 間取り図
1階31.13坪お問い合わせください2026/4
検討リスト
お問い合わせ
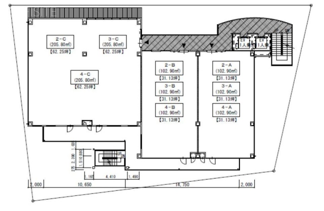
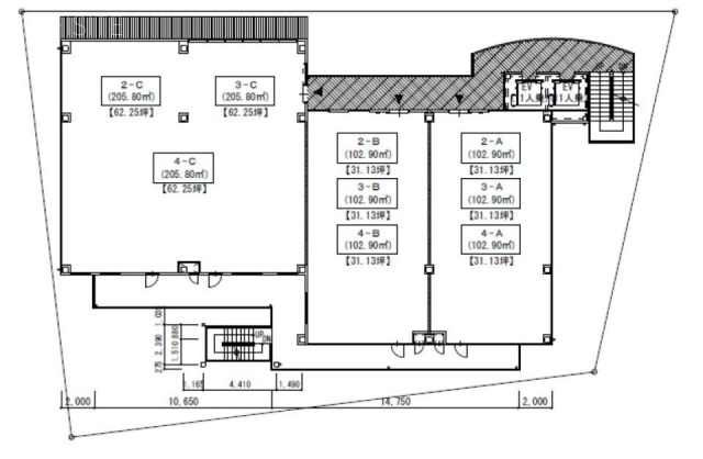
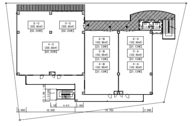
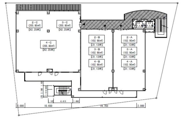
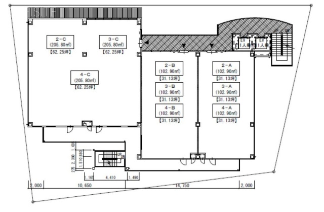
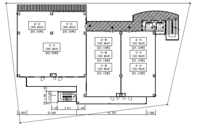
(仮)本川越駅前新築工事A 間取り図
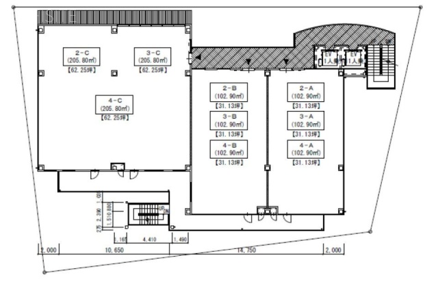
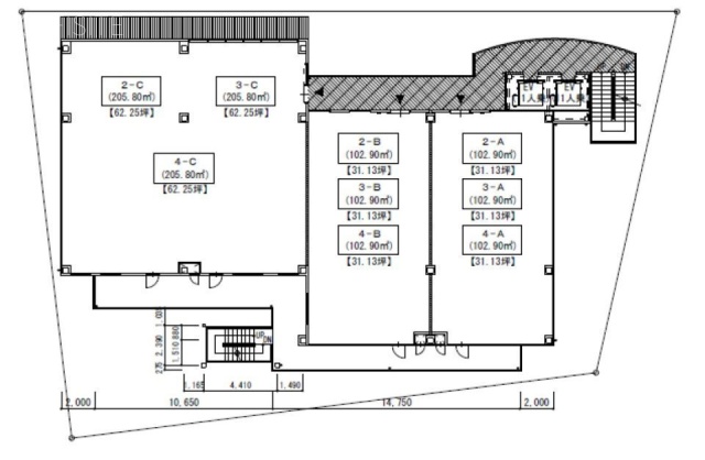
2階31.13坪お問い合わせください2026/4
検討リスト
お問い合わせ
(仮)本川越駅前新築工事A 間取り図
3階31.13坪お問い合わせください2026/4
検討リスト
お問い合わせ
(仮)本川越駅前新築工事A 間取り図
4階31.13坪お問い合わせください2026/4
検討リスト
お問い合わせ
(仮)本川越駅前新築工事B 間取り図
2階31.13坪お問い合わせください2026/4
検討リスト
お問い合わせ
(仮)本川越駅前新築工事C 間取り図
2階62.25坪お問い合わせください2026/4
検討リスト
お問い合わせ
(仮)本川越駅前新築工事B 間取り図
3階31.13坪お問い合わせください2026/4
検討リスト
お問い合わせ
(仮)本川越駅前新築工事C 間取り図
3階62.25坪お問い合わせください2026/4
検討リスト
お問い合わせ
(仮)本川越駅前新築工事B 間取り図
4階31.13坪お問い合わせください2026/4
検討リスト
お問い合わせ
(仮)本川越駅前新築工事C 間取り図
4階62.25坪お問い合わせください2026/4
検討リスト
お問い合わせ

※月額費用、坪単価 ともに共益費込・税別の価格です

町名から検索

こだわり簡易検索

東京主要エリア一覧

LINEで
相談