仲町(さいたま市大宮区)の賃貸オフィス・貸事務所情報
大宮駅東口の南側に位置し、高度な都市機能と落ち着いた執務環境が両立するエリアです。「Vスクエア大宮」や「大宮NSDビル」、「大宮仲町センタービル」など、高機能な事務所ビルが集積。中心部の利便性を維持しつつ、腰を据えて実務に専念したい専門事務所や地域拠点に最適な立地です。
検索結果 2 件
並び替え
Pleasure Omiya(さいたま市大宮区仲町)
編集中
- 所在地
- 埼玉県さいたま市大宮区仲町2-61-3
- 最寄り駅
- 大宮駅徒歩5分
- 竣工
- 2025年
- 規模
- 地上7階
- 耐震基準
- 新耐震基準適合
- 駐車場設備
- 要確認
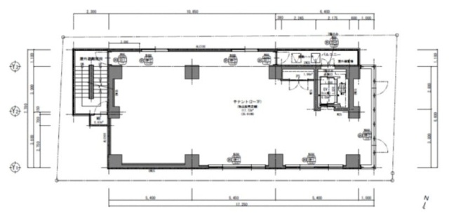
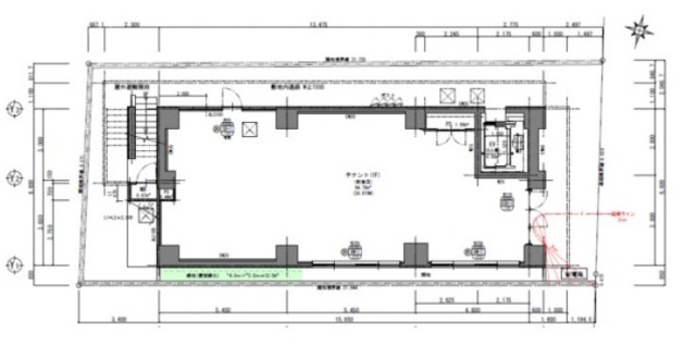
Pleasure Omiya の募集区画 (総募集面積 64.28坪)
※月額費用、坪単価 ともに共益費込・税別の価格です
「仲町」エリアは、大宮駅東口の繁華街から程よく離れた、安定感のあるビジネスゾーンです。エリア内には、企業の信頼性を象徴する「Vスクエア大宮」をはじめ、ワンフロア100坪超の大規模スペースを確保できる物件や、管理の行き届いた「ビジョナリーⅢ」などの優良ビルが点在しています。最大の特徴は、駅至近の卓越した交通網を日常的に活用しながらも、静粛な就業環境を確保できる点にあり、士業、デザイン、コンサルティングなどの専門職から高い支持を得ています。また、周辺には「住友生命大宮第2ビル」のように、大手法人が入居する実力派ビルも多く、独自のビジネスコミュニティが形成されています。飲食店やコンビニエンスストアも密集しており、従業員の利便性は秀でた水準にあります。実務効率とステータスを高い次元で両立させたい企業にとって、仲町のアドレスは長期的な安定をもたらす魅力的な選択肢となるはずです。

