反町駅の賃貸オフィス・貸事務所情報
東急東横線「反町駅」。横浜駅からわずか約1km、徒歩圏内でありながら、落ち着いた住環境と商店街の賑わいが共存する、横浜の「奥座敷」とも言えるエリアです。JR横浜駅や地下鉄三ツ沢下町駅も利用可能なマルチアクセス性を保持。横浜の巨大なビジネスインフラを庭のように使いこなしつつ、静穏で実利ある環境を求める法人にとって、最高水準の戦略的拠点です。
検索結果 7 件
並び替え
京浜興産コヤマビル(横浜市神奈川区神奈川・東神奈川・反町)
- 所在地
- 神奈川県横浜市神奈川区神奈川2-18-16
- 最寄り駅
- 東神奈川駅徒歩4分、神奈川駅徒歩13分、反町駅徒歩16分
- 竣工
- 1990年
- 規模
- 地上7階
- 耐震基準
- 新耐震基準適合
- セキュリティ
- 機械警備(24時間監視)
- 駐車場設備
- 要確認
JR「東神奈川駅」から徒歩4分、京急「京急東神奈川駅」からも徒歩5分。横浜の中枢へも都内へも軽快にアクセスできる好立地に佇むのが「京浜興産コヤマビル」です。1990年竣工、新耐震基準をクリアしたSRC造(鉄骨鉄筋コンクリート造)の7階建てビル。最大の特徴は、駅近の利便性を享受しながら、1フロア1テナントによる高い独立性と男女別トイレを備えた快適な仕様にあります。室内には個別空調を完備し、24時間監視の機械警備によってセキュリティ面も万全。自社のリズムで効率的に業務を遂行できるスペックが整っています。第一京浜に近い視認性の高さと、周辺の落ち着いた環境が融合。横浜エリアの営業拠点や、集中を要する士業、クリエイティブ事務所に最適な、機能性と快適性を兼ね備えた一棟です。
京浜興産コヤマビル の募集区画 (総募集面積 59.96坪)
※月額費用、坪単価 ともに共益費込・税別の価格です
ヨコハマポートサイドビル(横浜市神奈川区栄町・反町)
- 所在地
- 神奈川県横浜市神奈川区栄町8-1
- 最寄り駅
- 神奈川駅徒歩6分、横浜駅徒歩12分、反町駅徒歩13分
- 竣工
- 1994年
- 規模
- 地上11階・地下1階
- 耐震基準
- 新耐震基準適合
- セキュリティ
- 機械警備(24時間監視)
- 駐車場設備
- 有(機械式50台)
横浜駅北口から徒歩9分、神奈川駅から徒歩5分の位置にある横浜市神奈川区栄町の貸事務所です。1994年竣工のSRC造地上11階建てで、美しいガラス張りのフォルムが視認性を高めています。室内は天井高2,550mm、50mmのOAフロアを備えた整形空間で、効率的なオフィスレイアウトが可能です。横浜ベイクォーターを経由する屋根付き通路が物件近くまで整備されており、天候に左右されにくい快適なアプローチが大きな強みです。常駐管理と機械警備を併用した高いセキュリティ体制も、安心のビジネス環境を支えます。
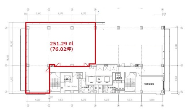
ヨコハマポートサイドビル の募集区画 (総募集面積 121.18坪)
| 図面 | 階数 | 坪数 | 月額費用 | 坪単価 | 入居可能日 | |
|---|---|---|---|---|---|---|
![]() | 11階 | 76.02坪 | 賃料を確認する (無料・1分) | 2026/9/上 | 検討リスト お問い合わせ | |
![]() | 3階 | 45.16坪 | 賃料を確認する (無料・1分) | 2026/9/上 | 検討リスト お問い合わせ |
※月額費用、坪単価 ともに共益費込・税別の価格です
Jプロ高島台ノースビル(横浜市神奈川区沢渡・反町)
- 所在地
- 神奈川県横浜市神奈川区沢渡1-2
- 最寄り駅
- 横浜駅徒歩10分、反町駅徒歩11分
- 竣工
- 1963年
- 規模
- 地上6階
- セキュリティ
- 機械警備・有人管理(24時間体制)
- 駐車場設備
- 有
- 設備
- リフレッシュコーナー、 トイレ男女別
Jプロ高島台ノースビルは、巨大ターミナル横浜駅から徒歩10分、西口の喧騒を抜けた高台の閑静なビジネスエリアに位置するオフィスビルです。地上6階建ての本物件は、基準階面積約186坪の広さを持ち、ワンスパンからの分割相談も可能な柔軟性が魅力です。天井高2,680mmの開放的な室内には個別空調やOAフロアを備え、機能的な執務空間を提供。特筆すべきはビル内の充実した付帯施設で、共用会議室やリフレッシュルーム、さらにミニスーパーまで完備しており、ワーカーの利便性を最大限に高めています。管理人常駐と機械警備の併用による盤石のセキュリティ体制と、裏手に広がる公園の緑が、安心感と集中力を両立させる理想的なビジネス環境を実現しています。
Jプロ高島台ノースビル の募集区画 (総募集面積 42.51坪)
| 図面 | 階数 | 坪数 | 月額費用 | 坪単価 | 入居可能日 | |
|---|---|---|---|---|---|---|
![]() | 5階 | 42.51坪 | 賃料を確認する (無料・1分) | 即時 | 検討リスト お問い合わせ |
※月額費用、坪単価 ともに共益費込・税別の価格です
CRANE CORNER(横浜市神奈川区鶴屋町・反町)
- 所在地
- 神奈川県横浜市神奈川区鶴屋町3-29-4
- 最寄り駅
- 横浜駅徒歩7分、神奈川駅徒歩14分、反町駅徒歩15分
- 竣工
- 2021年
- 規模
- 地上8階・地下1階
- 耐震基準
- 新耐震基準適合
- セキュリティ
- 機械警備(24時間監視)
- 駐車場設備
- 有(13台 【 駐輪場65台 2段式含む】)
- 設備
- 土日祝エントランス開放、 駐輪場
CRANE CORNERは、2021年10月に竣工した横浜エリアでも希少な築浅のオフィスビルです。横浜駅から徒歩7分、環状1号線と鶴屋町3丁目交差点に面した角地という抜群の視認性を誇ります。本物件の大きな特徴は、会議室や集中ブース、執務用什器を備えた居抜きでの引き渡しが相談可能な点にあります。内装構築のコストと時間を大幅に削減でき、入居後すぐに業務を開始できるスピード感が魅力です。天井高2,700mmの開放的な空間には、個別空調やOAフロアなど最新のスペックが整っており、全日開放のエントランスが高い利便性を提供します。
CRANE CORNER の募集区画 (総募集面積 27.35坪)
| 図面 | 階数 | 坪数 | 月額費用 | 坪単価 | 入居可能日 | |
|---|---|---|---|---|---|---|
![]() | 4階 | 27.35坪 | 賃料を確認する (無料・1分) | 2026/5/22 | 検討リスト お問い合わせ |
※月額費用、坪単価 ともに共益費込・税別の価格です
共栄ビル(横浜市西区南幸・反町)
- 所在地
- 神奈川県横浜市西区南幸2-20-2
- 最寄り駅
- 横浜駅徒歩6分、反町駅徒歩6分
- 竣工
- 1974年
- 規模
- 地上11階
- セキュリティ
- 機械警備・有人管理(24時間体制)
- 駐車場設備
- 無
- 設備
- トイレ男女別
共栄ビルは、横浜最大の商業・ビジネス拠点である「横浜駅」周辺エリアにおいて、抜群のフットワークを誇る賃貸オフィスビルです。JR・私鉄・地下鉄など合計6路線が乗り入れる横浜駅から徒歩4分という立地は、来客の多い業種や、採用力を重視する企業様にとって大きなアドバンテージとなります。1974年竣工ながら、管理の行き届いた貸室内は白を基調とした清潔感のある印象で、20坪〜30坪前後のコンパクトなサイズ感は、独立・開業や横浜エリアへの新規進出に最適です。セキュリティ面では機械警備と有人警備を併用しており、24時間稼働可能な体制を整えているため、深夜業務が発生するIT系企業様や士業の方でも安心してご利用いただけます。トイレや給湯スペースが共用部に集約されているため、28.13坪の専有面積を無駄なく執務スペースとして活用できる点も魅力。周辺には「南幸」エリア特有の豊富な飲食店やコンビニ、銀行が揃っており、オン・オフともに充実したビジネスライフをサポートする、ポテンシャルの高い一棟です。
共栄ビル の募集区画 (総募集面積 52.63坪)
| 図面 | 階数 | 坪数 | 月額費用 | 坪単価 | 入居可能日 | |
|---|---|---|---|---|---|---|
![]() | 6階 | 24.50坪 | 賃料を確認する (無料・1分) | 相談 | 検討リスト お問い合わせ | |
![]() | 9階 | 28.13坪 | 賃料を確認する (無料・1分) | 即時 | 検討リスト お問い合わせ |
※月額費用、坪単価 ともに共益費込・税別の価格です
【エリアのオフィス市況】
横浜駅周辺の喧騒を避けた、管理状態の良い中小型ビルや事務所物件が中心のマーケットです。賃料相場は横浜駅中心部に比べて非常に合理的であり、コストパフォーマンスを追求するIT、各種士業、デザイン、コンサルティング、サテライトオフィスに最適。社会的信用を保てるクリーンなビルが見つかりやすく、固定費を抑えながらも国内有数のターミナル至近というステータスを享受できる、極めて投資対効果の高い環境が整っています。
【交通アクセスと採用メリット】
東横線の活用により横浜駅まで約2分、渋谷方面へも直通アクセス可能です。さらに横浜駅まで徒歩移動が可能なため、JR・地下鉄各線への接続も最強の武器となります。駅周辺には飲食店が充実しており、ランチ環境は良好。良好な治安と落ち着いた都市環境は働く人々に安心感を与え、圧倒的な交通利便性が社員の満足度と採用競争力を最大化する、就業環境に極めて優れたエリアです。





















































