野方駅の賃貸オフィス・貸事務所情報
西武新宿線「野方駅」。駅を囲む5つの商店街が圧倒的な活気を放つ、中野区屈指の「グルメと生活の街」です。賑やかなエネルギーに満ちたこの街は、働く人々に毎日新しい刺激と活力を与えます。
検索結果 2 件
並び替え
ハイネス野方ビル(中野区野方)
- 所在地
- 東京都中野区野方5-4-13
- 最寄り駅
- 野方駅徒歩2分
- 竣工
- 1971年
- 規模
- 地上8階・地下1階
- セキュリティ
- 機械警備(24時間監視)
- 駐車場設備
- 有
- 設備
- トイレ男女別
ハイネス野方は、中野区野方の活気ある商店街エリアに位置する、地上8階建ての賃貸オフィス物件です。西武新宿線「野方駅」からわずか徒歩2分という卓越したロケーションを誇り、西武新宿駅へのスムーズなアクセスを可能にします。1971年竣工の建物は、上階がマンション、地下1階から1階部分が独立性の高い事務所仕様となっており、地域に根差した拠点として最適です。今回募集の地下1階区画は約64坪の広さを持ち、駅近の賑わいから一歩離れた静穏な執務空間を確保できます。ビルのすぐ側にはファミリーマートや郵便局、三菱UFJ銀行が揃い、ランチスポットや日用品の買い物に困ることはありません。敷金4ヶ月というリーズナブルな設定も魅力。駅前の利便性を最大限に活かしつつ、固定費を抑えて広いスペースを確保したい企業様に自信を持っておすすめいたします。
ハイネス野方ビル の募集区画 (総募集面積 64.11坪)
※月額費用、坪単価 ともに共益費込・税別の価格です
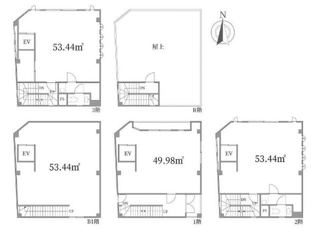
中野ESビル(中野区大和町・野方)
編集中
- 所在地
- 東京都中野区大和町1-14-6
- 最寄り駅
- 野方駅徒歩9分
- 竣工
- 1996年
- 規模
- 地上3階・地下1階
- 耐震基準
- 新耐震基準適合
- 駐車場設備
- 要確認
中野ESビル の募集区画 (総募集面積 63.61坪)
※月額費用、坪単価 ともに共益費込・税別の価格です
【エリアのオフィス市況】
野方エリアは、商店街の賑わいを背景にした視認性の高い路面物件や、周辺の中小型ビルが活発に動いているマーケットです。賃料相場はリーズナブルで、広告効果を期待したい店舗併用事務所や、若手社員の定着を狙うスタートアップに最適。環七通りに近いため、車での移動もスムーズであり、物流やサービス拠点としてのポテンシャルも秘めています。
【交通アクセスと採用メリット】
西武新宿まで約12分。高円寺や中野方面へのバス便も非常に多く、JR中央線沿線の優秀な人材を惹きつけることが可能です。何より、商店街の安くて美味しいランチ環境は、従業員のモチベーションを直接的に高め、「この街で働いていて楽しい」という実感を生みます。


