武蔵溝ノ口駅、溝の口駅の賃貸オフィス・貸事務所情報
検索結果 2 件
並び替え
新溝ノ口ビル(川崎市高津区、久本、武蔵溝ノ口、溝の口)
- 所在地
- 神奈川県川崎市高津区久本3-5-7
- 最寄り駅
- 武蔵溝ノ口駅徒歩8分、溝の口駅徒歩10分、高津駅徒歩14分
- 竣工
- 1988年
- 規模
- 地上5階・地下1階
- 耐震基準
- 新耐震基準適合
- セキュリティ
- 機械警備・有人管理(24時間体制)
- 駐車場設備
- 有(【平日土】7:30~19:00/開 【日祝日】閉 ※時間外は通用口よりカードキーにて入館可)
- 設備
- リフレッシュコーナー、 喫煙室
新溝ノ口ビルはJR武蔵溝ノ口駅徒歩8分、東急溝の口駅徒歩10分に位置し、渋谷駅まで急行15分でアクセス可能です。株式会社日本設計による設計で1988年竣工の地上5階建、基準階面積721.17坪、天井高2,750mm、OAフロア140mmです。吹抜けのパティオ、リフレッシュスペース・喫煙ルーム完備で、開放感のある広々としたエントランスホールが特徴です。
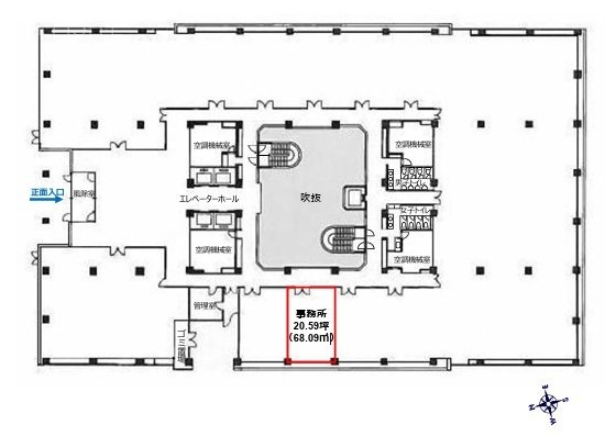
新溝ノ口ビル の募集区画 (総募集面積 41.18坪)
| 図面 | 階数 | 坪数 | 月額費用 | 坪単価 | 入居可能日 | |
|---|---|---|---|---|---|---|
準備中 | 5階 | 20.59坪 | お問い合わせください | 2026/4/1 | 検討リスト お問い合わせ | |
![]() | 1階 | 20.59坪 | お問い合わせください | 2026/2/1 | 検討リスト お問い合わせ |
※月額費用、坪単価 ともに共益費込・税別の価格です










