神田駅、100坪~200坪の賃貸オフィス・貸事務所情報
検索結果 1 件
並び替え
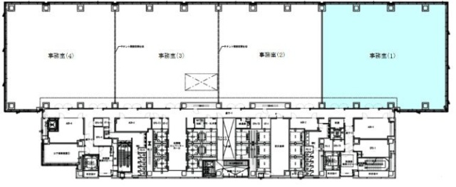
大手町ゲートビルディング(千代田区、内神田、大手町、神田)
- 所在地
- 東京都千代田区内神田1-31-11
- 最寄り駅
- 大手町駅徒歩3分、神田駅徒歩6分
- 竣工
- 2026年
- 規模
- 地上26階・地下3階
- 耐震基準
- 新耐震基準適合・免震構造
- セキュリティ
- 機械警備・有人管理(24時間体制)
- 駐車場設備
- 有
- 設備
- 24時間(要ICカード)、 防災センター、 非接触ICカード、 セキュリティゲート(フラッパーゲート)、 非常用発電機、 省エネ・環境配慮
大手町駅徒歩3分、ZEB Ready・CASBEE Sランク・BCP電源完備。VAV空調を採用した高環境性能の新築大規模オフィスビル。
大手町ゲートビルディング の募集区画 (総募集面積 179.19坪)
※月額費用、坪単価 ともに共益費込・税別の価格です

