上野駅、200坪以上の賃貸オフィス・貸事務所情報
新幹線各線、JR在来線、東京メトロ銀座線・日比谷線が乗り入れる北の玄関口「上野駅」。上野公園の文化施設やアメ横の賑わいと、歴史あるオフィス街が共存する多面的なエリアです。
検索結果 3 件
並び替え
JMFビル上野01(台東区東上野・稲荷町・入谷)
- 所在地
- 東京都台東区東上野5-24-8
- 最寄り駅
- 上野駅徒歩7分、稲荷町駅徒歩6分、入谷駅徒歩7分
- 竣工
- 1993年
- 規模
- 地上11階・地下2階
- 耐震基準
- 新耐震基準適合
- 駐車場設備
- 有(機械式72台)
- 設備
- 24時間(要ICカード)、 貨物EVあり、 トイレ男女別
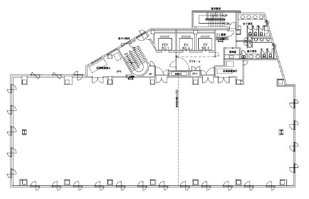
上野エリアの主要幹線道路である清洲橋通りに面し、JR・地下鉄3駅から徒歩7分という利便性を兼ね備えた大規模オフィスビルです。1993年竣工、延床面積約3,063坪のスケール感に加え、2025年10月には共用部の大規模リニューアルが完了しており、洗練された現代的な空間へと生まれ変わりました。基準階は約205坪の広々とした整形無柱空間で、効率的なデスク配置や部署ごとのゾーニングが容易です。天井高2,600mmの開放感と個別空調により、快適な執務環境を維持。72台収容可能な機械式駐車場を完備し、2026年にはバリアフリートイレの設置も予定されるなど、多様な働き方と高い機能性を支えるインフラが整っています。上野エリアでブランド力と実用性を兼ね備えた拠点を求める企業に推奨される賃貸事務所です。
JMFビル上野01 の募集区画 (総募集面積 615.60坪)
| 図面 | 階数 | 坪数 | 月額費用 | 坪単価 | 入居可能日 | |
|---|---|---|---|---|---|---|
![]() | 8階 | 205.20坪 | 賃料を確認する (無料・1分) | 即時 | 検討リスト お問い合わせ | |
![]() | 9階 | 205.20坪 | 賃料を確認する (無料・1分) | 即時 | 検討リスト お問い合わせ | |
![]() | 10階 | 205.20坪 | 賃料を確認する (無料・1分) | 即時 | 検討リスト お問い合わせ |
※月額費用、坪単価 ともに共益費込・税別の価格です
【エリアのオフィス市況】
上野駅周辺の東上野エリアは、昭和通り沿いに重厚なオフィスビルが立ち並び、パチンコメーカー、宝飾関連、商社などが集積しています。東京駅周辺に比べて賃料が手頃で利便性は同等クラス。緑豊かな環境も近く、クリエイティブな企業にも選ばれています。
【交通アクセスと採用メリット】
京成上野駅から成田空港へ直結。埼玉・千葉・茨城・栃木・群馬といった北関東全域からの通勤圏となります。この圧倒的な広域通勤ネットワークは、人材確保において他エリアにはない強みです。












