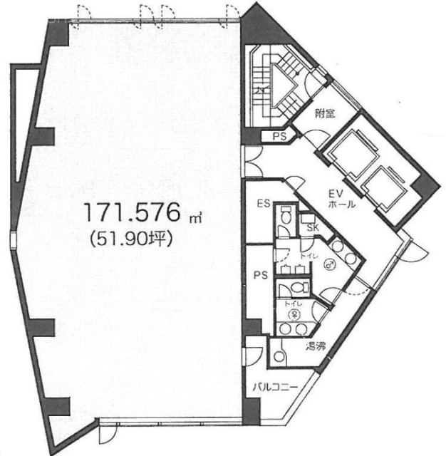
南麻布T&Fビル 6階 51.90坪(港区、南麻布、広尾、白金高輪)
募集終了
| 種別(用途) | 事務所 |
|---|---|
| 階数 | 6階 |
| 部屋番号 | 6F |
| 面積 | 51.90坪 |
| 契約形態・期間 | 定期借家 2年 |
| 空調方式 | セントラル空調 |
| 床仕様 | OAフロア タイルカーペット |
| 天井高 | 2,600mm |
| フロア特徴 | 基準階100坪以上の分割区画 |
※月額費用、坪単価ともに税別の価格です
南麻布T&Fビル 6階 は現在募集がありません。
この物件の最新状況のご確認は、下記の問合せフォームをご利用ください。
この物件の最新状況のご確認は、下記の問合せフォームをご利用ください。
南麻布T&Fビル の情報
- 所在地
- 東京都港区南麻布4-11-22
- 最寄り駅
- 広尾駅徒歩10分、白金高輪駅徒歩11分
- 竣工
- 1990年
- 規模
- 地上10階・地下2階
- 構造
- SRC造(鉄骨鉄筋コンクリート造)
- 耐震基準
- 新耐震基準適合
- セキュリティ
- 機械警備(24時間監視)
- エントランス
- 平日開放
- エレベーター総数
- 2基
- 駐車場設備
- 要確認
賃料相場
95件のデータ
南麻布T&Fビル の募集区画 (総募集面積 0.00坪)
現在募集はありません。
南麻布T&Fビル の内装イメージ
南麻布T&Fビル(港区南麻布)は、エレベーターホールのある貸しの賃貸オフィスビルです。採光をしっかり取っており、バルコニーも設置されてますので、明るく開放的な雰囲気となっております。室内は、空間を広く使用出来るように柱を壁側に寄せた間取りとなっており、天井高も2600mmあり、OAフロア採用で自由なレイアウトを組んで頂けます。トイレと洗面は、室外で男女別にあり、とても便利に使って頂けます。
南麻布T&Fビル の募集終了区画
| 図面 | 階数 | 坪数 | 月額費用 | 坪単価 | 入居可能日 | |
|---|---|---|---|---|---|---|
![]() | B1階 | 37.39坪 | お問い合わせください | 募集終了 | 検討リスト | |
![]() | B1階 | 58.73坪 | お問い合わせください | 募集終了 | 検討リスト | |
![]() | 1階 | 115.30坪 | お問い合わせください | 募集終了 | 検討リスト | |
![]() | 2階 | 80.60坪 | お問い合わせください | 募集終了 | 検討リスト | |
![]() | 2階 | 35.83坪 | お問い合わせください | 募集終了 | 検討リスト | |
![]() | 3階 | 64.54坪 | お問い合わせください | 募集終了 | 検討リスト | |
![]() | 4階 | 51.90坪 | お問い合わせください | 募集終了 | 検討リスト | |
![]() | 5階 | 51.90坪 | お問い合わせください | 募集終了 | 検討リスト | |
![]() | 6階 | 51.90坪 | お問い合わせください | 募集終了 | 検討リスト | |
![]() | 7階 | 51.90坪 | お問い合わせください | 募集終了 | 検討リスト | |
![]() | 8階 | 51.86坪 | お問い合わせください | 募集終了 | 検討リスト | |
![]() | 9階 | 51.23坪 | お問い合わせください | 募集終了 | 検討リスト | |
![]() | 10階 | 44.91坪 | お問い合わせください | 募集終了 | 検討リスト |
近くの物件紹介
港区のエリア
近くの駅
| 取扱態様 | 仲介 |
|---|---|
| 取扱会社 | 株式会社アドマイアー 東京都中央区日本橋3-2-3ユニバース第1ビル2F TEL. 03-5204-1031 宅地建物取引業免許 東京都知事(3)第94663号 マンション管理業免許 国土交通大臣(2)第034224号 賃貸住宅管理業免許 国土交通大臣(01)第005938号 |









































