アミエビル(松戸市、新松戸、幸谷) の賃貸オフィス情報

- 所在地
- 千葉県松戸市新松戸2-10-2
- 最寄り駅
- 新松戸駅徒歩2分、幸谷駅徒歩2分
- 竣工
- 1990年
- 規模
- 地上5階
- 構造
- S造(鉄骨造)
- 耐震基準
- 新耐震基準適合
- セキュリティ
- 機械警備(24時間監視)
- エントランス
- 平日開放
- エレベーター総数
- 1基
- 駐車場設備
- 無
- 設備
- トイレ男女別
賃料相場
12件のデータ
アミエビル の物件特徴・おすすめポイント
■ 新松戸駅・幸谷駅から徒歩2分の駅チカ好立地
■ 1階に大手不動産店舗が入居、ビルの認知度が高い
■ 1990年竣工・新耐震基準、安心の建物グレード
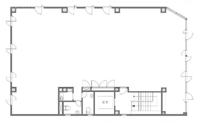
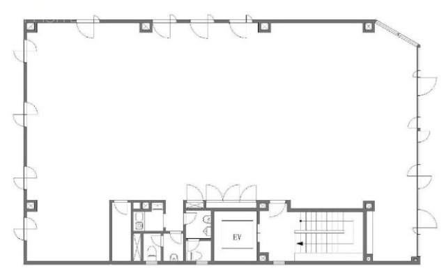
■ 基準階約57坪、支店や営業所に適したサイズ感
■ 男女別トイレ・個別空調完備で従業員満足度も高い
■ 1階に大手不動産店舗が入居、ビルの認知度が高い
■ 1990年竣工・新耐震基準、安心の建物グレード
■ 基準階約57坪、支店や営業所に適したサイズ感
■ 男女別トイレ・個別空調完備で従業員満足度も高い
アミエビル の募集区画 (総募集面積 57.55坪)
※月額費用、坪単価 ともに共益費込・税別の価格です
建物に関するよくある質問と回答
Q. 最寄りの出口とアクセス方法は?
A. JR「新松戸」駅の改札を出て、ロータリーを左手に進み、新坂川を渡ってすぐの場所に位置します。駅から徒歩2分程度と非常に近く、平坦なアプローチです。
Q. 建物の構造と耐震性は?
A. 1990年(平成2年)11月竣工の建物です。鉄骨造(S造)の地上5階建てで、新耐震基準(1981年以降)に適合しています。
Q. 室内のスペック(空調・トイレ等)は?
A. 空調は個別空調を採用しており、フロアや区画ごとに温度設定が可能です。トイレは男女別で設置されており、女性スタッフの多い企業でも安心して利用できます。
Q. 駐車場はありますか?
A. 建物に駐車場設備ありますが、空き状況は流動的です。駅前エリアのため、近隣に月極駐車場やコインパーキングが点在しています。
Q. 周辺環境は?
A. 駅周辺には「イオンフードスタイル(ダイエー)」をはじめ、飲食店、銀行、コンビニが多数集積しており、ランチや日常の買い物に非常に便利な環境です。
A. JR「新松戸」駅の改札を出て、ロータリーを左手に進み、新坂川を渡ってすぐの場所に位置します。駅から徒歩2分程度と非常に近く、平坦なアプローチです。
Q. 建物の構造と耐震性は?
A. 1990年(平成2年)11月竣工の建物です。鉄骨造(S造)の地上5階建てで、新耐震基準(1981年以降)に適合しています。
Q. 室内のスペック(空調・トイレ等)は?
A. 空調は個別空調を採用しており、フロアや区画ごとに温度設定が可能です。トイレは男女別で設置されており、女性スタッフの多い企業でも安心して利用できます。
Q. 駐車場はありますか?
A. 建物に駐車場設備ありますが、空き状況は流動的です。駅前エリアのため、近隣に月極駐車場やコインパーキングが点在しています。
Q. 周辺環境は?
A. 駅周辺には「イオンフードスタイル(ダイエー)」をはじめ、飲食店、銀行、コンビニが多数集積しており、ランチや日常の買い物に非常に便利な環境です。
地図
千葉県松戸市新松戸2-10-2 地図をクリックして拡大できます
アミエビル の外観イメージ
1階にガラス張りの店舗(三井のリハウス)が入っており、明るく清潔感のあるエントランス周りです。上層階は落ち着いた色調でまとめられており、派手さはありませんが、管理が行き届いたしっかりとしたオフィスビルという印象を与えます。








アミエビル の周辺イメージ
新松戸駅は常磐線と武蔵野線が交差する交通の要衝であり、駅周辺は非常に活気があります。ビル周辺にはファストフード店から居酒屋まで飲食店が豊富で、従業員のランチ環境は充実しています。

アミエビル のアクセス・ロケーション
千葉県内と埼玉県、東京都心をつなぐハブ駅の至近に位置し、広域アクセスに優れたロケーションです。
■ 新松戸駅(徒歩2分): JR武蔵野線で埼玉・船橋方面へ、常磐線各駅停車(千代田線直通)で大手町・霞ヶ関方面へ一本でアクセス可能です。
■ 幸谷駅(徒歩2分): 流鉄流山線を利用して、流山方面からの地域密着型の通勤ニーズにも対応します。
アミエビル の募集終了区画
| 図面 | 階数 | 坪数 | 月額費用 | 坪単価 | 入居可能日 | |
|---|---|---|---|---|---|---|
![]() | 4階 | 57.55坪 | お問い合わせください | 募集終了 | 検討リスト |
アミエビル が選ばれる理由
■ 圧倒的な「駅近・視認性」
駅から徒歩2分という近さに加え、1階に有名店舗が入居しているため、来客への場所の説明が非常にスムーズです。採用面接などの際も、迷わずに到着してもらえる安心感があります。
■ 快適な「設備スペック」
この規模のビルで「男女別トイレ」や「個別空調」が完備されている点は、入居テナントにとって大きなプラス材料です。古いビルにありがちな設備面のストレスを軽減します。
■ 2路線利用の「機動力」
武蔵野線と常磐線が利用できるため、東西南北あらゆる方向への移動が容易です。営業活動の範囲が広い企業や、広域から人材を集めたい企業にとって戦略的な立地です。
近くの物件紹介
松戸市のエリア
近くの駅
| 取扱態様 | 仲介 |
|---|---|
| 取扱会社 | 株式会社アドマイアー 東京都中央区日本橋3-2-3ユニバース第1ビル2F TEL. 03-5204-1031 宅地建物取引業免許 東京都知事(3)第94663号 マンション管理業免許 国土交通大臣(2)第034224号 賃貸住宅管理業免許 国土交通大臣(01)第005938号 |










