川崎ダイヤビル 5階 171.62坪(川崎市川崎区、砂子、川崎)
賃料 | 非公開 最新の募集条件を問い合わせる |
---|---|
所在地 | 神奈川県川崎市川崎区砂子 |
入居可能日 | 2026/4 |
最寄り駅 | 川崎駅徒歩6分 |
最終更新 | 2025年10月2日 |

募集中
種別(用途) | 事務所 |
---|---|
階数 | 5階 |
部屋番号 | 5F |
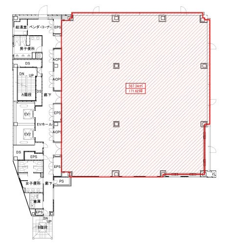
面積 | 171.62坪 |
賃料 | 非公開 |
合計 | 非公開 |
敷金・保証金 | 12ヶ月 |
更新料 | 非公開 |
償却 | 非公開 |
礼金 | 非公開 |
契約形態・期間 | 普通借家 2年 |
空調方式 | 個別空調 |
床仕様 | 要確認 |
天井高 | 要確認 |
※月額費用、坪単価ともに税別の価格です
川崎ダイヤビル の情報
- 所在地
- 神奈川県川崎市川崎区砂子2-4-13
- 最寄り駅
- 川崎駅徒歩6分
- 竣工
- 2002年
- 規模
- 地上9階・地下1階
- 構造
- SRC
- 耐震基準
- 新耐震基準
- エントランス
- 平日開放
- エレベーター総数
- 2基
- 駐車場設備
- 要確認
- 基準階坪数
- 171.62坪
川崎ダイヤビル の募集区画 (総募集面積 289.63坪)
※月額費用、坪単価 ともに共益費込・税別の価格です
近くの物件紹介
川崎市のエリア
近くの駅
取扱態様 | 仲介 |
---|---|
取扱会社 | 株式会社アドマイアー 東京都中央区日本橋3-2-3ユニバース第1ビル2F TEL. 03-5204-1031 宅地建物取引業免許 東京都知事(3)第94663号 マンション管理業免許 国土交通大臣(2)第034224号 賃貸住宅管理業免許 国土交通大臣(01)第005938号 |