大同生命前橋ビル(前橋市南町) の賃貸オフィス情報

- 所在地
- 群馬県前橋市南町3-9-5
- 最寄り駅
- 前橋駅徒歩1分
- 竣工
- 1994年
- 規模
- 地上8階・地下1階
- 構造
- SRC造(鉄骨鉄筋コンクリート造)
- 耐震基準
- 新耐震基準適合
- セキュリティ
- 機械警備・有人管理(24時間体制)
- エントランス
- 平日開放
- エレベーター総数
- 2基
- 駐車場設備
- 有
賃料相場
13件のデータ
大同生命前橋ビル の物件特徴・おすすめポイント
■ 前橋駅徒歩1分の駅前立地、ロータリーに面し視認性良好
■ 敷地内に機械式駐車場75台を完備、営業車の運用に便利
■ 全館LED照明化および共用部リニューアル済みで快適
■ 土日祝もエントランス開放、多様な働き方に対応可能
■ 有人管理と機械警備のダブルセキュリティで安心
■ 敷地内に機械式駐車場75台を完備、営業車の運用に便利
■ 全館LED照明化および共用部リニューアル済みで快適
■ 土日祝もエントランス開放、多様な働き方に対応可能
■ 有人管理と機械警備のダブルセキュリティで安心
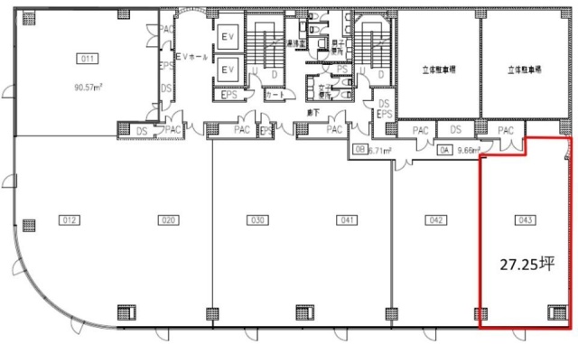
大同生命前橋ビル の募集区画 (総募集面積 54.29坪)
| 図面 | 階数 | 坪数 | 月額費用 | 坪単価 | 入居可能日 | |
|---|---|---|---|---|---|---|
![]() | 3階 | 26.77坪 | 賃料を確認する (無料・1分) | 即時 | 検討リスト お問い合わせ | |
![]() | 7階 | 27.52坪 | 賃料を確認する (無料・1分) | 即時 | 検討リスト お問い合わせ |
※月額費用、坪単価 ともに共益費込・税別の価格です
建物に関するよくある質問と回答
Q. 最寄りの出口とアクセス方法は?
A. JR「前橋」駅の南口を出てすぐ、駅前広場(ロータリー)に面した場所に位置します。徒歩1分という近さで、来客時の案内も非常にスムーズです。
Q. 建物の構造と耐震性は?
A. 1994年(平成6年)3月竣工の建物です。鉄骨鉄筋コンクリート(SRC)造の地上8階・地下1階建てで、新耐震基準に適合したしっかりとした構造です。
Q. 室内のスペック(天井高・空調等)は?
A. OAフロア設置時の天井高は2,550mmです。空調は個別空調システムを採用しており、全館LED照明化対応済みのため、明るく省エネな執務環境が整っています。
Q. 駐車場はありますか?
A. 敷地内に機械式75台分の駐車設備があります。駅前エリアでこれだけの台数を確保している物件は貴重です。ご利用に際しては、車両制限や最新の空き状況について都度ご確認が必要です。
Q. エントランスの開放時間は?
A. 年末年始を除き、全日(平日・土日祝)8:00~18:30まで開放されています。休日出勤や週末のイベント対応などがある企業にとって利便性が高い設定です。
Q. セキュリティ体制は?
A. 機械警備に加え、日中は管理人が常駐する有人管理体制をとっており、防犯性と管理品質を維持しています。
A. JR「前橋」駅の南口を出てすぐ、駅前広場(ロータリー)に面した場所に位置します。徒歩1分という近さで、来客時の案内も非常にスムーズです。
Q. 建物の構造と耐震性は?
A. 1994年(平成6年)3月竣工の建物です。鉄骨鉄筋コンクリート(SRC)造の地上8階・地下1階建てで、新耐震基準に適合したしっかりとした構造です。
Q. 室内のスペック(天井高・空調等)は?
A. OAフロア設置時の天井高は2,550mmです。空調は個別空調システムを採用しており、全館LED照明化対応済みのため、明るく省エネな執務環境が整っています。
Q. 駐車場はありますか?
A. 敷地内に機械式75台分の駐車設備があります。駅前エリアでこれだけの台数を確保している物件は貴重です。ご利用に際しては、車両制限や最新の空き状況について都度ご確認が必要です。
Q. エントランスの開放時間は?
A. 年末年始を除き、全日(平日・土日祝)8:00~18:30まで開放されています。休日出勤や週末のイベント対応などがある企業にとって利便性が高い設定です。
Q. セキュリティ体制は?
A. 機械警備に加え、日中は管理人が常駐する有人管理体制をとっており、防犯性と管理品質を維持しています。
地図
群馬県前橋市南町3-9-5 地図をクリックして拡大できます
大同生命前橋ビル の外観イメージ
地上8階建て、延床面積約2,200坪の堂々としたSRC造です。駅前ロータリーに面しているため、建物自体の視認性が非常に高く、企業の看板効果も期待できます。エントランス周りもグレード感があり、来訪者に信頼感を与えます。
大同生命前橋ビル の周辺イメージ
前橋駅南口エリアはきれいに整備されており、落ち着いたビジネス環境です。駅構内や北口側には商業施設や飲食店があり、ランチや買い物にも困りません。
大同生命前橋ビル のアクセス・ロケーション
群馬県の県庁所在地である前橋市の玄関口に位置し、電車と車の両方でアクセスしやすいロケーションです。
■ 前橋駅(徒歩1分): JR両毛線を利用して高崎駅へアクセスすれば、上越新幹線・北陸新幹線で都内や北信越方面へスムーズに移動可能です。
大同生命前橋ビル の募集終了区画
| 図面 | 階数 | 坪数 | 月額費用 | 坪単価 | 入居可能日 | |
|---|---|---|---|---|---|---|
準備中 | 2階 | 88.48坪 | - | 募集終了 | 検討リスト | |
![]() | 2階 | 80.94坪 | - | 募集終了 | 検討リスト | |
準備中 | 2階 | 48.00坪 | - | 募集終了 | 検討リスト | |
![]() | 2階 | 26.77坪 | - | 募集終了 | 検討リスト | |
準備中 | 3階 | 88.51坪 | - | 募集終了 | 検討リスト | |
![]() | 3階 | 109.98坪 | - | 募集終了 | 検討リスト | |
準備中 | 5階 | 56.44坪 | - | 募集終了 | 検討リスト | |
準備中 | 5階 | 134.02坪 | - | 募集終了 | 検討リスト | |
準備中 | 7階 | 27.40坪 | - | 募集終了 | 検討リスト | |
準備中 | 7階 | 55.81坪 | - | 募集終了 | 検討リスト | |
準備中 | 8階 | 27.40坪 | - | 募集終了 | 検討リスト |
大同生命前橋ビル が選ばれる理由
■ 駅前かつ「駐車場75台」
駅徒歩1分という立地にありながら、まとまった台数の駐車場を確保できる点は、車社会である群馬県において極めて大きな強みです。電車通勤と車営業の両立が可能です。
■ 柔軟な「利用可能時間」
土日祝日を含めてエントランスがオープンしているため、曜日を問わず稼働する業種や、顧客対応が必要なサービス拠点としても適しています。
■ 管理状態の「良さ」
有人管理によるきめ細やかな対応と、共用部リニューアルやLED化といった設備投資が行われているため、築年数を感じさせない快適なオフィス環境が提供されます。
近くの物件紹介
前橋市のエリア
近くの駅
| 取扱態様 | 仲介 |
|---|---|
| 取扱会社 | 株式会社アドマイアー 東京都中央区日本橋3-2-3ユニバース第1ビル2F TEL. 03-5204-1031 宅地建物取引業免許 東京都知事(3)第94663号 マンション管理業免許 国土交通大臣(2)第034224号 賃貸住宅管理業免許 国土交通大臣(01)第005938号 |










