CREAL SQUARE半蔵門 3階 54.83坪(千代田区麹町・半蔵門・永田町)
千代田区麹町一丁目の洗練された街並みに誕生したCREAL SQUARE半蔵門は、半蔵門駅から徒歩3分という利便性と2023年竣工の気品ある佇まいを兼ね備えた賃貸オフィスビルです。最大の特徴は、スラブ下3,320mmに達する圧倒的な天井高が創り出す開放感あふれる事務室空間です。基準階約57坪のフロアは、最新の個別空調やエレベーター2基を備え、中規模ビルながら大規模ビルに匹敵する機能性と快適性を実現しています。新築ならではの美しい外観と高いスペックは、企業のブランドイメージを一段と引き上げ、従業員のモチベーション向上や優秀な人材確保において強力なアドバンテージとなります。
| 賃料 | 非公開 千代田区の平均坪単価: 20,590円(参考) 賃料を確認する(無料・1分) |
|---|---|
| 所在地 | 東京都千代田区麹町 |
| 入居可能日 | 即時 |
| 最寄り駅 | 半蔵門駅徒歩3分、麹町駅徒歩7分 |
| 最終更新 | 2026年4月21日 |
募集中
| 種別(用途) | 事務所 |
|---|---|
| 階数 | 3階 |
| 部屋番号 | 3F |
| 面積 | 54.83坪 |
| 賃料 | 賃料を確認する(無料・1分) |
| 共益費 | 応相談 |
| 合計 | 応相談 |
| 敷金・保証金 | 7,895,520円(4ヶ月) |
| 更新料 | なし |
| 償却 | なし |
| 礼金 | なし |
| 契約形態・期間 | 普通借家 2年 |
| 空調方式 | 個別空調 |
| 床仕様 | OAフロア タイルカーペット |
| 天井高 | 要確認 |
※月額費用、坪単価ともに税別の価格です
CREAL SQUARE半蔵門 の情報
- 所在地
- 東京都千代田区麹町1-7-20
- 最寄り駅
- 半蔵門駅徒歩3分、麹町駅徒歩7分、永田町駅徒歩10分
- 竣工
- 2023年
- 規模
- 地上9階
- 構造
- S造(鉄骨造)
- 耐震基準
- 新耐震基準適合
- セキュリティ
- 機械警備(24時間監視)
- エントランス
- オートロック
- エレベーター総数
- 2基
- 駐車場設備
- 有
- 設備
- 屋上テラス(ルーフトップテラス)、 共用ラウンジ(テナント専用ラウンジ)
賃料相場
210件のデータ
CREAL SQUARE半蔵門 の募集区画 (総募集面積 398.89坪)
| 図面 | 階数 | 坪数 | 月額費用 | 坪単価 | 入居可能日 | |
|---|---|---|---|---|---|---|
準備中 | 1階 | 5.80坪 | 賃料を確認する (無料・1分) | 相談 | 検討リスト お問い合わせ | |
![]() | 2階 | 54.83坪 | 賃料を確認する (無料・1分) | 即時 | 検討リスト お問い合わせ | |
![]() | 3階 | 54.83坪 | 賃料を確認する (無料・1分) | 即時 | 検討リスト お問い合わせ | |
![]() | 4階 | 54.83坪 | 賃料を確認する (無料・1分) | 即時 | 検討リスト お問い合わせ | |
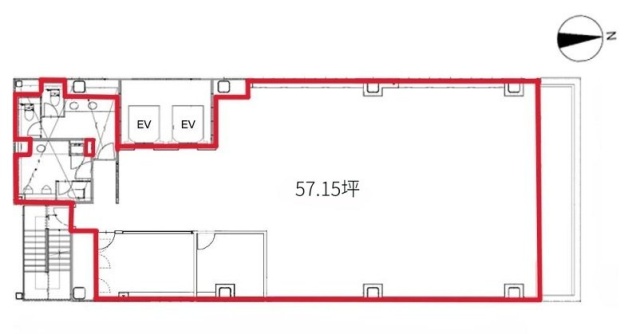
![]() | 5階 | 57.15坪 | 賃料を確認する (無料・1分) | 即時 | 検討リスト お問い合わせ | |
![]() | 6階 | 57.15坪 | 賃料を確認する (無料・1分) | 即時 | 検討リスト お問い合わせ | |
![]() | 7階 | 57.15坪 | 賃料を確認する (無料・1分) | 即時 | 検討リスト お問い合わせ | |
![]() | 8階 | 57.15坪 | 賃料を確認する (無料・1分) | 即時 | 検討リスト お問い合わせ |
※月額費用、坪単価 ともに共益費込・税別の価格です
CREAL SQUARE半蔵門 の内装イメージ
室内は最大3,320mmの天井高を活かした、光あふれるクリエイティブな空間です。柱の干渉が少ない整形な無柱空間はレイアウトの自由度が極めて高く、最新のワークスタイルに合わせた多様なオフィス構成が可能です。2基のエレベーターがダイレクトにフロアを繋ぐ利便性に加え、最新のサッシ構造が静粛性と豊かな採光を両立させています。実際に働く従業員が誇りを持てるような、高揚感と機能性が高度に調和した、次世代の中規模オフィススペックを体現している事務空間です。
CREAL SQUARE半蔵門 の募集終了区画
| 図面 | 階数 | 坪数 | 月額費用 | 坪単価 | 入居可能日 | |
|---|---|---|---|---|---|---|
![]() | 9階 | 57.15坪 | - | 募集終了 | 検討リスト |
近くの物件紹介
千代田区のエリア
近くの駅
| 取扱態様 | 仲介 |
|---|---|
| 取扱会社 | 株式会社アドマイアー 東京都中央区日本橋3-2-3ユニバース第1ビル2F TEL. 03-5204-1031 宅地建物取引業免許 東京都知事(3)第94663号 マンション管理業免許 国土交通大臣(2)第034224号 賃貸住宅管理業免許 国土交通大臣(01)第005938号 |











































