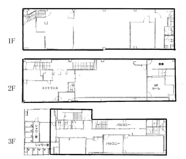
仙川店舗ビル 3階【2F~3F】 100.28坪(調布市、仙川町、仙川)
募集中
| 種別(用途) | 事務所 |
|---|---|
| 階数 | 3階 |
| 部屋番号 | 2F~3F |
| 面積 | 100.28坪 |
| 賃料 | 2,005,600円(坪単価20,000円) |
| 共益費 | 200,560円(坪単価2,000円) |
| 合計 | 2,206,160円(坪単価22,000円) |
| 敷金・保証金 | 16,044,800円(8ヶ月) |
| 更新料 | 1ヶ月 |
| 償却 | 10% |
| 礼金 | なし |
| 契約形態・期間 | 普通借家 3年 |
| 空調方式 | 要確認 |
| 床仕様 | スケルトン |
| 天井高 | 要確認 |
| フロア特徴 | トイレ男女別 |
※月額費用、坪単価ともに税別の価格です
仙川店舗ビル の情報
- 所在地
- 東京都調布市仙川町3-1-4
- 最寄り駅
- 仙川駅徒歩1分
- 竣工
- 1997年
- 規模
- 地上3階
- 構造
- RC造(鉄筋コンクリート造)
- 耐震基準
- 新耐震基準適合
- エントランス
- 平日開放
- エレベーター総数
- 0基
- 駐車場設備
- 要確認
賃料相場
10件のデータ
仙川店舗ビル の募集区画 (総募集面積 339.66坪)
| 図面 | 階数 | 坪数 | 月額費用 | 坪単価 | 入居可能日 | |
|---|---|---|---|---|---|---|
![]() | 1階 | 69.54坪 | 2,572,980円 | 37,000円 | 即時 | 検討リスト お問い合わせ |
![]() | 1F~3F | 169.84坪 | 4,779,298円 | 28,140円 | 即時 | 検討リスト お問い合わせ |
![]() | 3階 | 100.28坪 | 2,206,160円 | 22,000円 | 即時 | 検討リスト お問い合わせ |
※月額費用、坪単価 ともに共益費込・税別の価格です
仙川店舗ビル の内装イメージ
貸室内は、自由度の高いレイアウトが可能なワンフロア設計。床はタイルカーペット仕上げで、長時間の作業にも快適な環境を提供します。新耐震基準を満たしており、安全性にも配慮。エレベーターは未設置ですが、階段での移動がしやすいコンパクトな構造です。造作・残置物があるため、用途に応じて内装アレンジも柔軟に対応できます。男女別トイレや機械警備などの基本設備も整い、事務所・店舗・サービスオフィスなど多用途に適した機能性が特長です。
近くの物件紹介
調布市のエリア
近くの駅
| 取扱態様 | 仲介 |
|---|---|
| 取扱会社 | 株式会社アドマイアー 東京都中央区日本橋3-2-3ユニバース第1ビル2F TEL. 03-5204-1031 宅地建物取引業免許 東京都知事(3)第94663号 マンション管理業免許 国土交通大臣(2)第034224号 賃貸住宅管理業免許 国土交通大臣(01)第005938号 |


























