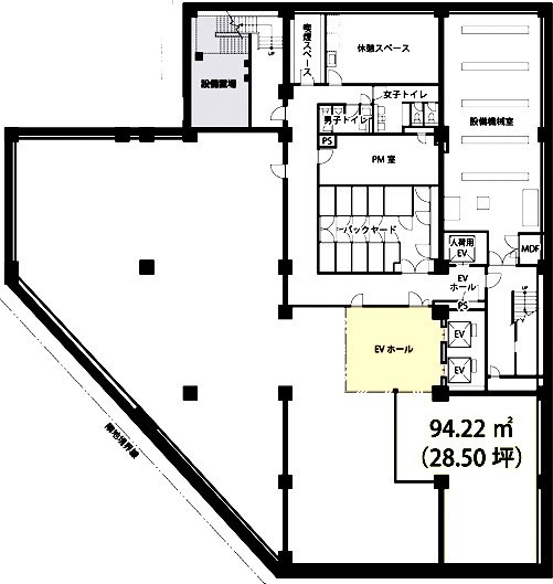
GRC横浜サイエンスキューブ B1階 28.50坪(横浜市都筑区中川中央・センター北)
横浜市営地下鉄「センター北駅」から2番出口を出てすぐ、駅前の顔として知られるランドマークビル(旧:YOTSUBAKO)です。2011年竣工の洗練されたデザインが特徴で、延床面積約2,220坪を誇る商業・オフィス複合施設です。室内は天井高2,900mmを確保し、1階区画では最大6,000mmのダイナミックな空間演出が可能。店舗利用を想定したガス・給排水設備が整っており、物販からサービス、飲食まで幅広い業態の相談に応えます。最大の特徴は、機械警備と24時間常駐の有人警備を組み合わせた強固な管理体制で、夜間稼働や来客の多いビジネスでも高い安全性を維持できます。人荷用EVも完備しており、機材搬入も円滑。駅直結の集客力と、都筑区中核エリアの利便性を享受できる高品質な賃貸物件です。
| 賃料 | - 横浜市都筑区の平均坪単価: 0円(参考) 賃料を確認する(無料・1分) |
|---|---|
| 所在地 | 神奈川県横浜市都筑区中川中央 |
| 入居可能日 | 応相談 |
| 最寄り駅 | センター北駅徒歩1分 |
募集終了
| 種別(用途) | 店舗 |
|---|---|
| 階数 | B1階 |
| 部屋番号 | A |
| 面積 | 28.50坪 |
| 契約形態・期間 | 定期借家 5年 |
| 空調方式 | 要確認 |
| 床仕様 | スケルトン |
| 天井高 | 要確認 |
※月額費用、坪単価ともに税別の価格です
GRC横浜サイエンスキューブ B1階 は現在募集がありません。
この物件の最新状況のご確認は、下記の問合せフォームをご利用ください。
この物件の最新状況のご確認は、下記の問合せフォームをご利用ください。
GRC横浜サイエンスキューブ の情報
- 所在地
- 神奈川県横浜市都筑区中川中央1-1-5
- 最寄り駅
- センター北駅徒歩1分
- 竣工
- 2011年
- 規模
- 地上8階・地下1階
- 構造
- SRC造(鉄骨鉄筋コンクリート造)
- 耐震基準
- 新耐震基準適合
- セキュリティ
- 機械警備・有人管理(24時間体制)
- エントランス
- 毎日開放
- エレベーター総数
- 3基(乗用2基・人荷用1基(荷物搬入対応))
- 駐車場設備
- 無
- 設備
- 駐輪場、 土日祝エントランス開放、 24時間(要ICカード)、 防災センター
賃料相場
15件のデータ
GRC横浜サイエンスキューブ の募集区画 (総募集面積 276.13坪)
| 図面 | 階数 | 坪数 | 月額費用 | 坪単価 | 入居可能日 | |
|---|---|---|---|---|---|---|
![]() | 1階 | 55.29坪 | 賃料を確認する (無料・1分) | 即時 | 検討リスト お問い合わせ | |
![]() | 7階 | 45.94坪 | 賃料を確認する (無料・1分) | 即時 | 検討リスト お問い合わせ | |
![]() | 7階 | 47.90坪 | 賃料を確認する (無料・1分) | 即時 | 検討リスト お問い合わせ | |
![]() | 7階 | 57.81坪 | 賃料を確認する (無料・1分) | 即時 | 検討リスト お問い合わせ | |
![]() | 7階 | 34.32坪 | 賃料を確認する (無料・1分) | 相談 | 検討リスト お問い合わせ | |
![]() | 8階 | 34.87坪 | 賃料を確認する (無料・1分) | 即時 | 検討リスト お問い合わせ |
※月額費用、坪単価 ともに共益費込・税別の価格です
GRC横浜サイエンスキューブ の内装イメージ
室内は天井高2,900mm以上を誇り、商業・オフィスの垣根を超えた開放的な空間が広がります。店舗利用を見越したガス・給排水のインフラが完備されており、スケルトンからのこだわりの空間構築にも、現況を活かした合理的な立ち上げにも柔軟に対応。一部区画では床荷重660kg/㎡を確保し、重量設備にも耐えうるスペックを備えています。24時間有人警備の安心感と、3基のEVによる機能的な動線が、生産性とホスピタリティを高い次元で支えます。
GRC横浜サイエンスキューブ の募集終了区画
近くの物件紹介
横浜市のエリア
近くの駅
| 取扱態様 | 仲介 |
|---|---|
| 取扱会社 | 株式会社アドマイアー 東京都中央区日本橋3-2-3ユニバース第1ビル2F TEL. 03-5204-1031 宅地建物取引業免許 東京都知事(3)第94663号 マンション管理業免許 国土交通大臣(2)第034224号 賃貸住宅管理業免許 国土交通大臣(01)第005938号 |



























