赤坂214プラザビル B1階 28.30坪(港区、赤坂、溜池山王、赤坂見附)
募集終了
| 種別(用途) | 事務所 |
|---|---|
| 階数 | B1階 |
| 部屋番号 | B1F |
| 面積 | 28.30坪 |
| 契約形態・期間 | 普通借家 |
| 空調方式 | 個別空調 |
| 床仕様 | OAフロア タイルカーペット |
| 天井高 | 2,700mm |
| フロア特徴 | トイレ男女別、 基準階100坪以上の分割区画 |
※月額費用、坪単価ともに税別の価格です
赤坂214プラザビル B1階 は現在募集がありません。
この物件の最新状況のご確認は、下記の問合せフォームをご利用ください。
この物件の最新状況のご確認は、下記の問合せフォームをご利用ください。
赤坂214プラザビル の情報
- 所在地
- 東京都港区赤坂2-14-32
- 最寄り駅
- 赤坂駅徒歩1分、溜池山王駅徒歩5分、赤坂見附駅徒歩6分
- 竣工
- 1992年
- 規模
- 地上7階・地下2階
- 構造
- S造(鉄骨造)
- 耐震基準
- 新耐震基準適合
- セキュリティ
- 機械警備(24時間監視)
- エントランス
- 平日開放
- エレベーター総数
- 2基
- 駐車場設備
- 要確認
赤坂214プラザビル の募集区画 (総募集面積 0.00坪)
現在募集はありません。
赤坂214プラザビル の内装イメージ
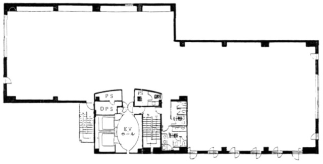
赤坂214プラザビル(港区赤坂)の室内は、2つの長方形を組み合わせたような形をしています。柱は壁際に集約されており、開放感にあふれています。オフィスレイアウトにも自由が利くでしょう。トイレが男女別なのも大きなポイント。フリーアクセスフロアのため、ケーブル等を気にすることなく、すっきりとオフィス空間を利用できるのも魅力的です。
赤坂214プラザビル の募集終了区画
| 図面 | 階数 | 坪数 | 月額費用 | 坪単価 | 入居可能日 | |
|---|---|---|---|---|---|---|
![]() | B1階 | 74.13坪 | お問い合わせください | 募集終了 | 検討リスト | |
![]() | B1階 | 28.30坪 | お問い合わせください | 募集終了 | 検討リスト | |
![]() | 1階 | 27.00坪 | お問い合わせください | 募集終了 | 検討リスト | |
![]() | 1階 | 56.00坪 | お問い合わせください | 募集終了 | 検討リスト | |
![]() | 2階 | 123.91坪 | お問い合わせください | 募集終了 | 検討リスト | |
![]() | 2階 | 29.00坪 | お問い合わせください | 募集終了 | 検討リスト | |
![]() | 3階 | 196.30坪 | お問い合わせください | 募集終了 | 検討リスト | |
![]() | 4階 | 196.30坪 | お問い合わせください | 募集終了 | 検討リスト | |
![]() | 5階 | 196.00坪 | お問い合わせください | 募集終了 | 検討リスト | |
![]() | 5階 | 196.30坪 | お問い合わせください | 募集終了 | 検討リスト | |
![]() | 6階 | 196.00坪 | お問い合わせください | 募集終了 | 検討リスト | |
![]() | 6階 | 196.30坪 | お問い合わせください | 募集終了 | 検討リスト | |
![]() | 7階 | 115.70坪 | お問い合わせください | 募集終了 | 検討リスト |
近くの物件紹介
港区のエリア
近くの駅
| 取扱態様 | 仲介 |
|---|---|
| 取扱会社 | 株式会社アドマイアー 東京都中央区日本橋3-2-3ユニバース第1ビル2F TEL. 03-5204-1031 宅地建物取引業免許 東京都知事(3)第94663号 マンション管理業免許 国土交通大臣(2)第034224号 賃貸住宅管理業免許 国土交通大臣(01)第005938号 |







































