Daiwa南青山(ダヴィンチ南青山)ビル(港区、南青山、外苑前、青山一丁目) の賃貸オフィス情報

- 所在地
- 東京都港区南青山2-31-8
- 最寄り駅
- 外苑前駅徒歩4分、青山一丁目駅徒歩13分
- 竣工
- 1990年
- 規模
- 地上5階・地下2階
- 構造
- S造(鉄骨造)
- 耐震基準
- 新耐震基準適合
- エントランス
- 平日開放
- エレベーター総数
- 1基
- 駐車場設備
- 要確認
- 設備
- トイレ男女別
Daiwa南青山(ダヴィンチ南青山)ビル の物件特徴・おすすめポイント
■ ミラーガラスの外観が来客時に重厚な印象を与えます
■ 1フロア約200坪、無柱空間で自由なレイアウトが可能です
■ 周辺には金融機関や郵便局が揃い、事務作業も円滑です
■ エントランスの螺旋階段など共用部の意匠性が高い物件です
Daiwa南青山(ダヴィンチ南青山)ビル の募集区画 (総募集面積 0.00坪)
現在募集はありません。
建物に関するよくある質問と回答
外苑前駅が最寄りとなります。1b出口を出て青山通りを渋谷方面へ進み、南青山三丁目交差点を左折して外苑西通りに入ります。そのまま道なりに直進すると、左側にミラーガラスが特徴的な建物が見えてきます。
Q2. Daiwa南青山ビルの耐震性能・構造はどうなっていますか?
1990年に竣工した建物であり、新耐震基準に適合した構造となっています。堅実な造りにより、ビジネス拠点としての信頼性を確保しています。
Q3. Daiwa南青山ビルの室内スペック(天井高・床仕様・空調など)について教えてください。
OAフロアを完備しており、煩雑になりがちな配線を床下に収納できます。空調は各区画で調整が可能な個別空調方式を採用しており、窓面からの採光も豊かで明るい執務環境が整っています。
Q4. Daiwa南青山ビルに駐車場はありますか?
敷地内には駐車場が併設されています。外苑西通りからのアプローチもスムーズで、車を利用する営業活動や役員送迎にも対応可能です。
Q5. Daiwa南青山ビルの周辺にランチができる場所はありますか?
周辺は飲食店が点在しており、多種多様なメニューを愉しめます。徒歩圏内にコンビニエンスストアもあり、昼食の選択肢に事欠きません。
Q6. Daiwa南青山ビルのセキュリティ体制はどうなっていますか?
機械警備を導入しており、24時間の入退館が可能です。エントランス等の共用部は管理が行き届いており、清潔感と規律が保たれています。
Q7. Daiwa南青山ビル内に店舗は入っていますか?
入居店舗としてBoConcept南青山が営業しており、ビルの顔として洗練された雰囲気を演出しています。
Q8. Daiwa南青山ビルの近くに郵便局や銀行はありますか?
徒歩5分圏内に外苑前郵便局や三菱UFJ銀行青山支店などがあり、日々の金融手続きや発送業務を効率的に行えます。
地図
東京都港区南青山2-31-8 地図をクリックして拡大できます
Daiwa南青山(ダヴィンチ南青山)ビル の外観イメージ
地上9階建の建物は、外苑西通り沿いでも目を引くミラーガラスの外観が特徴です。1990年竣工ながら、エントランスホールの螺旋階段や吹き抜けのような意匠など、随所にハイグレードな設計が施されています。周囲の街並みに調和しつつも、重厚感と清潔感を両立させたデザインは、来客に対して企業の信頼性を無言で伝えます。通りに面した大きな窓面は、都市的な景観を映し出し、洗練された印象を周囲に与えています。
Daiwa南青山(ダヴィンチ南青山)ビル の周辺イメージ
物件が位置する南青山エリアは、洗練されたショップとオフィスが共存するビジネス街です。徒歩圏内には、三菱UFJ銀行青山支店や外苑前郵便局といった主要なインフラが揃い、業務の利便性が確保されています。また、近隣には「成城石井 南青山店」や各種カフェ、レストランが充実しており、就業後の時間やランチタイムも有意義に過ごせます。落ち着いた住環境と商業機能が融合した、港区らしい利便性を享受できる立地です。
Daiwa南青山(ダヴィンチ南青山)ビル のその他イメージ



























Daiwa南青山(ダヴィンチ南青山)ビル のアクセス・ロケーション
■ 駅徒歩分数
・東京メトロ銀座線 「外苑前駅」 1b出口より徒歩4分
・東京メトロ半蔵門線 「表参道駅」 A4出口より徒歩10分
・東京メトロ千代田線 「表参道駅」 A4出口より徒歩10分
■ 主要エリアへのアクセス
東京駅まで約15分、新宿駅まで約10分で移動が可能です。銀座線と半蔵門線、千代田線の3路線を使い分けることで、都内主要ターミナル駅へダイレクトにアクセスできます。乗り換えの負担が少なく、営業先への移動や従業員の通勤における時間短縮に大きく寄与します。
■ エリア特性
外苑西通り(キラー通り)に面しており、青山通りからも至近のビジネス拠点です。アパレルやデザイン関係の企業が多く集まる一方で、近年はIT系や士業のオフィスも増えており、都内でも有数のステータスを持つエリアとして認知されています。
Daiwa南青山(ダヴィンチ南青山)ビル の募集終了区画
| 図面 | 階数 | 坪数 | 月額費用 | 坪単価 | 入居可能日 | |
|---|---|---|---|---|---|---|
準備中 | B1階 | 168.59坪 | お問い合わせください | 募集終了 | 検討リスト | |
準備中 | 1階 | 133.29坪 | お問い合わせください | 募集終了 | 検討リスト | |
準備中 | 2階 | 201.53坪 | お問い合わせください | 募集終了 | 検討リスト | |
![]() | 3階 | 48.01坪 | お問い合わせください | 募集終了 | 検討リスト | |
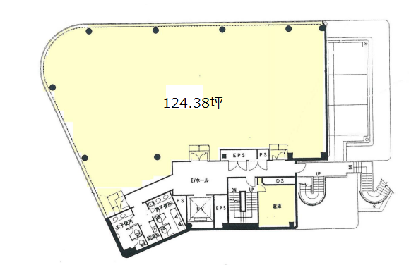
![]() | 4階 | 124.38坪 | お問い合わせください | 募集終了 | 検討リスト | |
準備中 | 5階 | 61.07坪 | お問い合わせください | 募集終了 | 検討リスト |
Daiwa南青山(ダヴィンチ南青山)ビル が選ばれる理由
■ 視認性と意匠性によるブランディング向上
外苑西通り沿いのミラーガラス外装と、螺旋階段を備えたエントランスは、来客に強い印象を残します。企業の信頼性やブランドイメージを重視する法人にとって、建物自体のグレード感が大きな資産となります。
■ 200坪超の無柱空間による組織効率の改善
基準階約200坪の整形空間は、部署を跨いだオープンなオフィスレイアウトを可能にします。柱の少ない設計により、社内のコミュニケーションを活性化させ、業務のスピード感や一体感を高める効果が期待できます。
■ 採用力と従業員の満足度を高める立地環境
外苑前・表参道という人気の高いアドレスは、人材採用において大きな優位性となります。周辺の洗練されたアメニティ環境を含め、都心で働く喜びを実感できる環境が、優秀な人材の確保と定着をサポートします。
近くの物件紹介
港区のエリア
近くの駅
| 取扱態様 | 仲介 |
|---|---|
| 取扱会社 | 株式会社アドマイアー 東京都中央区日本橋3-2-3ユニバース第1ビル2F TEL. 03-5204-1031 宅地建物取引業免許 東京都知事(3)第94663号 マンション管理業免許 国土交通大臣(2)第034224号 賃貸住宅管理業免許 国土交通大臣(01)第005938号 |



























