oak神田鍛冶町 1階 80.44坪(千代田区、神田鍛冶町、神田)
東京メトロ銀座線「神田」駅から徒歩1分、JR各線「神田」駅から徒歩2分の好立地に位置しています。2017年竣工の制震構造ビルで、2022年には「ZEB Ready」認証(エネルギー消費量51%削減)を取得しています。外観の特徴である縦・横の庇(ひさし)は、日射熱や西日のグレアを抑制するだけでなく、騒音低減やペリメーター(窓際)の無柱化を実現しています。基準階天井高2,700mmの室内には、明るさ・人感センサー付きLED照明や全熱交換器が導入されており、快適で省エネな執務環境です。
| 賃料 | - 最新の募集条件を問い合わせる |
|---|---|
| 所在地 | 東京都千代田区神田鍛冶町 |
| 入居可能日 | 応相談 |
| 最寄り駅 | 神田駅徒歩2分 |
募集終了
| 種別(用途) | 店舗・事務所 |
|---|---|
| 階数 | 1階 |
| 部屋番号 | 1F |
| 面積 | 80.44坪 |
| 契約形態・期間 | 定期借家 3年 |
| 空調方式 | 要確認 |
| 床仕様 | 要確認 |
| 天井高 | 要確認 |
| フロア特徴 | 基準階100坪以上の分割区画、 トイレ男女別 |
※月額費用、坪単価ともに税別の価格です
oak神田鍛冶町 1階 は現在募集がありません。
この物件の最新状況のご確認は、下記の問合せフォームをご利用ください。
この物件の最新状況のご確認は、下記の問合せフォームをご利用ください。
oak神田鍛冶町 の情報
- 所在地
- 東京都千代田区神田鍛冶町3-4
- 最寄り駅
- 神田駅徒歩1分
- 竣工
- 2017年
- 規模
- 地上9階
- 構造
- 鉄骨造、一部鉄筋コンクリート造
- 耐震基準
- 新耐震基準適合・制震構造
- セキュリティ
- 機械警備(24時間監視)
- エントランス
- 平日開放
- エレベーター総数
- 3基(乗用2基・非常用1基)
- 駐車場設備
- 有(機械式23台・荷捌き用2台)
- 設備
- 省エネ・環境配慮、 トイレ男女別
oak神田鍛冶町 の募集区画 (総募集面積 464.58坪)
| 図面 | 階数 | 坪数 | 月額費用 | 坪単価 | 入居可能日 | |
|---|---|---|---|---|---|---|
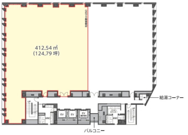
![]() | 3階 | 124.79坪 | お問い合わせください | 2026/7 | 検討リスト お問い合わせ | |
![]() | 5階 | 124.79坪 | お問い合わせください | 2026/4 | 検討リスト お問い合わせ | |
![]() | 6階 | 215.00坪 | お問い合わせください | 2026/4 | 検討リスト お問い合わせ |
※月額費用、坪単価 ともに共益費込・税別の価格です
oak神田鍛冶町 の内装イメージ
空調は冷暖フリーの個別空調を採用しており、エリアごとの温度調整が可能です。室内の天井高は2,700mmを確保しており、自然換気装置や全熱交換器が設置され、新鮮な空気環境が維持されます。OAフロアは一般的なオフィスよりも高い100mmの仕様となっており、大量の配線にも対応可能です。






oak神田鍛冶町 の募集終了区画
近くの物件紹介
千代田区のエリア
近くの駅
| 取扱態様 | 仲介 |
|---|---|
| 取扱会社 | 株式会社アドマイアー 東京都中央区日本橋3-2-3ユニバース第1ビル2F TEL. 03-5204-1031 宅地建物取引業免許 東京都知事(3)第94663号 マンション管理業免許 国土交通大臣(2)第034224号 賃貸住宅管理業免許 国土交通大臣(01)第005938号 |
































