レジデンスアシムラ(杉並区、高円寺南、高円寺) の賃貸オフィス情報
編集中
- 所在地
- 東京都杉並区高円寺南2-51-4
- 最寄り駅
- 高円寺駅徒歩5分
- 竣工
- 1974年
- 規模
- 地上4階・地下1階
- 構造
- RC造(鉄筋コンクリート造)
- エントランス
- 平日開放
- 駐車場設備
- 要確認
賃料相場
31件のデータ
レジデンスアシムラ の募集区画 (総募集面積 0.00坪)
現在募集はありません。
地図
東京都杉並区高円寺南2-51-4 地図をクリックして拡大できます
レジデンスアシムラ の募集終了区画
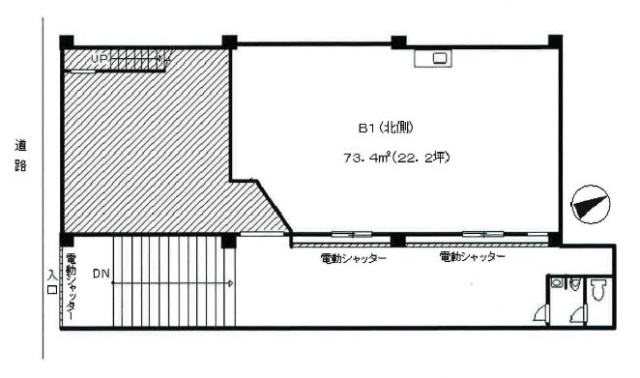
| 図面 | 階数 | 坪数 | 月額費用 | 坪単価 | 入居可能日 | |
|---|---|---|---|---|---|---|
![]() | B1階 | 22.20坪 | お問い合わせください | 募集終了 | 検討リスト |
近くの物件紹介
杉並区のエリア
近くの駅
| 取扱態様 | 仲介 |
|---|---|
| 取扱会社 | 株式会社アドマイアー 東京都中央区日本橋3-2-3ユニバース第1ビル2F TEL. 03-5204-1031 宅地建物取引業免許 東京都知事(3)第94663号 マンション管理業免許 国土交通大臣(2)第034224号 賃貸住宅管理業免許 国土交通大臣(01)第005938号 |

























