Reve南青山(港区、南青山、外苑前、青山一丁目) の賃貸オフィス情報

- 所在地
- 東京都港区南青山2-27-6
- 最寄り駅
- 外苑前駅徒歩2分、青山一丁目駅徒歩10分、表参道駅徒歩10分
- 竣工
- 2006年
- 規模
- 地上4階
- 構造
- RC造(鉄筋コンクリート造)
- 耐震基準
- 新耐震基準適合
- セキュリティ
- 機械警備(24時間監視)
- エントランス
- 平日開放
- エレベーター総数
- 1基
- 駐車場設備
- 要確認
賃料相場
95件のデータ
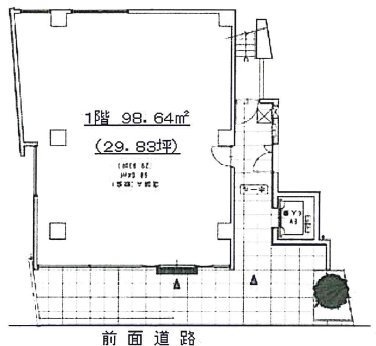
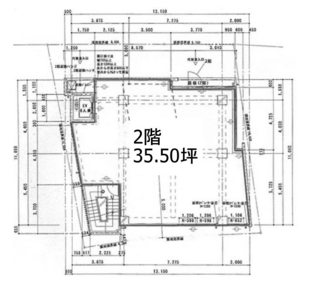
Reve南青山 の募集区画 (総募集面積 0.00坪)
現在募集はありません。
地図
東京都港区南青山2-27-6 地図をクリックして拡大できます
Reve南青山 の外観イメージ











Reve南青山 の周辺イメージ


Reve南青山 の募集終了区画
近くの物件紹介
港区のエリア
近くの駅
| 取扱態様 | 仲介 |
|---|---|
| 取扱会社 | 株式会社アドマイアー 東京都中央区日本橋3-2-3ユニバース第1ビル2F TEL. 03-5204-1031 宅地建物取引業免許 東京都知事(3)第94663号 マンション管理業免許 国土交通大臣(2)第034224号 賃貸住宅管理業免許 国土交通大臣(01)第005938号 |



























