オスカーKBビル 6階 11.50坪(中央区、銀座、有楽町)
募集終了
| 種別(用途) | 店舗・事務所 |
|---|---|
| 階数 | 6階 |
| 部屋番号 | 6F |
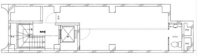
| 面積 | 11.50坪 |
| 契約形態・期間 | 普通借家 2年 |
| 空調方式 | 要確認 |
| 床仕様 | 要確認 |
| 天井高 | 要確認 |
※月額費用、坪単価ともに税別の価格です
オスカーKBビル 6階 は現在募集がありません。
この物件の最新状況のご確認は、下記の問合せフォームをご利用ください。
この物件の最新状況のご確認は、下記の問合せフォームをご利用ください。
オスカーKBビル の情報
- 所在地
- 東京都中央区銀座6-3-8
- 最寄り駅
- 銀座駅徒歩3分、有楽町駅徒歩5分
- 竣工
- 1974年
- 規模
- 地上6階
- 構造
- S造(鉄骨造)
- エントランス
- 平日開放
- エレベーター総数
- 1基
- 駐車場設備
- 要確認
オスカーKBビル の募集区画 (総募集面積 0.00坪)
現在募集はありません。
オスカーKBビル の内装イメージ


オスカーKBビル の募集終了区画
近くの物件紹介
中央区のエリア
近くの駅
| 取扱態様 | 仲介 |
|---|---|
| 取扱会社 | 株式会社アドマイアー 東京都中央区日本橋3-2-3ユニバース第1ビル2F TEL. 03-5204-1031 宅地建物取引業免許 東京都知事(3)第94663号 マンション管理業免許 国土交通大臣(2)第034224号 賃貸住宅管理業免許 国土交通大臣(01)第005938号 |































