日経茅場町第二別館 1階 20.64坪(中央区、日本橋茅場町、茅場町、日本橋)
募集終了
| 種別(用途) | 事務所 |
|---|---|
| 階数 | 1階 |
| 部屋番号 | 1F |
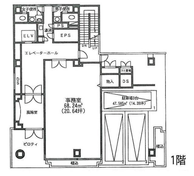
| 面積 | 20.64坪 |
| 契約形態・期間 | 普通借家 |
| 空調方式 | 個別空調 |
| 床仕様 | 要確認 |
| 天井高 | 要確認 |
| フロア特徴 | トイレ男女別 |
※月額費用、坪単価ともに税別の価格です
日経茅場町第二別館 1階 は現在募集がありません。
この物件の最新状況のご確認は、下記の問合せフォームをご利用ください。
この物件の最新状況のご確認は、下記の問合せフォームをご利用ください。
日経茅場町第二別館 の情報
- 所在地
- 東京都中央区日本橋茅場町1-7-5
- 最寄り駅
- 茅場町駅徒歩1分、日本橋駅徒歩3分、東京駅徒歩14分
- 竣工
- 1991年
- 規模
- 地上7階・地下1階
- 構造
- SRC造(鉄骨鉄筋コンクリート造)
- 耐震基準
- 新耐震基準適合
- セキュリティ
- 機械警備(24時間監視)
- エントランス
- 平日開放
- エレベーター総数
- 1基
- 駐車場設備
- 要確認
日経茅場町第二別館 の募集区画 (総募集面積 0.00坪)
現在募集はありません。
日経茅場町第二別館 の内装イメージ
日経茅場町第2別館ビル(中央区日本橋茅場町)は、角地に立地している為、2面からの採光が確保できる明るい雰囲気の室内となっています。柱も壁際に集約されているので、オフィスレイアウトも自由に組みやすいでしょう。給湯室が完備されている為、来客時のお茶の対応等もスムーズに運びそうです。バルコニーも設置されており、リフレッシュしたい時に外に出るなど、様々な用途で便利に活用できるでしょう。
日経茅場町第二別館 の募集終了区画
近くの物件紹介
中央区のエリア
近くの駅
| 取扱態様 | 仲介 |
|---|---|
| 取扱会社 | 株式会社アドマイアー 東京都中央区日本橋3-2-3ユニバース第1ビル2F TEL. 03-5204-1031 宅地建物取引業免許 東京都知事(3)第94663号 マンション管理業免許 国土交通大臣(2)第034224号 賃貸住宅管理業免許 国土交通大臣(01)第005938号 |



















































