サリュートビル(横浜市中区、吉田町、関内、桜木町) の賃貸オフィス情報

- 所在地
- 神奈川県横浜市中区吉田町72
- 最寄り駅
- 関内駅徒歩6分、桜木町駅徒歩6分、馬車道駅徒歩8分
- 竣工
- 1988年
- 規模
- 地上9階
- 構造
- SRC造(鉄骨鉄筋コンクリート造)
- 耐震基準
- 新耐震基準適合
- セキュリティ
- 機械警備(24時間監視)
- エントランス
- 平日開放
- エレベーター総数
- 1基
- 駐車場設備
- 有
- 設備
- トイレ男女別
サリュートビル の物件特徴・おすすめポイント
■1フロア1テナント。サリュートビルは各階を自社専用に占有できるため、吉田町エリアでプライバシーと機密性を確保した運営が可能。
■駐車場あり。サリュートビルは敷地内に車両スペースを保持しており、営業車や社用車を伴うビジネス活動を物理的にサポート。
■1988年竣工・新耐震。サリュートビルはSRC構造の堅牢さと安定した建物品質を保持し、長期的な安全運営を物理的に支援。
■男女別トイレ完備。サリュートビルは室内に適切に配置された水回り設備により、従業員の利便性と就業環境を物理的に確保。
サリュートビル の募集区画 (総募集面積 257.72坪)
| 図面 | 階数 | 坪数 | 月額費用 | 坪単価 | 入居可能日 | |
|---|---|---|---|---|---|---|
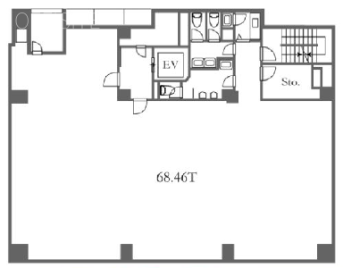
![]() | 9階 | 68.46坪 | 821,520円 | 12,000円 | 即時 | 検討リスト お問い合わせ |
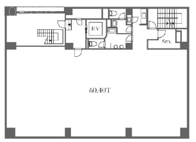
![]() | 10階 | 60.40坪 | 724,800円 | 12,000円 | 2026/6/1 | 検討リスト お問い合わせ |
準備中 | 10階 | 128.86坪 | 1,546,320円 | 12,000円 | 相談 | 検討リスト お問い合わせ |
※月額費用、坪単価 ともに共益費込・税別の価格です
建物に関するよくある質問と回答
A. JR根岸線・横浜市営地下鉄「関内駅」および「桜木町駅」より徒歩6分、みなとみらい線「馬車道駅」からも徒歩8分です。3駅利用可能な横浜市中区吉田町の立地を保持しています。
Q2. サリュートビルの構造と耐震性能を教えてください。
A. サリュートビルは鉄骨鉄筋コンクリート造(SRC造)を採用しており、地上9階建の規模です。1988年竣工で新耐震基準に適合しており、SRC造ならではの堅牢な構造を物理的に提供しています。
Q3. サリュートビルのセキュリティ体制はどうなっていますか?
A. 24時間監視の機械警備システムを導入しています。セキュリティ認証により、夜間や休日も安全に入退館できる環境を整えており、企業の安全性を確実に確保しています。
Q4. サリュートビルは24時間利用が可能ですか?
A. はい、24時間入退館が可能です。エントランスは平日開放されており、開放時間外も認証システム等により自由な稼働体制を保持できるため、多様なワークスタイルに対応します。
Q5. サリュートビルのエレベーターは何基ありますか?
A. 館内にエレベーターが1基設置されています。1フロア1テナントの構成のため、不特定多数による混雑を抑え、スムーズな上下移動が可能な設計を保持しています。
Q6. サリュートビルの室内スペック(空調・床仕様など)を教えてください。
A. 各フロアに最適な温度設定が可能な個別空調システムと、配線を収納可能なOAフロアを完備しています。機能的な執務空間を構築可能です。
Q7. サリュートビルのトイレは男女別ですか?
A. はい、各フロアに男女別のトイレを完備。自社専用として管理・使用できるため、衛生面とプライバシーを両立した設計を保持しています。
Q8. サリュートビルに駐車場はありますか?
A. はい、駐車場設備を保持しています。空き状況や車両制限については時期により変動するため、利用を検討される場合は事前に確認することを推奨します。
Q9. サリュートビルの周辺に飲食店やコンビニはありますか?
A. 吉田町エリアに位置し、関内・桜木町の繁華街も徒歩圏内。周囲には飲食店、カフェ、コンビニ、金融機関が揃っています。ランチ環境やビジネスインフラの整ったロケーションです。
Q10. サリュートビルの管理形態はどうなっていますか?
A. 専門の管理体制により、定期的な清掃や設備の保守点検が実施されています。1988年竣工の建物を適切に維持しており、中区の拠点にふさわしい誠実な管理状況を維持しています。
地図
神奈川県横浜市中区吉田町72 地図をクリックして拡大できます
サリュートビル の外観イメージ
地上9階建のサリュートビルは、横浜市中区吉田町において、安定感と誠実さを感じさせるオフィスビルです。外装は時代に左右されない質感の仕上げを採用し、SRC造の堅牢なフォルムがビジネス拠点としての信頼性を物理的に提示しています。関内・桜木町の両駅から徒歩圏内の視認性を備えた佇まいは、来客に対してプロフェッショナルな第一印象を与え、清潔感を演出。平日に開放されるエントランスは、管理基準に基づき整然とした空間が維持されており、ビジネスパートナーを落ち着いた雰囲気で迎え入れる意匠性を保持しています。
サリュートビル の周辺イメージ
横浜市中区吉田町の、落ち着いた事務環境と関内・桜木町エリアの利便性が融合する戦略的ロケーションに位置しています。サリュートビルの周辺には飲食店やコンビニが網羅されており、主要駅から徒歩圏内のため、横浜吉田町郵便局や金融機関も至近に揃っており、ビジネスインフラは整っています。大岡川に近い開放感のある環境を享受しつつ、横浜中心部での効率的な業務に取り組める、企業の安定した運営を支えるロケーションです。
サリュートビル のその他イメージ










サリュートビル のアクセス・ロケーション
■ 駅徒歩分数
・JR根岸線、横浜市営地下鉄 「関内駅」 出口より徒歩6分
・JR根岸線、横浜市営地下鉄 「桜木町駅」 出口より徒歩6分
・みなとみらい線 「馬車道駅」 出口より徒歩8分
■ 主要エリアへのアクセス
サリュートビルは関内駅から横浜駅まで約5分、桜木町駅からみなとみらい駅まで約2分。複数路線を自在に使い分けられるため、営業活動や従業員の通勤、広域からの来客対応において、優れた時間効率とアクセシビリティを保持しています。都内主要駅へもJR線やみなとみらい線の直通運転により円滑なアプローチが可能です。
■ エリア特性
物件が位置する吉田町エリアは、横浜市内でも関内・桜木町の主要ビジネス街に隣接し、駅から近く幹線道路にもアクセスしやすいため、実用的な機動力を兼ね備えた、企業の安定した成長を支える戦略的なロケーションです。
サリュートビル の募集終了区画
| 図面 | 階数 | 坪数 | 月額費用 | 坪単価 | 入居可能日 | |
|---|---|---|---|---|---|---|
準備中 | 5階 | 31.87坪 | お問い合わせください | 募集終了 | 検討リスト | |
![]() | 6階 | 31.72坪 | お問い合わせください | 募集終了 | 検討リスト | |
![]() | 6階 | 23.52坪 | お問い合わせください | 募集終了 | 検討リスト | |
![]() | 7階 | 31.78坪 | お問い合わせください | 募集終了 | 検討リスト | |
![]() | 8階 | 15.84坪 | お問い合わせください | 募集終了 | 検討リスト | |
![]() | 8階 | 31.86坪 | お問い合わせください | 募集終了 | 検討リスト |
サリュートビル が選ばれる理由
■ 関内・桜木町の両駅が徒歩6分のアクセス機動力
サリュートビルは主要JR駅を含む3駅から徒歩圏内という立地により、横浜市内および都内への移動効率を高めます。従業員の通勤負担を軽減するだけでなく、広域からの来客に対しても利便性を提示。スピード感と効率を重視する拠点にとって、この機動力は選定の理由となります。
■ 1フロア1テナントの独立性と駐車場の利便性
吉田町という拠点で、ワンフロアを独占できる構成が支持されており、他テナントとの接触を抑え、プライバシーと機密性を保護。さらに敷地内に駐車場を保持している点は、営業車両を使用する企業にとって実用的なメリットとなります。独自の企業文化を醸成しやすい空間を物理的に提供します。
■ 新耐震基準の安心感と実用的な室内設備
1988年竣工の新耐震適合物件であり、SRC造の安定した建物品質が安全な執務環境を物理的に担保。個別空調、OAフロア、男女別トイレ完備といった実務に必要な機能が揃い、周辺の整った環境が従業員の就業満足度を向上。実利と利便性を兼ね備えた拠点が、中区での長期的な運営を物理的に支援します。
近くの物件紹介
横浜市のエリア
近くの駅
| 取扱態様 | 仲介 |
|---|---|
| 取扱会社 | 株式会社アドマイアー 東京都中央区日本橋3-2-3ユニバース第1ビル2F TEL. 03-5204-1031 宅地建物取引業免許 東京都知事(3)第94663号 マンション管理業免許 国土交通大臣(2)第034224号 賃貸住宅管理業免許 国土交通大臣(01)第005938号 |
































