三友常盤橋ビル 8階 23.60坪(中央区、日本橋本石町、三越前、新日本橋)
募集終了
| 種別(用途) | 事務所 |
|---|---|
| 階数 | 8階 |
| 部屋番号 | 8F |
| 面積 | 23.60坪 |
| 契約形態・期間 | 普通借家 |
| 空調方式 | 個別空調 |
| 床仕様 | OAフロア タイルカーペット |
| 天井高 | 要確認 |
| フロア特徴 | 基準階100坪以上の分割区画 |
※月額費用、坪単価ともに税別の価格です
三友常盤橋ビル 8階 は現在募集がありません。
この物件の最新状況のご確認は、下記の問合せフォームをご利用ください。
この物件の最新状況のご確認は、下記の問合せフォームをご利用ください。
三友常盤橋ビル の情報
- 所在地
- 東京都中央区日本橋本石町3-3-5
- 最寄り駅
- 三越前駅徒歩2分、新日本橋駅徒歩3分、神田駅徒歩5分
- 竣工
- 2001年
- 規模
- 地上9階・地下1階
- 構造
- SRC造(鉄骨鉄筋コンクリート造)
- 耐震基準
- 新耐震基準適合
- セキュリティ
- 機械警備(24時間監視)
- エントランス
- 平日開放
- エレベーター総数
- 1基
- 駐車場設備
- 要確認
三友常盤橋ビル の募集区画 (総募集面積 0.00坪)
現在募集はありません。
三友常盤橋ビル の内装イメージ
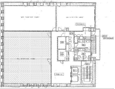
三友常盤橋ビル(中央区日本橋本石町)の基準階面積は90.51坪、天井高は2,700mmです。 執務室はL字型に近い形状ですが、フロアによっては長方形の間取りに分割された区画もあります。 窓面が多く明るい室内で、エレベーターホールから貸室内につながるドアが4つあります。 男女別トイレ、給湯室などは室外に配置されています。 OAフロア、光ファイバー、個別空調です。
三友常盤橋ビル の募集終了区画
近くの物件紹介
中央区のエリア
近くの駅
| 取扱態様 | 仲介 |
|---|---|
| 取扱会社 | 株式会社アドマイアー 東京都中央区日本橋3-2-3ユニバース第1ビル2F TEL. 03-5204-1031 宅地建物取引業免許 東京都知事(3)第94663号 マンション管理業免許 国土交通大臣(2)第034224号 賃貸住宅管理業免許 国土交通大臣(01)第005938号 |




































