ASKビル 10階 57.67坪(中央区、日本橋茅場町、茅場町、八丁堀)
賃料 | - 最新の募集条件を問い合わせる |
---|---|
所在地 | 東京都中央区日本橋茅場町 |
入居可能日 | - |
最寄り駅 | 茅場町駅徒歩1分、八丁堀駅 |

募集終了
種別(用途) | 事務所 |
---|---|
階数 | 10階 |
部屋番号 | 10F |
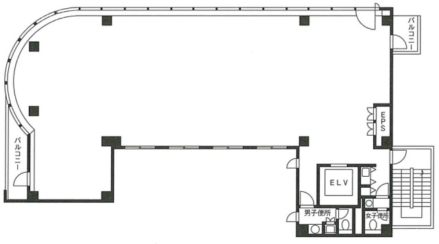
面積 | 57.67坪 |
契約形態・期間 | 普通借家 2年 |
空調方式 | 要確認 |
床仕様 | OAフロア タイルカーペット |
天井高 | 要確認 |
フロア特徴 | トイレ男女別、 基準階100坪以上の分割区画 |
※月額費用、坪単価ともに税別の価格です
ASKビル 10階 は現在募集がありません。
この物件の最新状況のご確認は、下記の問合せフォームをご利用ください。
この物件の最新状況のご確認は、下記の問合せフォームをご利用ください。
ASKビル の情報
- 所在地
- 東京都中央区日本橋茅場町3-12-2
- 最寄り駅
- 茅場町駅徒歩1分、八丁堀駅、日本橋駅
- 竣工
- 1990年
- 規模
- 地上10階・地下1階
- 構造
- S
- 耐震基準
- 新耐震基準
- セキュリティ
- 機械警備
- エントランス
- 平日開放
- エレベーター総数
- 1基
- 駐車場設備
- 要確認
- 基準階坪数
- 57.67坪
ASKビル の募集区画 (総募集面積 0.00坪)
現在募集はありません。
ASKビル の募集終了区画
近くの物件紹介
中央区のエリア
近くの駅
取扱態様 | 仲介 |
---|---|
取扱会社 | 株式会社アドマイアー 東京都中央区日本橋3-2-3ユニバース第1ビル2F TEL. 03-5204-1031 宅地建物取引業免許 東京都知事(3)第94663号 マンション管理業免許 国土交通大臣(2)第034224号 賃貸住宅管理業免許 国土交通大臣(01)第005938号 |