イトーピア日本橋小舟町ビル 7階 22.68坪(中央区、日本橋小舟町、人形町、三越前)
募集終了
| 種別(用途) | 事務所 |
|---|---|
| 階数 | 7階 |
| 部屋番号 | 7F |
| 面積 | 22.68坪 |
| 契約形態・期間 | 普通借家 2年 |
| 空調方式 | 個別空調 |
| 床仕様 | 要確認 |
| 天井高 | 要確認 |
| フロア特徴 | 土日・祝日利用可 |
※月額費用、坪単価ともに税別の価格です
イトーピア日本橋小舟町ビル 7階 は現在募集がありません。
この物件の最新状況のご確認は、下記の問合せフォームをご利用ください。
この物件の最新状況のご確認は、下記の問合せフォームをご利用ください。
イトーピア日本橋小舟町ビル の情報
- 所在地
- 東京都中央区日本橋小舟町9-4
- 最寄り駅
- 人形町駅徒歩5分、三越前駅徒歩6分、新日本橋駅徒歩8分
- 竣工
- 1990年
- 規模
- 地上7階・地下1階
- 構造
- SRC造(鉄骨鉄筋コンクリート造)
- 耐震基準
- 新耐震基準適合
- セキュリティ
- 機械警備(24時間監視)
- エントランス
- 平日開放
- エレベーター総数
- 1基
- 駐車場設備
- 要確認
イトーピア日本橋小舟町ビル の募集区画 (総募集面積 0.00坪)
現在募集はありません。
イトーピア日本橋小舟町ビル の内装イメージ
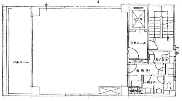
イトーピア日本橋小舟町ビル(中央区日本橋小舟町)は、ほぼ綺麗な長方形をしています。柱が1本窓の近くにありますが、オフィスレイアウトを邪魔する程の物ではないでしょう。トイレが男女別なのも大きなポイントと言えます。給湯室が完備されているので、急に来客があった際にもスムーズにお茶の準備をすることができるでしょう。バルコニーが設置されており、気分転換に外の空気を吸いに出るなど、あらゆるシーンで活用できそうです。c
イトーピア日本橋小舟町ビル の募集終了区画
近くの物件紹介
中央区のエリア
近くの駅
| 取扱態様 | 仲介 |
|---|---|
| 取扱会社 | 株式会社アドマイアー 東京都中央区日本橋3-2-3ユニバース第1ビル2F TEL. 03-5204-1031 宅地建物取引業免許 東京都知事(3)第94663号 マンション管理業免許 国土交通大臣(2)第034224号 賃貸住宅管理業免許 国土交通大臣(01)第005938号 |









































