イトーピア岩本町一丁目ビル 2階 130.59坪(千代田区、岩本町、小伝馬町、新日本橋)
| 賃料 | - 最新の募集条件を問い合わせる |
|---|---|
| 所在地 | 東京都千代田区岩本町 |
| 入居可能日 | - |
| 最寄り駅 | 小伝馬町駅徒歩3分、岩本町駅徒歩6分 |
募集終了
| 種別(用途) | 事務所 |
|---|---|
| 階数 | 2階 |
| 部屋番号 | 2F |
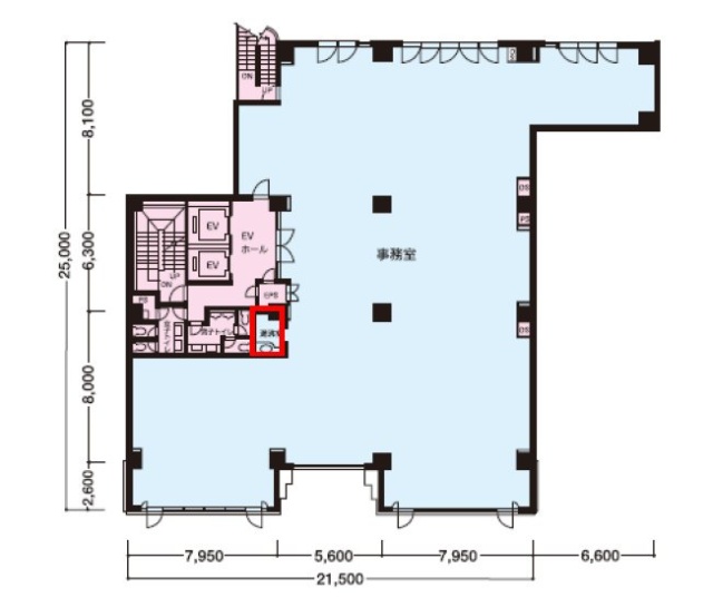
| 面積 | 130.59坪 |
| 契約形態・期間 | 普通借家 |
| 空調方式 | 個別空調 |
| 床仕様 | OAフロア タイルカーペット |
| 天井高 | 2,550mm |
| フロア特徴 | トイレ男女別、 基準階100坪以上の分割区画 |
※月額費用、坪単価ともに税別の価格です
イトーピア岩本町一丁目ビル 2階 は現在募集がありません。 (最終確認日: 2024年4月23日)
この物件の最新状況のご確認は、下記の問合せフォームをご利用ください。
この物件の最新状況のご確認は、下記の問合せフォームをご利用ください。
イトーピア岩本町一丁目ビル の情報
- 所在地
- 東京都千代田区岩本町1-8-15
- 最寄り駅
- 小伝馬町駅徒歩3分、岩本町駅徒歩6分、新日本橋駅徒歩7分
- 竣工
- 1991年
- 規模
- 地上9階・地下1階
- 構造
- SRC造(鉄骨鉄筋コンクリート造)
- 耐震基準
- 新耐震基準適合
- セキュリティ
- 機械警備(24時間監視)
- エントランス
- 平日開放
- エレベーター総数
- 2基
- 駐車場設備
- 要確認
イトーピア岩本町一丁目ビル の募集区画 (総募集面積 0.00坪)
現在募集はありません。
イトーピア岩本町一丁目ビル の内装イメージ
イトーピア岩本町1丁目ビル(千代田区岩本町)は、エレベーターホールのあるワンフロア貸しの賃貸オフィスビルです。室内は、空間を広く使用出来るように柱を壁側に寄せた間取りとなっており、自由なレイアウトを組んで頂けます。バルコニーが2面ととても採光部が大きく取ってあり、明るく開放的な印象です。トイレと洗面は、室外に男女別にあり、とても便利に使って頂けます。給湯室は室内にあり、毎日便利に快適にご利用頂けます。















イトーピア岩本町一丁目ビル の募集終了区画
| 図面 | 階数 | 坪数 | 月額費用 | 坪単価 | 入居可能日 | |
|---|---|---|---|---|---|---|
![]() | B1階 | 60.57坪 | - | - | 募集終了 | 検討リスト |
![]() | 1階 | 82.76坪 | - | - | 募集終了 | 検討リスト |
![]() | 1階 | 924.60坪 | - | - | 募集終了 | 検討リスト |
![]() | 2階 | 130.59坪 | - | - | 募集終了 | 検討リスト |
![]() | 3階 | 134.33坪 | - | - | 募集終了 | 検討リスト |
![]() | 4階 | 134.28坪 | - | - | 募集終了 | 検討リスト |
![]() | 5階 | 113.83坪 | - | - | 募集終了 | 検討リスト |
![]() | 6階 | 99.95坪 | - | - | 募集終了 | 検討リスト |
![]() | 6階 | 104.57坪 | - | - | 募集終了 | 検討リスト |
![]() | 7階 | 83.06坪 | - | - | 募集終了 | 検討リスト |
![]() | 7階 | 77.85坪 | - | - | 募集終了 | 検討リスト |
![]() | 8階 | 67.62坪 | - | - | 募集終了 | 検討リスト |
![]() | 8階 | 61.79坪 | - | - | 募集終了 | 検討リスト |
![]() | 9階 | 47.00坪 | - | - | 募集終了 | 検討リスト |
![]() | 9階 | 42.71坪 | - | - | 募集終了 | 検討リスト |
近くの物件紹介
千代田区のエリア
近くの駅
| 取扱態様 | 仲介 |
|---|---|
| 取扱会社 | 株式会社アドマイアー 東京都中央区日本橋3-2-3ユニバース第1ビル2F TEL. 03-5204-1031 宅地建物取引業免許 東京都知事(3)第94663号 マンション管理業免許 国土交通大臣(2)第034224号 賃貸住宅管理業免許 国土交通大臣(01)第005938号 |






















































