SENQ六本木(新六本木ビル5〜9階)(港区、六本木、乃木坂、六本木一丁目) の賃貸オフィス情報

- 所在地
- 東京都港区六本木7-15-7
- 最寄り駅
- 六本木駅徒歩1分、乃木坂駅徒歩10分、六本木一丁目駅徒歩10分
- 竣工
- 1978年
- 規模
- 地上9階・地下1階
- 構造
- SRC造(鉄骨鉄筋コンクリート造)
- セキュリティ
- 機械警備・有人管理(24時間体制)
- エントランス
- 毎日開放(平日7:00-22:00、土日祝9:00-20:00)
- エレベーター総数
- 2基
- 駐車場設備
- 有(44台完備(自走式・機械式))
- 設備
- 貸会議室、 トイレ男女別
SENQ六本木(新六本木ビル5〜9階) の物件特徴・おすすめポイント
■1フロア約180坪。柱が少なくレイアウトしやすい整形空間で、効率的な配置が可能。
■「SENQ六本木」を併設。ビル内にシェアオフィスがあるため、一時的な増員や会議にも対応。
■竹中工務店施工。重厚感のあるSRC造で、長年にわたり安定したコンディションを維持。
■都心で希少な駐車場44台。営業車や役員車の確保も安心な収容能力を保持。
SENQ六本木(新六本木ビル5〜9階) の募集区画 (総募集面積 0.00坪)
現在募集はありません。
建物に関するよくある質問と回答
A1. 東京メトロ日比谷線・都営大江戸線「六本木駅」の出口から徒歩1分という至近距離にあります。駅からビルまで非常に近いため、天候を気にせずスムーズに通勤・来客対応が可能です。六本木通りのランドマーク的な存在で、案内もしやすい立地です。
Q2. 併設されている「SENQ六本木」とはどのような施設ですか?
A2. 中央日本土地建物が運営するオープンイノベーションオフィスです。シェアオフィスとしての機能(コワーキング、会議室、専用デスク)を備えており、入居企業様は異業種交流の場として、あるいはサテライトオフィスとして活用することで、ビジネスの柔軟性を高めることができます。
Q3. オフィスの設備や管理体制について教えてください。
A3. 各階個別空調を採用しており、24時間の入退館が可能です。施工は竹中工務店が手掛けており、建物としての堅牢性は折り紙付きです。また、中央日本土地建物グループによる有人管理と機械警備の併用により、夜間も安心して業務に集中いただけます。
地図
東京都港区六本木7-15-7 地図をクリックして拡大できます
SENQ六本木(新六本木ビル5〜9階) の外観イメージ
1978年竣工ながら、手入れの行き届いた重厚な鉄骨鉄筋コンクリート造のビルです。竹中工務店による施工で、クラシックなオフィスビルの品格を保ちつつ、エントランスや共用部は時代に合わせてリニューアルが施されています。六本木通りに面したその佇まいは、エリアでも屈指の視認性を誇ります。





SENQ六本木(新六本木ビル5〜9階) の周辺イメージ
六本木七丁目の中心部に位置し、六本木ヒルズや東京ミッドタウンが徒歩数分圏内という贅沢な環境です。周辺には世界各国のレストラン、カフェ、金融機関、コンビニエンスストアが密集しており、ランチや接待に困ることはありません。また、美術館や公園も近く、クリエイティビティを刺激するアメニティに溢れています。




SENQ六本木(新六本木ビル5〜9階) のアクセス・ロケーション
都内主要エリアを縦横無尽に結ぶ、六本木の心臓部に位置します。
■ 利用可能路線 東京メトロ日比谷線「六本木駅」徒歩1分 都営大江戸線「六本木駅」徒歩1分
■ ロケーションの特性: 「六本木駅」至近という強みを活かし、麻布十番、広尾、赤坂といった隣接エリアへのアクセスも良好です。また、六本木通りや環状三号線に面しているため、タクシーの捕まりやすさも抜群で、車での都内移動が多い企業にとっても戦略的価値の高い立地です。
SENQ六本木(新六本木ビル5〜9階) の募集終了区画
| 図面 | 階数 | 坪数 | 月額費用 | 坪単価 | 入居可能日 | |
|---|---|---|---|---|---|---|
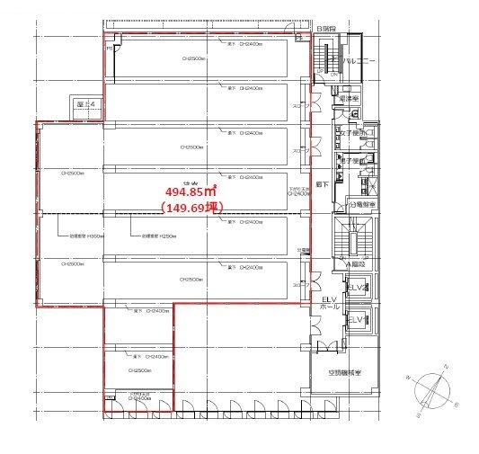
![]() | 4階 | 149.69坪 | お問い合わせください | 募集終了 | 検討リスト | |
準備中 | 5階 | 86.06坪 | お問い合わせください | 募集終了 | 検討リスト | |
準備中 | 5階 | 93.75坪 | お問い合わせください | 募集終了 | 検討リスト | |
![]() | 6階 | 86.06坪 | お問い合わせください | 募集終了 | 検討リスト | |
準備中 | 6階 | 179.82坪 | お問い合わせください | 募集終了 | 検討リスト | |
![]() | 7階 | 16.40坪 | お問い合わせください | 募集終了 | 検討リスト | |
![]() | 7階 | 22.00坪 | お問い合わせください | 募集終了 | 検討リスト | |
![]() | 7階 | 28.18坪 | お問い合わせください | 募集終了 | 検討リスト | |
![]() | 7階 | 20.04坪 | お問い合わせください | 募集終了 | 検討リスト | |
準備中 | 7階 | 179.82坪 | お問い合わせください | 募集終了 | 検討リスト | |
![]() | 7階 | 61.88坪 | お問い合わせください | 募集終了 | 検討リスト | |
![]() | 8階 | 10.04坪 | お問い合わせください | 募集終了 | 検討リスト | |
![]() | 8階 | 10.01坪 | お問い合わせください | 募集終了 | 検討リスト | |
![]() | 8階 | 10.01坪 | お問い合わせください | 募集終了 | 検討リスト | |
![]() | 8階 | 10.04坪 | お問い合わせください | 募集終了 | 検討リスト | |
![]() | 8階 | 4.03坪 | お問い合わせください | 募集終了 | 検討リスト | |
![]() | 8階 | 5.75坪 | お問い合わせください | 募集終了 | 検討リスト | |
![]() | 8階 | 4.21坪 | お問い合わせください | 募集終了 | 検討リスト | |
![]() | 8階 | 6.24坪 | お問い合わせください | 募集終了 | 検討リスト | |
![]() | 8階 | 5.84坪 | お問い合わせください | 募集終了 | 検討リスト | |
![]() | 9階 | 111.54坪 | お問い合わせください | 募集終了 | 検討リスト |
SENQ六本木(新六本木ビル5〜9階) が選ばれる理由
■ 圧倒的な「駅徒歩1分」のブランド力
六本木駅すぐという立地は、リクルーティング面で強力なアドバンテージとなり、若手から専門職まで優秀な人材を引き付けます。
■ 「SENQ」によるオフィス機能の拡張
自社オフィス(180坪)に加えて、上階のシェアオフィス機能を活用できるハイブリッドな運用が可能。成長著しい企業やプロジェクトベースの働き方に最適です。
■ 盤石の「施工・管理」バックボーン
竹中工務店施工×中央日本土地建物グループ管理という安心の組み合わせが、長期にわたる安定的なオフィス運営を保証します。
近くの物件紹介
港区のエリア
近くの駅
| 取扱態様 | 仲介 |
|---|---|
| 取扱会社 | 株式会社アドマイアー 東京都中央区日本橋3-2-3ユニバース第1ビル2F TEL. 03-5204-1031 宅地建物取引業免許 東京都知事(3)第94663号 マンション管理業免許 国土交通大臣(2)第034224号 賃貸住宅管理業免許 国土交通大臣(01)第005938号 |










































