ラ・ミアール御徒町(台東区、台東、仲御徒町、上野御徒町) の賃貸オフィス情報

- 所在地
- 東京都台東区台東4-31-7
- 最寄り駅
- 仲御徒町駅徒歩1分、上野御徒町駅徒歩3分、御徒町駅徒歩4分
- 竣工
- 1982年
- 規模
- 地上11階
- 構造
- SRC造(鉄骨鉄筋コンクリート造)
- セキュリティ
- 機械警備(24時間監視)
- エントランス
- 平日開放
- エレベーター総数
- 1基
- 駐車場設備
- 無
ラ・ミアール御徒町 の物件特徴・おすすめポイント
■ 1991年竣工。新耐震基準をクリアしたRC造の建物であり、機械警備によるセキュリティも完備。安全性と信頼性を重視する法人様にも自信を持って推奨できます。
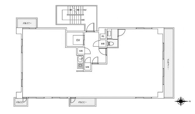
■ 基準階は約23.1坪の整形フロア。無駄な柱が少なく、受付から執務スペースまで、限られた面積を最大限に活用できるレイアウト効率の良さが強みです。
■ ワンフロア1テナントの構成に加え、専有部内に男女別トイレを完備。中小ビルで妥協されがちな衛生面のスペックが整っており、女性スタッフの採用にも有利に働きます。
■ 昭和通りから一本入った角地に近いポジション。視認性が高く来訪者への案内が容易な一方で、大通りの喧騒からは適度に距離を置いた静かな執務環境が手に入ります。
ラ・ミアール御徒町 の募集区画 (総募集面積 33.00坪)
※月額費用、坪単価 ともに共益費込・税別の価格です
建物に関するよくある質問と回答
A. 東京メトロ日比谷線「仲御徒町駅」の3番出口から徒歩1分です。昭和通りから少し東側に入った、非常にアクセスの良い場所に位置しています。JR御徒町駅からも徒歩4分程度で到着可能です。
Q. 耐震性能については安心できますか?
A. はい、1991年竣工の物件ですので新耐震基準に適合して設計・建築されています。構造面での信頼性が高く、長期にわたる安定的な拠点運営をサポートします。
Q. トイレは男女別になっていますか?
A. はい、各フロアの専有部内に男女別トイレが設置されています。20坪台のオフィスビルとしては珍しく、従業員の利便性とプライバシーを確保した設計が好評です。
Q. 24時間の入退館やセキュリティは?
A. 機械警備システムを導入しており、24時間365日いつでも安全に入退館が可能です。夜間作業や土日の勤務が必要な業種であっても、セキュアな環境で業務を行えます。
Q. 周辺のランチ環境や買い物はどうですか?
A. 御徒町駅・多慶屋エリアが至近のため、飲食店やコンビニ、ドラッグストアは無数に存在します。銀行や郵便局も徒歩圏内に集積しており、ビジネスアメニティに事欠くことはありません。
地図
東京都台東区台東4-31-7 地図をクリックして拡大できます
ラ・ミアール御徒町 の外観イメージ
グレーのタイル張りを基調とした、落ち着きのあるオーソドックスな外観デザインです。地上9階建てのスリムなフォルムは、過度な主張を排した実直なビジネスビルらしい佇まいを見せています。角地に近い立地ゆえの存在感があり、来訪者に対しても企業の堅実さを印象付けます。


ラ・ミアール御徒町 の周辺イメージ
台東区台東4丁目は、上野・御徒町の利便性をフルに享受できるロケーションです。徒歩圏内にメガバンクの支店や大型商業施設、郵便局が集積。特に仲御徒町駅周辺はビジネスインフラの密度が高く、事務手続きからランチ、仕事終わりの買い物まで、すべてが至近で完結します。
ラ・ミアール御徒町 のアクセス・ロケーション
仲御徒町・御徒町を起点に、都心主要駅や成田・羽田空港へ軽快にリーチできる卓越した足回り。
■ 仲御徒町駅徒歩1分: 日比谷線一本で秋葉原、日本橋、銀座、六本木、恵比寿へ。都心の主要ビジネスゾーンを縦断する移動効率は、営業活動の生産性向上に直結します。
■ 4駅5路線のマルチアクセス: 山手線、京浜東北線、大江戸線、銀座線が徒歩5分圏内。鉄道トラブル時でも代替ルートが豊富で、広域からの人材確保に圧倒的な強みを発揮します。
■ 昭和通り至近の利便性: 車でのアプローチやタクシーの拾いやすさも大きなメリット。都心部を東西南北へ移動する活動的な企業にとって、戦略的な価値を持つポジションです。
ラ・ミアール御徒町 の募集終了区画
| 図面 | 階数 | 坪数 | 月額費用 | 坪単価 | 入居可能日 | |
|---|---|---|---|---|---|---|
![]() | 1階 | 6.85坪 | お問い合わせください | 募集終了 | 検討リスト | |
![]() | 2階 | 16.00坪 | お問い合わせください | 募集終了 | 検討リスト | |
![]() | 3階 | 16.02坪 | お問い合わせください | 募集終了 | 検討リスト | |
![]() | 3階 | 16.03坪 | お問い合わせください | 募集終了 | 検討リスト | |
![]() | 3階 | 34.65坪 | お問い合わせください | 募集終了 | 検討リスト | |
![]() | 4階 | 33.50坪 | お問い合わせください | 募集終了 | 検討リスト | |
![]() | 6階 | 15.46坪 | お問い合わせください | 募集終了 | 検討リスト | |
![]() | 9階 | 9.01坪 | お問い合わせください | 募集終了 | 検討リスト | |
![]() | 10階 | 7.00坪 | お問い合わせください | 募集終了 | 検討リスト | |
![]() | 10階 | 10.07坪 | お問い合わせください | 募集終了 | 検討リスト | |
![]() | 10階 | 7.00坪 | お問い合わせください | 募集終了 | 検討リスト | |
![]() | 11階 | 8.11坪 | お問い合わせください | 募集終了 | 検討リスト |
ラ・ミアール御徒町 が選ばれる理由
■ 仲御徒町駅徒歩1分という「圧倒的な時間価値」
駅からの距離は、日々の通勤負荷軽減だけでなく、来客の案内しやすさや企業の信頼感に直結します。これほどの駅近立地は、エリア内でも非常に競争力の高いアドバンテージです。
■ 23坪で実現する「ワンフロア占有×男女別トイレ」
独立性の高い自社専用フロアを確保しつつ、衛生面での妥協がないスペック。中小ビルでは希少な男女別トイレの完備は、従業員の定着率や採用力の向上に大きく寄与します。
■ 利便性と安全性の「実利的なバランス」
新耐震基準、個別空調、24時間セキュリティという必須条件を網羅。御徒町エリアの利便性を享受しながら、コストパフォーマンスに優れた堅実な拠点運営を求める経営者に選ばれています。
近くの物件紹介
台東区のエリア
近くの駅
| 取扱態様 | 仲介 |
|---|---|
| 取扱会社 | 株式会社アドマイアー 東京都中央区日本橋3-2-3ユニバース第1ビル2F TEL. 03-5204-1031 宅地建物取引業免許 東京都知事(3)第94663号 マンション管理業免許 国土交通大臣(2)第034224号 賃貸住宅管理業免許 国土交通大臣(01)第005938号 |































