目黒センタービル 7階 205.50坪(品川区、上大崎、目黒、白金台)
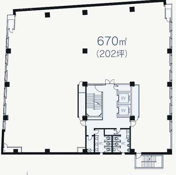
JR山手線を含む4路線が乗り入れる「目黒駅」から徒歩3分。目黒センタービルは、品川区上大崎の閑静かつ利便性の高いエリアに位置するハイグレードオフィスビルです。1フロア約202坪(670㎡)の整形な空間は、柱の干渉が少なく、効率的で開放的なレイアウトを実現。床荷重500kg/㎡、電気容量60VA/㎡という、サーバー設置や重機を扱う高度なニーズにも応える高いスペックを誇ります。清水建設や鹿島建設といった国内トップクラスのゼネコンJVによる堅牢な施工と、中央日本土地建物グループによる行き届いた管理体制が、入居企業の安定したビジネス運営をハード・ソフト両面から強力にサポートします。
募集終了
| 種別(用途) | 事務所 |
|---|---|
| 階数 | 7階 |
| 部屋番号 | 7F |
| 面積 | 205.50坪 |
| 契約形態・期間 | 普通借家 |
| 空調方式 | 要確認 |
| 床仕様 | 要確認 |
| 天井高 | 要確認 |
| フロア特徴 | 基準階100坪以上の分割区画、 トイレ男女別 |
※月額費用、坪単価ともに税別の価格です
目黒センタービル 7階 は現在募集がありません。
この物件の最新状況のご確認は、下記の問合せフォームをご利用ください。
この物件の最新状況のご確認は、下記の問合せフォームをご利用ください。
目黒センタービル の情報
- 所在地
- 東京都品川区上大崎3-2-1
- 最寄り駅
- 目黒駅徒歩3分、白金台駅徒歩13分、五反田駅徒歩15分
- 竣工
- 1990年
- 規模
- 地上8階・地下1階
- 構造
- SRC造(鉄骨鉄筋コンクリート造)
- 耐震基準
- 新耐震基準適合
- セキュリティ
- 機械警備・有人管理(24時間体制)
- エントランス
- 平日開放
- エレベーター総数
- 2基
- 駐車場設備
- 有(20台)
- 設備
- トイレ男女別
目黒センタービル の募集区画 (総募集面積 0.00坪)
現在募集はありません。
目黒センタービル の内装イメージ
基準階面積は約202坪(670㎡)。天井高は2,520mmを確保し、広い窓面からは安定した採光が得られます。電気容量は60VA/㎡と、標準的なビルよりも余裕を持たせた設計で、現代のIT化が進んだオフィス環境にも柔軟に対応します。2基の乗用エレベーターにより、上下移動もスムーズです。
目黒センタービル の募集終了区画
近くの物件紹介
品川区のエリア
近くの駅
| 取扱態様 | 仲介 |
|---|---|
| 取扱会社 | 株式会社アドマイアー 東京都中央区日本橋3-2-3ユニバース第1ビル2F TEL. 03-5204-1031 宅地建物取引業免許 東京都知事(3)第94663号 マンション管理業免許 国土交通大臣(2)第034224号 賃貸住宅管理業免許 国土交通大臣(01)第005938号 |






































