第1下村ビル 5階 59.84坪(中央区、京橋、銀座一丁目、有楽町)
募集終了
| 種別(用途) | 事務所 |
|---|---|
| 階数 | 5階 |
| 部屋番号 | 5F |
| 面積 | 59.84坪 |
| 契約形態・期間 | 定期借家 3年 |
| 空調方式 | 要確認 |
| 床仕様 | 要確認 |
| 天井高 | 要確認 |
| フロア特徴 | トイレ男女別 |
※月額費用、坪単価ともに税別の価格です
第1下村ビル 5階 は現在募集がありません。
この物件の最新状況のご確認は、下記の問合せフォームをご利用ください。
この物件の最新状況のご確認は、下記の問合せフォームをご利用ください。
第1下村ビル の情報
- 所在地
- 東京都中央区京橋3-3-10
- 最寄り駅
- 京橋駅徒歩2分、銀座一丁目駅徒歩2分、有楽町駅徒歩2分
- 竣工
- 1965年
- 規模
- 地上7階・地下1階
- 構造
- RC造(鉄筋コンクリート造)
- セキュリティ
- 有人管理(警備員常駐)
- エントランス
- 平日開放
- エレベーター総数
- 1基
- 駐車場設備
- 要確認
第1下村ビル の募集区画 (総募集面積 0.00坪)
現在募集はありません。
第1下村ビル の内装イメージ
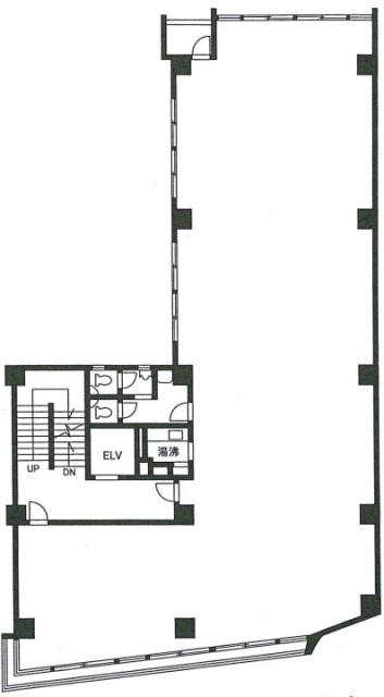
第1下村ビル(中央区京橋)は、男女別トイレや給湯室など、水回りが充実しています。室内はL字型ですが、無駄な空間はなくレイアウトしやすいです。
第1下村ビル の募集終了区画
近くの物件紹介
中央区のエリア
近くの駅
| 取扱態様 | 仲介 |
|---|---|
| 取扱会社 | 株式会社アドマイアー 東京都中央区日本橋3-2-3ユニバース第1ビル2F TEL. 03-5204-1031 宅地建物取引業免許 東京都知事(3)第94663号 マンション管理業免許 国土交通大臣(2)第034224号 賃貸住宅管理業免許 国土交通大臣(01)第005938号 |






































