三星ビル(中央区、京橋、東京、宝町) の賃貸オフィス情報

- 所在地
- 東京都中央区京橋2-2-5
- 最寄り駅
- 京橋駅徒歩2分、東京駅徒歩5分、宝町駅徒歩5分
- 竣工
- 1962年
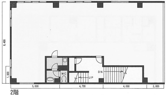
- 規模
- 地上4階・地下1階
- 構造
- RC造(鉄筋コンクリート造)
- エントランス
- 平日開放
- エレベーター総数
- 0基
- 駐車場設備
- 要確認
三星ビル の募集区画 (総募集面積 0.00坪)
現在募集はありません。
地図
東京都中央区京橋2-2-5 地図をクリックして拡大できます
三星ビル のその他イメージ



三星ビル の募集終了区画
近くの物件紹介
中央区のエリア
近くの駅
| 取扱態様 | 仲介 |
|---|---|
| 取扱会社 | 株式会社アドマイアー 東京都中央区日本橋3-2-3ユニバース第1ビル2F TEL. 03-5204-1031 宅地建物取引業免許 東京都知事(3)第94663号 マンション管理業免許 国土交通大臣(2)第034224号 賃貸住宅管理業免許 国土交通大臣(01)第005938号 |


























