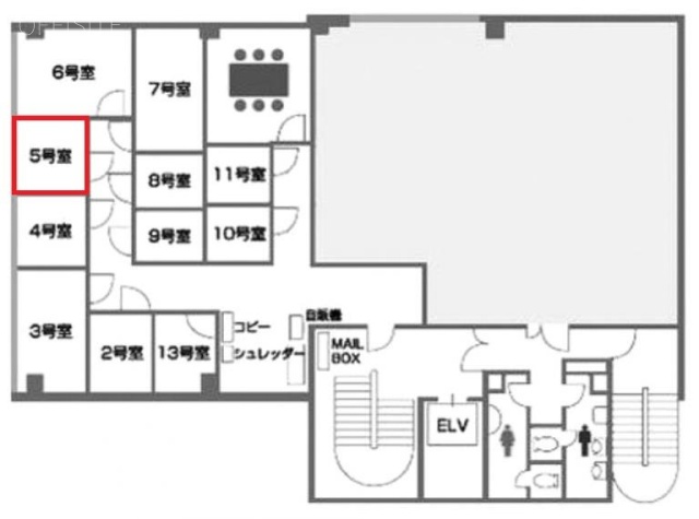
大東銀座ビル 2階【5】 1.50坪(中央区、銀座、有楽町、東銀座)
募集終了
| 種別(用途) | 事務所 |
|---|---|
| 階数 | 2階 |
| 部屋番号 | 5 |
| 面積 | 1.50坪 |
| 契約形態・期間 | 定期借家 1年 |
| 空調方式 | 個別空調 |
| 床仕様 | 要確認 |
| 天井高 | 要確認 |
| フロア特徴 | 病院・クリニック |
※月額費用、坪単価ともに税別の価格です
大東銀座ビル 2階【5】 は現在募集がありません。
この物件の最新状況のご確認は、下記の問合せフォームをご利用ください。
この物件の最新状況のご確認は、下記の問合せフォームをご利用ください。
大東銀座ビル の情報
- 所在地
- 東京都中央区銀座6-12-13
- 最寄り駅
- 銀座駅徒歩3分、有楽町駅徒歩5分、東銀座駅徒歩5分
- 竣工
- 1978年
- 規模
- 地上7階・地下1階
- 構造
- S造(鉄骨造)
- エントランス
- 平日開放
- エレベーター総数
- 1基
- 駐車場設備
- 要確認
大東銀座ビル の募集区画 (総募集面積 0.00坪)
現在募集はありません。
大東銀座ビル の内装イメージ
大東銀座ビル(中央区銀座)の室内は、ほぼ綺麗な長方形をしています。 柱が壁際に集約されているため、開放感が感じられるでしょう。 オフィスレイアウトも自由に組みやすくなっています。 トイレが男女別なのも魅力的です。 光ファイバーが導入されています。
大東銀座ビル の募集終了区画
| 図面 | 階数 | 坪数 | 月額費用 | 坪単価 | 入居可能日 | |
|---|---|---|---|---|---|---|
![]() | 1階 | 52.43坪 | - | - | 募集終了 | 検討リスト |
![]() | 2階 | 0.98坪 | - | - | 募集終了 | 検討リスト |
![]() | 2階 | 0.98坪 | - | - | 募集終了 | 検討リスト |
![]() | 2階 | 63.98坪 | - | - | 募集終了 | 検討リスト |
![]() | 2階 | 1.50坪 | - | - | 募集終了 | 検討リスト |
![]() | 2階 | 2.97坪 | - | - | 募集終了 | 検討リスト |
![]() | 2階 | 1.03坪 | - | - | 募集終了 | 検討リスト |
![]() | 3階 | 63.97坪 | - | - | 募集終了 | 検討リスト |
![]() | 4階 | 67.65坪 | - | - | 募集終了 | 検討リスト |
![]() | 5階 | 67.65坪 | - | - | 募集終了 | 検討リスト |
![]() | 6階 | 30.08坪 | - | - | 募集終了 | 検討リスト |
![]() | 6階 | 67.65坪 | - | - | 募集終了 | 検討リスト |
![]() | 7階 | 4.64坪 | - | - | 募集終了 | 検討リスト |
![]() | 7階 | 67.65坪 | - | - | 募集終了 | 検討リスト |
![]() | 7階 | 23.77坪 | - | - | 募集終了 | 検討リスト |
近くの物件紹介
中央区のエリア
近くの駅
| 取扱態様 | 仲介 |
|---|---|
| 取扱会社 | 株式会社アドマイアー 東京都中央区日本橋3-2-3ユニバース第1ビル2F TEL. 03-5204-1031 宅地建物取引業免許 東京都知事(3)第94663号 マンション管理業免許 国土交通大臣(2)第034224号 賃貸住宅管理業免許 国土交通大臣(01)第005938号 |
















































