茅場町イーストスクエア 7階 87.05坪(中央区、新川、茅場町、八丁堀)
| 賃料 | - 最新の募集条件を問い合わせる |
|---|---|
| 所在地 | 東京都中央区新川 |
| 入居可能日 | - |
| 最寄り駅 | 茅場町駅徒歩6分、八丁堀駅徒歩11分 |
募集終了
| 種別(用途) | 事務所 |
|---|---|
| 階数 | 7階 |
| 部屋番号 | 7F |
| 面積 | 87.05坪 |
| 契約形態・期間 | 普通借家 2年 |
| 空調方式 | 個別空調 |
| 床仕様 | OAフロア タイルカーペット |
| 天井高 | 2,550mm |
| フロア特徴 | 基準階100坪以上の分割区画、 セットアップ、 トイレ男女別 |
※月額費用、坪単価ともに税別の価格です
茅場町イーストスクエア 7階 は現在募集がありません。 (最終確認日: 2025年4月18日)
この物件の最新状況のご確認は、下記の問合せフォームをご利用ください。
この物件の最新状況のご確認は、下記の問合せフォームをご利用ください。
茅場町イーストスクエア の情報
- 所在地
- 東京都中央区新川1-22-11
- 最寄り駅
- 茅場町駅徒歩6分、八丁堀駅徒歩11分、水天宮前駅徒歩11分
- 竣工
- 1989年
- 規模
- 地上9階・地下1階
- 構造
- RC造(鉄筋コンクリート造)
- 耐震基準
- 新耐震基準適合
- エントランス
- 平日開放
- エレベーター総数
- 2基
- 駐車場設備
- 要確認
茅場町イーストスクエア の募集区画 (総募集面積 87.05坪)
※月額費用、坪単価 ともに共益費込・税別の価格です
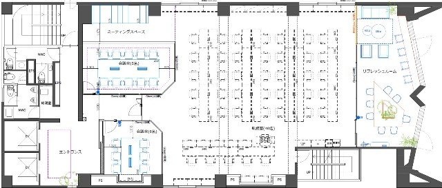
茅場町イーストスクエア の内装イメージ
茅場町イーストスクエア(中央区新川)の室内は、ほぼ綺麗な長方形です。柱は壁際にまとまってあるため開放感を覚える室内環境となっています。オフィスレイアウトにも自由が利きそうです。OAフロアを採用しているため、執務スペースをすっきり使用できるのも魅力的。トイレは男女別で室外に設置。洗面等の水回りも清潔に保たれています。給湯室が完備されているので、急な来客時などにお茶の準備がスムーズにできるでしょう。






















茅場町イーストスクエア の募集終了区画
近くの物件紹介
中央区のエリア
近くの駅
| 取扱態様 | 仲介 |
|---|---|
| 取扱会社 | 株式会社アドマイアー 東京都中央区日本橋3-2-3ユニバース第1ビル2F TEL. 03-5204-1031 宅地建物取引業免許 東京都知事(3)第94663号 マンション管理業免許 国土交通大臣(2)第034224号 賃貸住宅管理業免許 国土交通大臣(01)第005938号 |



















































