天王町駅、200坪以上の賃貸オフィス・貸事務所情報
検索結果 18 件
並び替え
横浜ビジネスパーク(YBP)イーストタワービル(横浜市保土ケ谷区、神戸町、天王町、星川)
- 所在地
- 神奈川県横浜市保土ケ谷区神戸町134
- 最寄り駅
- 天王町駅徒歩4分、星川駅徒歩7分、保土ケ谷駅徒歩11分
- 竣工
- 1990年
- 規模
- 地上15階・地下2階
- 耐震基準
- 新耐震基準適合
- セキュリティ
- 機械警備・有人管理(24時間体制)
- 駐車場設備
- 有(356台)
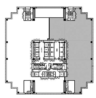
横浜ビジネスパーク イーストタワーは、相鉄線「天王町」駅徒歩4分、JR「保土ヶ谷」駅徒歩11分に位置する中高層オフィスビルです。1990年11月竣工、地上15階・地下2階の鉄骨造で新耐震基準に適合。基準階約559坪の整形無柱空間を持ち、天井高2,600mm、OAフロア80mm、床荷重400kg/㎡(一部500kg/㎡)を確保。セントラル空調による快適な室内環境を実現しています。一部ラボニーズや非常用発電機設置の相談も可能で、研究・開発用途にも柔軟に対応。YBP内にはPREZZOやメガロス、郵便局、コンビニなど多彩な共用施設が揃い、利便性・快適性に優れたビジネス環境が魅力です。
横浜ビジネスパーク(YBP)イーストタワービル の募集区画 (総募集面積 557.20坪)
※月額費用、坪単価 ともに共益費込・税別の価格です
横浜ビジネスパーク(YBP)サウスタワー(横浜市保土ケ谷区、神戸町、天王町、星川)
- 所在地
- 神奈川県横浜市保土ケ谷区神戸町134
- 最寄り駅
- 天王町駅徒歩4分、星川駅徒歩7分、保土ケ谷駅徒歩11分
- 竣工
- 1990年
- 規模
- 地上21階・地下2階
- 耐震基準
- 新耐震基準適合
- セキュリティ
- 機械警備(24時間監視)
- 駐車場設備
- 有(356台)
- 設備
- 24時間(要ICカード)、 防災センター、 非常用発電機
横浜ビジネスパーク サウスタワーは、相鉄線「天王町」駅徒歩4分、JR「保土ヶ谷」駅徒歩11分に位置する大型オフィスビルです。1990年3月竣工、地上21階・地下2階の鉄骨造で新耐震基準に適合。基準階約530坪の整形プレート、天井高2,580mm、OAフロア80mmを備え、セントラル空調による安定した室内環境を実現しています。床荷重400kg/㎡(5・6階は500kg/㎡)でラボ用途にも対応可能。YBP内にはレストラン棟「PREZZO(プレッツォ)」やスポーツクラブ「メガロス」、郵便局・ATM・貸会議室などの共用施設が充実し、利便性・快適性ともに高水準のビジネス環境を提供します。
横浜ビジネスパーク(YBP)サウスタワー の募集区画 (総募集面積 2,510.22坪)
| 図面 | 階数 | 坪数 | 月額費用 | 坪単価 | 入居可能日 | |
|---|---|---|---|---|---|---|
![]() | 3階 | 242.85坪 | お問い合わせください | 即時 | 検討リスト お問い合わせ | |
![]() | 7階 | 239.79坪 | お問い合わせください | 即時 | 検討リスト お問い合わせ | |
準備中 | 10階 | 270.61坪 | お問い合わせください | 相談 | 検討リスト お問い合わせ | |
![]() | 10階 | 228.65坪 | お問い合わせください | 相談 | 検討リスト お問い合わせ | |
![]() | 11階 | 529.78坪 | お問い合わせください | 即時 | 検討リスト お問い合わせ | |
![]() | 6階 | 499.27坪 | お問い合わせください | 2026/8/1 | 検討リスト お問い合わせ | |
![]() | 5階 | 499.27坪 | お問い合わせください | 2026/8/1 | 検討リスト お問い合わせ |
※月額費用、坪単価 ともに共益費込・税別の価格です
横浜ビジネスパーク(YBP)ノーススクエアⅠ(横浜市保土ケ谷区、神戸町、天王町、星川)
- 所在地
- 神奈川県横浜市保土ケ谷区神戸町134
- 最寄り駅
- 天王町駅徒歩4分、星川駅徒歩7分、保土ケ谷駅徒歩11分
- 竣工
- 1989年
- 規模
- 地上5階・地下1階
- 耐震基準
- 新耐震基準適合
- セキュリティ
- 機械警備・有人管理(24時間体制)
- 駐車場設備
- 有(31台)
横浜ビジネスパーク ノーススクエアⅠは、相鉄線「天王町」駅徒歩4分、JR「保土ヶ谷」駅からも徒歩圏のYBP内オフィスビルです。1989年竣工・地上5階建の鉄骨造で、新耐震基準に適合。基準階約524坪、天井高2,600mm、OAフロア80mmを備えた整形大プレートが特徴です。10分割ゾーニングのセントラル+個別空調により、執務エリアごとに温度調整が可能。床荷重500kg/㎡(一部1,000kg/㎡)でラボ用途も相談できる柔軟な設計です。
横浜ビジネスパーク(YBP)ノーススクエアⅠ の募集区画 (総募集面積 242.14坪)
※月額費用、坪単価 ともに共益費込・税別の価格です
(仮)YBP新棟ラボ(横浜市保土ケ谷区、神戸町、天王町、保土ケ谷)
- 所在地
- 神奈川県横浜市保土ヶ谷区神戸町134
- 最寄り駅
- 天王町駅徒歩4分、保土ケ谷駅徒歩11分
- 竣工
- 2027年
- 規模
- 地上7階
- 駐車場設備
- 要確認
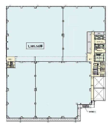
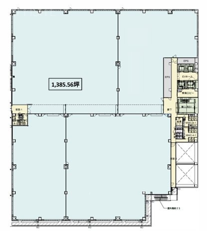
相鉄線「天王町」駅徒歩4分、JR「保土ヶ谷」駅徒歩11分(無料シャトルバス約5分)の「駅近・好立地」にある、2027年4月竣工予定の研究開発型ラボオフィスです。「最大階高7m」「最大床荷重2t/㎡」と研究開発に最適な高スペックを実現。基準階約1,386坪の「大規模フロア」で分割相談も可能です。「個別空調」「荷物用EV2系統」完備で大型機器の搬入もスムーズ。「BSL2/P2実験対応」「中和処置施設」など研究施設に必要な機能を完備。「電子錠」対応で24時間利用可能です。横浜ビジネスパーク内でレストラン・スポーツクラブ・貸会議室も利用できる充実の環境です。
(仮)YBP新棟ラボ の募集区画 (総募集面積 6,959.82坪)
| 図面 | 階数 | 坪数 | 月額費用 | 坪単価 | 入居可能日 | |
|---|---|---|---|---|---|---|
![]() | 7階 | 993.97坪 | お問い合わせください | 2027/5/1 | 検討リスト お問い合わせ | |
![]() | 6階 | 993.97坪 | お問い合わせください | 2027/5/1 | 検討リスト お問い合わせ | |
![]() | 5階 | 948.89坪 | お問い合わせください | 相談 | 検討リスト お問い合わせ | |
![]() | 4階 | 1,385.66坪 | お問い合わせください | 2027/5/1 | 検討リスト お問い合わせ | |
![]() | 3階 | 1,385.66坪 | お問い合わせください | 2027/5/1 | 検討リスト お問い合わせ | |
![]() | 1階 | 346.18坪 | お問い合わせください | 2027/5/1 | 検討リスト お問い合わせ | |
![]() | 1階 | 236.05坪 | お問い合わせください | 2027/5/1 | 検討リスト お問い合わせ | |
![]() | 2階 | 346.18坪 | お問い合わせください | 相談 | 検討リスト お問い合わせ | |
![]() | 2階 | 323.26坪 | お問い合わせください | 相談 | 検討リスト お問い合わせ |
※月額費用、坪単価 ともに共益費込・税別の価格です


























