宇都宮駅、宇都宮駅東口駅の賃貸オフィス・貸事務所情報
検索結果 12 件
並び替え
宇都宮大同生命ビル(宇都宮市、大通り、宇都宮、東武宇都宮)
- 所在地
- 栃木県宇都宮市大通り4-1-18
- 最寄り駅
- 宇都宮駅徒歩5分、東武宇都宮駅徒歩18分
- 竣工
- 1986年
- 規模
- 地上9階・地下1階
- 耐震基準
- 新耐震基準適合
- セキュリティ
- 機械警備・有人管理(24時間体制)
- 駐車場設備
- 有(機械式60台)
大通り沿いの角地に位置し、整形区画と採光性を兼ね備えたバランスの良い貸室です。
宇都宮大同生命ビル の募集区画 (総募集面積 62.41坪)
※月額費用、坪単価 ともに共益費込・税別の価格です
MSC第2ビル(宇都宮市、大通り、宇都宮、東宿郷)
- 所在地
- 栃木県宇都宮市大通り1-4-22
- 最寄り駅
- 宇都宮駅徒歩8分、東宿郷駅徒歩25分、南宇都宮駅徒歩44分
- 竣工
- 1984年
- 規模
- 地上10階
- 耐震基準
- 新耐震基準適合
- 駐車場設備
- 要確認
MSC第2ビル の募集区画 (総募集面積 29.13坪)
※月額費用、坪単価 ともに共益費込・税別の価格です
明治安田生命宇都宮大通りビル(宇都宮市、大通り、宇都宮)
- 所在地
- 栃木県宇都宮市大通り2-1-5
- 最寄り駅
- 宇都宮駅徒歩9分
- 竣工
- 1984年
- 規模
- 地上8階・地下1階
- 耐震基準
- 新耐震基準適合
- セキュリティ
- 機械警備(24時間監視)
- 駐車場設備
- 有
明治安田生命宇都宮大通りビルは、JR宇都宮駅から徒歩9分、宇都宮市のメインストリート「大通り」に面した賃貸オフィスです。1984年竣工で、2006年にリニューアルを実施し、長年にわたり適切な維持管理が行われています。SRC造地上8階・地下1階建てで、基準階面積という大約380坪型オフィスフロアを実現しています。天井高2,500mmの快適な執務空間と駐車場90台完備の充実した設備環境が特徴です。大通りに面した視認性の高い立地は、栃木県の中心都市でのビジネス展開に最適な環境です。
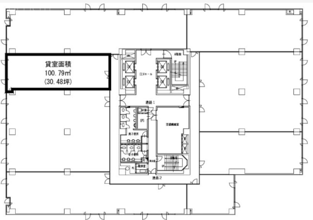
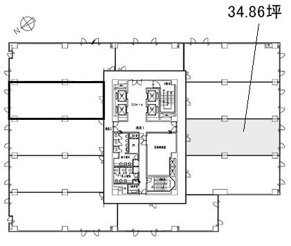
明治安田生命宇都宮大通りビル の募集区画 (総募集面積 100.40坪)
| 図面 | 階数 | 坪数 | 月額費用 | 坪単価 | 入居可能日 | |
|---|---|---|---|---|---|---|
![]() | 7階 | 35.06坪 | 非公開 | 非公開 | 即時 | 検討リスト お問い合わせ |
![]() | 8階 | 30.48坪 | 非公開 | 非公開 | 即時 | 検討リスト お問い合わせ |
![]() | 7階 | 34.86坪 | 非公開 | 非公開 | 即時 | 検討リスト お問い合わせ |
※月額費用、坪単価 ともに共益費込・税別の価格です
メットライフ宇都宮スクエア(宇都宮市、馬場通り、宇都宮)
- 所在地
- 栃木県宇都宮市馬場通り2-1-1
- 最寄り駅
- 宇都宮駅徒歩17分
- 竣工
- 1999年
- 規模
- 地上10階・地下2階
- 耐震基準
- 新耐震基準適合
- 駐車場設備
- 有(平置き4台、機械式96台)
メットライフ宇都宮スクエア の募集区画 (総募集面積 129.07坪)
| 図面 | 階数 | 坪数 | 月額費用 | 坪単価 | 入居可能日 | |
|---|---|---|---|---|---|---|
準備中 | 6階 | 27.40坪 | 非公開 | 非公開 | 即時 | 検討リスト お問い合わせ |
準備中 | 6階 | 24.23坪 | 非公開 | 非公開 | 2026/2/1 | 検討リスト お問い合わせ |
準備中 | 6階 | 51.63坪 | 非公開 | 非公開 | 2026/2/1 | 検討リスト お問い合わせ |
準備中 | 7階 | 25.81坪 | 非公開 | 非公開 | 2026/4/1 | 検討リスト お問い合わせ |
※月額費用、坪単価 ともに共益費込・税別の価格です
DS宇都宮ビル(宇都宮市、元今泉、宇都宮、東宿郷)
編集中
- 所在地
- 栃木県宇都宮市元今泉4-8-22
- 最寄り駅
- 宇都宮駅徒歩9分、東宿郷駅徒歩5分
- 竣工
- 1988年
- 規模
- 地上9階・地下1階
- 耐震基準
- 新耐震基準適合
- セキュリティ
- 機械警備(24時間監視)
- 駐車場設備
- 有(機械式32台、平面式5台、合計37台)
DS宇都宮ビルは、JR宇都宮駅徒歩9分、宇都宮芳賀ライトレール東宿郷駅徒歩5分に位置する地上9階・地下1階建てのオフィスビルです。1989年竣工のSRC造で新耐震基準に適合しており、基準階約75坪の中規模フロアを誇ります。個別空調方式を採用し、テナントごとに空調管理が可能。エレベーター1基、駐車場37台完備で、機械警備(24時間監視)による安心感の高いセキュリティ体制を整えています。男女別トイレ、多機能トイレも完備し、快適なオフィス環境を提供します。
DS宇都宮ビル の募集区画 (総募集面積 59.35坪)
| 図面 | 階数 | 坪数 | 月額費用 | 坪単価 | 入居可能日 | |
|---|---|---|---|---|---|---|
![]() | 2階 | 17.85坪 | 169,575円 | 9,500円 | 即時 | 検討リスト お問い合わせ |
![]() | 6階 | 20.75坪 | 197,125円 | 9,500円 | 即時 | 検討リスト お問い合わせ |
![]() | 8階 | 20.75坪 | 197,125円 | 9,500円 | 即時 | 検討リスト お問い合わせ |
※月額費用、坪単価 ともに共益費込・税別の価格です
メットライフ宇都宮スクエア(宇都宮市、馬場通り、宇都宮)
- 所在地
- 栃木県宇都宮市馬場通り2-1-1
- 最寄り駅
- 宇都宮駅徒歩17分
- 竣工
- 1999年
- 規模
- 地上10階・地下2階
- 耐震基準
- 新耐震基準適合
- 駐車場設備
- 有(平置き4台、機械式96台)
メットライフ宇都宮スクエア の募集区画 (総募集面積 0.00坪)
明治安田生命宇都宮大通りビル(宇都宮市、大通り、宇都宮)
- 所在地
- 栃木県宇都宮市大通り2-1-5
- 最寄り駅
- 宇都宮駅徒歩9分
- 竣工
- 1984年
- 規模
- 地上8階・地下1階
- 耐震基準
- 新耐震基準適合
- セキュリティ
- 機械警備(24時間監視)
- 駐車場設備
- 有
明治安田生命宇都宮大通りビルは、JR宇都宮駅から徒歩9分、宇都宮市のメインストリート「大通り」に面した賃貸オフィスです。1984年竣工で、2006年にリニューアルを実施し、長年にわたり適切な維持管理が行われています。SRC造地上8階・地下1階建てで、基準階面積という大約380坪型オフィスフロアを実現しています。天井高2,500mmの快適な執務空間と駐車場90台完備の充実した設備環境が特徴です。大通りに面した視認性の高い立地は、栃木県の中心都市でのビジネス展開に最適な環境です。
明治安田生命宇都宮大通りビル の募集区画 (総募集面積 0.00坪)
宇都宮大同生命ビル(宇都宮市、大通り、宇都宮、東武宇都宮)
- 所在地
- 栃木県宇都宮市大通り4-1-18
- 最寄り駅
- 宇都宮駅徒歩5分、東武宇都宮駅徒歩18分
- 竣工
- 1986年
- 規模
- 地上9階・地下1階
- 耐震基準
- 新耐震基準適合
- セキュリティ
- 機械警備・有人管理(24時間体制)
- 駐車場設備
- 有(機械式60台)
大通り沿いの角地に位置し、整形区画と採光性を兼ね備えたバランスの良い貸室です。
宇都宮大同生命ビル の募集区画 (総募集面積 0.00坪)
MSC第2ビル(宇都宮市、大通り、宇都宮、東宿郷)
- 所在地
- 栃木県宇都宮市大通り1-4-22
- 最寄り駅
- 宇都宮駅徒歩8分、東宿郷駅徒歩25分、南宇都宮駅徒歩44分
- 竣工
- 1984年
- 規模
- 地上10階
- 耐震基準
- 新耐震基準適合
- 駐車場設備
- 要確認
MSC第2ビル の募集区画 (総募集面積 0.00坪)
センターズビルディング(宇都宮市、東宿郷、宇都宮)
- 所在地
- 栃木県宇都宮市東宿郷4-2-24
- 最寄り駅
- 宇都宮駅徒歩8分
- 竣工
- 1991年
- 規模
- 地上10階・地下1階
- 耐震基準
- 新耐震基準適合
- 駐車場設備
- 要確認
センターズビルディング の募集区画 (総募集面積 0.00坪)
フージャース宇都宮ビル(宇都宮市、大通り、宇都宮)
- 所在地
- 栃木県宇都宮市大通り2-4-3
- 最寄り駅
- 宇都宮駅徒歩8分
- 竣工
- 1997年
- 規模
- 地上8階
- 耐震基準
- 新耐震基準適合
- セキュリティ
- 機械警備(24時間監視)
- 駐車場設備
- 要確認


























