有楽町駅、日比谷駅の賃貸オフィス・貸事務所情報

検索結果 132

並び替え

銀座深田ビル(中央区、銀座、銀座一丁目、有楽町)

所在地
東京都中央区銀座2-3-19
最寄り駅
銀座一丁目駅徒歩1分、有楽町駅徒歩3分、銀座駅徒歩4分
竣工
1990年
規模
地上7階・地下1階
耐震基準
新耐震基準適合
駐車場設備
要確認

銀座深田ビル の募集区画 (総募集面積 14.50坪)

図面 階数 坪数 月額費用 坪単価 入居可能日
銀座深田ビルB1F~1F 間取り図
1階14.50坪470,500円32,448円相談
検討リスト
お問い合わせ

※月額費用、坪単価 ともに共益費込・税別の価格です

銀座松楠ビル(中央区、銀座、銀座一丁目、東銀座)

所在地
東京都中央区銀座1-14-10
最寄り駅
銀座一丁目駅徒歩1分、銀座駅徒歩4分、東銀座駅徒歩3分
竣工
1973年
規模
地上10階・地下1階
セキュリティ
有人管理(警備員常駐)
駐車場設備
銀座松楠ビルは、東京メトロ有楽町線銀座一丁目駅徒歩1分、地下鉄銀座駅徒歩4分、地下鉄東銀座駅徒歩3分に位置する地上10階・地下1階建ての賃貸オフィスビルです。1973年10月竣工の商業・オフィス複合ビルで、基準階79坪(最大)の大型フロアを誇ります。レイアウト効率の良い間取りで構成され、効率的な空間活用が可能。天井高2,450mm、OAフロア完備の充実した仕様を備え、個別空調・有人管理・24時間使用可能・管理人常駐により、きめ細かなサービスで安心してご利用いただける運営体制を整えています。

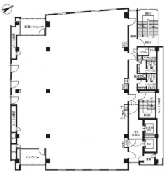
銀座松楠ビル の募集区画 (総募集面積 35.00坪)

図面 階数 坪数 月額費用 坪単価 入居可能日
銀座松楠ビルB 間取り図
B1階35.00坪633,500円18,100円即時
検討リスト
お問い合わせ

※月額費用、坪単価 ともに共益費込・税別の価格です

藤屋ビル(中央区、銀座、銀座一丁目、有楽町)

所在地
東京都中央区銀座2-6-5
最寄り駅
銀座一丁目駅徒歩1分、銀座駅徒歩3分、有楽町駅徒歩5分
竣工
1962年
規模
地上9階・地下2階
耐震基準
耐震補強済み(新耐震相当)
セキュリティ
機械警備(24時間監視)
駐車場設備
要確認
藤屋ビルは、銀座一丁目駅8番出口から徒歩1分、銀座ガス灯通り沿いに位置する地上9階建てのオフィスビルです。1962年竣工の歴史ある建物ですが、鉄骨鉄筋コンクリート造(SRC造)でしっかりとした構造。1フロア約25坪のコンパクトな空間は、銀座で隠れ家的なオフィスやサロン(業種要確認)を構えたい方に最適です。周辺は「銀座トレシャス」や高級ブランド店が立ち並ぶ華やかなエリアで、ビジネスの拠点としてのステータス性は申し分ありません。

藤屋ビル の募集区画 (総募集面積 25.00坪)

図面 階数 坪数 月額費用 坪単価 入居可能日
藤屋ビル5F 間取り図
5階25.00坪お問い合わせください即時
検討リスト
お問い合わせ

※月額費用、坪単価 ともに共益費込・税別の価格です

LANDPOOL GINZA(中央区、銀座、新橋、有楽町)

所在地
東京都中央区銀座7-2-13
最寄り駅
銀座駅徒歩5分、新橋駅徒歩7分、有楽町駅徒歩7分
竣工
2022年
規模
地上5階・地下1階
耐震基準
新耐震基準適合
セキュリティ
機械警備(24時間監視)
駐車場設備
要確認

LANDPOOL GINZA の募集区画 (総募集面積 55.31坪)

図面 階数 坪数 月額費用 坪単価 入居可能日
LANDPOOL GINZAB1F~5F 間取り図
1階55.31坪2,700,000円48,816円即時
検討リスト
お問い合わせ

※月額費用、坪単価 ともに共益費込・税別の価格です

こゆるぎビル(中央区、銀座、有楽町、東銀座)

所在地
東京都中央区銀座6-7
最寄り駅
銀座駅徒歩3分、有楽町駅徒歩8分、東銀座駅徒歩6分
竣工
2025年
規模
地上10階・地下2階
耐震基準
新耐震基準適合
セキュリティ
機械警備(24時間監視)
駐車場設備
要確認

こゆるぎビル の募集区画 (総募集面積 127.96坪)

図面 階数 坪数 月額費用 坪単価 入居可能日
こゆるぎビル10F 間取り図
10階63.98坪お問い合わせください即時
検討リスト
お問い合わせ
こゆるぎビル7F 間取り図
7階63.98坪お問い合わせください相談
検討リスト
お問い合わせ

※月額費用、坪単価 ともに共益費込・税別の価格です

ムサシ7ビル(中央区、銀座、有楽町)

所在地
東京都中央区銀座7-2-4
最寄り駅
有楽町駅徒歩4分、銀座駅徒歩4分
竣工
1986年
規模
地上7階・地下2階
耐震基準
新耐震基準適合
セキュリティ
機械警備(24時間監視)
駐車場設備
要確認

ムサシ7ビル の募集区画 (総募集面積 67.20坪)

図面 階数 坪数 月額費用 坪単価 入居可能日
ムサシ7ビル3F 間取り図
3階33.60坪940,800円28,000円即時
検討リスト
お問い合わせ
ムサシ7ビル4F 間取り図
4階33.60坪940,800円28,000円即時
検討リスト
お問い合わせ

※月額費用、坪単価 ともに共益費込・税別の価格です

(仮称) 西銀座開発計画(中央区、銀座、銀座一丁目、有楽町)

所在地
東京都中央区銀座2-101
最寄り駅
銀座一丁目駅徒歩1分、有楽町駅徒歩2分、銀座駅徒歩6分
竣工
2026年
規模
地上12階・地下1階
耐震基準
新耐震基準適合
セキュリティ
機械警備(24時間監視)
駐車場設備
有(38台)
(仮称)西銀座開発計画は、銀座一丁目駅から徒歩1分という都心一等地に2026年8月竣工予定の新築オフィスビルです。地上12階建て、鉄骨造・一部鉄骨鉄筋コンクリート造により新耐震基準に適合し、安全性を確保しています。基準階面積は128.37坪とコンパクトながら、外堀通りと銀座柳通りの角地という高い視認性を誇る立地が特徴です。エレベーター3基、駐車場38台を完備し、低層階には店舗も配置される複合ビルとして、銀座エリアでの快適なオフィス環境が魅力です。

(仮称) 西銀座開発計画 の募集区画 (総募集面積 1,155.33坪)

図面 階数 坪数 月額費用 坪単価 入居可能日
(仮称) 西銀座開発計画8F 間取り図
8階128.37坪お問い合わせください2027/1
検討リスト
お問い合わせ
(仮称) 西銀座開発計画7F 間取り図
7階128.37坪お問い合わせください2027/1
検討リスト
お問い合わせ
(仮称) 西銀座開発計画6F 間取り図
6階128.37坪お問い合わせください2027/1
検討リスト
お問い合わせ
(仮称) 西銀座開発計画5F 間取り図
5階128.37坪お問い合わせください2027/1
検討リスト
お問い合わせ
(仮称) 西銀座開発計画4F 間取り図
4階128.37坪お問い合わせください2027/1
検討リスト
お問い合わせ
(仮称) 西銀座開発計画3F 間取り図
3階128.37坪お問い合わせください2027/1
検討リスト
お問い合わせ
(仮称) 西銀座開発計画12F 間取り図
12階128.37坪お問い合わせください2027/1
検討リスト
お問い合わせ
(仮称) 西銀座開発計画11F 間取り図
11階128.37坪お問い合わせください2027/1
検討リスト
お問い合わせ
(仮称) 西銀座開発計画10F 間取り図
10階128.37坪お問い合わせください2027/1
検討リスト
お問い合わせ

※月額費用、坪単価 ともに共益費込・税別の価格です

福助染ビル(中央区、銀座、銀座一丁目、有楽町)

所在地
東京都中央区銀座2-5-4
最寄り駅
銀座一丁目駅徒歩1分、銀座駅徒歩3分、有楽町駅徒歩5分
竣工
1994年
規模
地上4階・地下1階
耐震基準
新耐震基準適合
駐車場設備
要確認

福助染ビル の募集区画 (総募集面積 6.20坪)

図面 階数 坪数 月額費用 坪単価 入居可能日
福助染ビル4F 間取り図
4階6.20坪160,000円25,806円即時
検討リスト
お問い合わせ

※月額費用、坪単価 ともに共益費込・税別の価格です

ホワイト銀座ビル(中央区、銀座、銀座一丁目、宝町)

所在地
東京都中央区銀座1-13-6
最寄り駅
銀座一丁目駅徒歩1分、宝町駅徒歩3分、京橋駅徒歩3分
竣工
1972年
規模
地上7階
駐車場設備
要確認

ホワイト銀座ビル の募集区画 (総募集面積 24.90坪)

図面 階数 坪数 月額費用 坪単価 入居可能日
ホワイト銀座ビル1F~2F 間取り図
1階24.90坪1,300,000円52,209円相談
検討リスト
お問い合わせ

※月額費用、坪単価 ともに共益費込・税別の価格です

東京銀座ビルディング(中央区、銀座、東銀座、有楽町)

所在地
東京都中央区銀座6-12-2
最寄り駅
東銀座駅徒歩2分、銀座駅徒歩2分、有楽町駅徒歩10分
竣工
1963年
規模
地上7階・地下1階
セキュリティ
機械警備(24時間監視)
駐車場設備
要確認

東京銀座ビルディング の募集区画 (総募集面積 8.80坪)

図面 階数 坪数 月額費用 坪単価 入居可能日
東京銀座ビルディング303 間取り図
3階8.80坪203,000円23,068円2026/2/1
検討リスト
お問い合わせ

※月額費用、坪単価 ともに共益費込・税別の価格です

銀座並木通りビル(中央区、銀座、銀座一丁目、有楽町)

所在地
東京都中央区銀座2-3-6
最寄り駅
銀座一丁目駅徒歩1分、有楽町駅徒歩4分、銀座駅徒歩5分
竣工
2002年
規模
地上10階・地下2階
耐震基準
新耐震基準適合
セキュリティ
機械警備(24時間監視)
駐車場設備
要確認

銀座並木通りビル の募集区画 (総募集面積 181.88坪)

図面 階数 坪数 月額費用 坪単価 入居可能日
銀座並木通りビル901 間取り図
9階181.88坪お問い合わせください2026/9/1
検討リスト
お問い合わせ

※月額費用、坪単価 ともに共益費込・税別の価格です

城辺橋ビル別館(中央区、八重洲、銀座一丁目、有楽町)

所在地
東京都中央区八重洲2-11-2
最寄り駅
銀座一丁目駅徒歩3分、有楽町駅徒歩5分、京橋駅徒歩5分
竣工
1959年
規模
地上3階・地下1階
駐車場設備
要確認
レトロな趣のある小規模オフィスで、独立性と静穏環境を兼ね備えた快適な職場環境。

城辺橋ビル別館 の募集区画 (総募集面積 14.42坪)

図面 階数 坪数 月額費用 坪単価 入居可能日
城辺橋ビル別館C 間取り図
3階14.42坪230,720円16,000円即時
検討リスト
お問い合わせ

※月額費用、坪単価 ともに共益費込・税別の価格です

城辺橋ビル(中央区、八重洲、銀座一丁目、有楽町)

所在地
東京都中央区八重洲2-11-2
最寄り駅
銀座一丁目駅徒歩2分、有楽町駅徒歩3分、京橋駅徒歩3分
竣工
1958年
規模
地上9階・地下1階
セキュリティ
共用部警備なし(簡易管理)
駐車場設備
要確認
歴史ある落ち着いたビルで、静穏環境と独立性を備えた小規模ビジネス拠点。

城辺橋ビル の募集区画 (総募集面積 12.76坪)

図面 階数 坪数 月額費用 坪単価 入居可能日
城辺橋ビルE 間取り図
4階12.76坪204,160円16,000円即時
検討リスト
お問い合わせ

※月額費用、坪単価 ともに共益費込・税別の価格です

菱進御成門ビル(港区、新橋、御成門、日比谷)

所在地
東京都港区新橋6-17-15
最寄り駅
御成門駅徒歩1分、日比谷駅徒歩9分、新橋駅徒歩12分
竣工
2015年
規模
地上8階・地下1階
耐震基準
新耐震基準適合
セキュリティ
機械警備(24時間監視)
駐車場設備
要確認

菱進御成門ビル の募集区画 (総募集面積 503.72坪)

図面 階数 坪数 月額費用 坪単価 入居可能日
菱進御成門ビル3F 間取り図
3階251.86坪お問い合わせください2026/2/1
検討リスト
お問い合わせ
菱進御成門ビル2F 間取り図
2階251.86坪お問い合わせください2026/2/1
検討リスト
お問い合わせ

※月額費用、坪単価 ともに共益費込・税別の価格です

VORT新橋一丁目(港区、新橋、内幸町、日比谷)

所在地
東京都港区新橋1-14-8
最寄り駅
新橋駅徒歩1分、内幸町駅徒歩3分、日比谷駅徒歩10分
竣工
2025年
規模
地上14階
耐震基準
新耐震基準適合
セキュリティ
機械警備(24時間監視)
駐車場設備
要確認

VORT新橋一丁目 の募集区画 (総募集面積 285.88坪)

図面 階数 坪数 月額費用 坪単価 入居可能日
VORT新橋一丁目3F 間取り図
3階40.84坪お問い合わせください即時
検討リスト
お問い合わせ
VORT新橋一丁目6F 間取り図
6階40.84坪お問い合わせください即時
検討リスト
お問い合わせ
VORT新橋一丁目7F 間取り図
7階40.84坪お問い合わせください即時
検討リスト
お問い合わせ
VORT新橋一丁目8F 間取り図
8階40.84坪お問い合わせください即時
検討リスト
お問い合わせ
VORT新橋一丁目10F 間取り図
10階40.84坪お問い合わせください即時
検討リスト
お問い合わせ
VORT新橋一丁目11F 間取り図
11階40.84坪お問い合わせください即時
検討リスト
お問い合わせ
VORT新橋一丁目12F 間取り図
12階40.84坪お問い合わせください即時
検討リスト
お問い合わせ

※月額費用、坪単価 ともに共益費込・税別の価格です

路線を変更して検索

こだわり簡易検索

東京主要エリア一覧

LINEで
相談