神田岩本町(千代田区)、15坪~30坪の賃貸オフィス・貸事務所情報
昭和通りと靖国通りが交差する「岩本町交差点」北西角のごく一部に残る、希少なアドレスです。都営新宿線「岩本町駅」のほぼ真上に位置し、秋葉原駅へも徒歩ですぐの超好立地エリアです。
検索結果 8 件
並び替え
Biz Feel AKIHABARA(千代田区神田岩本町・秋葉原)
- 所在地
- 東京都千代田区神田岩本町1-7
- 最寄り駅
- 岩本町駅徒歩2分、秋葉原駅徒歩5分、神田駅徒歩10分
- 竣工
- 1989年
- 規模
- 地上9階
- 耐震基準
- 新耐震基準適合
- セキュリティ
- 機械警備(24時間監視)
- 駐車場設備
- 無
- 設備
- 24時間(要ICカード)、 リニューアル済み
岩本町駅徒歩2分、秋葉原駅徒歩5分という都心の要衝に建つBiz Feel AKIHABARAは、ビジネスの機動力を高めるセットアップオフィスです。2026年1月にエントランスや共用部のリニューアルを完了予定で、新耐震基準に適合した安心感と清潔感を兼ね備えています。全フロアが約28坪の1フロア1テナント仕様で独立性が高く、男女別トイレや個別空調など充実した設備を完備。初期費用を抑えつつ、グレード感のあるオフィスを求める企業に高い利便性を提供します。
Biz Feel AKIHABARA の募集区画 (総募集面積 143.05坪)
| 図面 | 階数 | 坪数 | 月額費用 | 坪単価 | 入居可能日 | |
|---|---|---|---|---|---|---|
![]() | 2階 | 28.61坪 | 1,000,000円 | 34,953円 | 2026/5 | 検討リスト お問い合わせ |
![]() | 3階 | 28.61坪 | 1,000,000円 | 34,953円 | 2026/5 | 検討リスト お問い合わせ |
![]() | 4階 | 28.61坪 | 1,000,000円 | 34,953円 | 即時 | 検討リスト お問い合わせ |
![]() | 5階 | 28.61坪 | 1,000,000円 | 34,953円 | 即時 | 検討リスト お問い合わせ |
![]() | 6階 | 28.61坪 | 1,000,000円 | 34,953円 | 2026/4 | 検討リスト お問い合わせ |
※月額費用、坪単価 ともに共益費込・税別の価格です
都築ビル(千代田区神田岩本町・秋葉原)
- 所在地
- 東京都千代田区神田岩本町4-5
- 最寄り駅
- 岩本町駅徒歩2分、秋葉原駅徒歩4分、神田駅徒歩6分
- 竣工
- 1985年
- 規模
- 地上9階・地下1階
- 耐震基準
- 新耐震基準適合
- 駐車場設備
- 要確認
都築ビルは、千代田区神田岩本町に位置し、岩本町駅から徒歩2分という抜群の立地条件を誇る賃貸オフィスです。秋葉原駅や神田駅からも至近で、複数路線を自在に使いこなせるマルチアクセス環境が業務効率を大きく引き上げます。新耐震基準に適合した堅牢なSRC造と、視認性の高い落ち着いた外観を兼ね備えており、都心部での確固たるビジネス拠点構築を検討する企業にとって非常に価値の高い物件です。
都築ビル の募集区画 (総募集面積 16.72坪)
※月額費用、坪単価 ともに共益費込・税別の価格です
山上ビル(千代田区神田岩本町・秋葉原)
- 所在地
- 東京都千代田区神田岩本町1-5
- 最寄り駅
- 岩本町駅徒歩2分、秋葉原駅徒歩3分、神田駅徒歩9分
- 竣工
- 1966年
- 規模
- 地上9階・地下1階
- 耐震基準
- 新耐震基準適合
- セキュリティ
- 機械警備(24時間監視)
- 駐車場設備
- 無
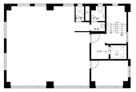
山上ビルは、マルチターミナル「秋葉原駅」から徒歩3分、都営新宿線「岩本町駅」からはわずか徒歩2分という、ビジネスの機動力を最大化させる立地にあります。1996年竣工の9階建てビルで、大通りである昭和通りに面しているため、初めての来客にも説明しやすいのが魅力です。1階には「ドトールコーヒーショップ 秋葉原和泉橋店」が入居しており、視認性の高さはもちろん、ちょっとした打ち合わせや休憩にも重宝します。貸室は約28.6坪の使い勝手の良いサイズ。個別空調に加え、トイレが室内に設置されているため、プライバシーを重視するオフィス設計が可能です。24時間利用可能な点も、不規則な業務時間が発生しやすいIT系スタートアップやクリエイティブ関連の企業様には嬉しいポイント。周囲にはマツモトキヨシやデイリーヤマザキといった利便施設が並び、神田・秋葉原エリアの恩恵をフルに享受できる実力派のオフィスビルです。
山上ビル の募集区画 (総募集面積 28.60坪)
※月額費用、坪単価 ともに共益費込・税別の価格です
+SHIFT KANDA(千代田区神田岩本町・秋葉原)
- 所在地
- 東京都千代田区神田岩本町4-7
- 最寄り駅
- 岩本町駅徒歩2分、秋葉原駅徒歩4分、神田駅徒歩5分
- 竣工
- 2021年
- 規模
- 地上12階
- 耐震基準
- 新耐震基準適合
- セキュリティ
- 機械警備(24時間監視)
- 駐車場設備
- 無
- 設備
- トイレ男女別
+SHIFT KANDAは、千代田区神田岩本町の昭和通り沿いに位置する、2021年竣工のハイグレードな築浅賃貸オフィスビルです。岩本町駅徒歩2分、秋葉原駅徒歩4分、神田駅徒歩5分という圧倒的な交通利便性を誇り、都内全域をカバーするビジネス拠点として最適です。募集中の11階・24.99坪区画は、洗練されたデザインの家具が配置された「セットアップオフィス」仕様。カウンタースペースやソファ、ミーティングスペースに加え、テレフォンブースも完備されており、入居後すぐに質の高いワークスタイルをスタートできます。白を基調としたパネル張りのスタイリッシュな外装、屋上テラス、オートロック完備のセキュリティなど、築浅ならではの充実した設備が魅力です。周辺には飲食店やコンビニも多く、利便性とステータスを両立させた次世代型のオフィス環境を提供します。
+SHIFT KANDA の募集区画 (総募集面積 24.99坪)
※月額費用、坪単価 ともに共益費込・税別の価格です
広い範囲を占める「岩本町(1〜3丁目)」とは区別される、非常にコンパクトなエリアです。かつての町名の名残を留めており、現在は昭和通り沿いのオフィスビルや、裏手の商店・雑居ビルが数棟建ち並ぶ一角となっています。エリア自体は小さいですが、交通アクセスは抜群で、神田・秋葉原エリアの利便性を余すことなく享受できる隠れたビジネススポットです。



















































