まるべりーひらかわ(千代田区、平河町、半蔵門、麹町) の賃貸オフィス情報

- 所在地
- 東京都千代田区平河町1-7-19
- 最寄り駅
- 半蔵門駅徒歩3分、麹町駅徒歩5分、永田町駅徒歩8分
- 竣工
- 1980年
- 規模
- 地上7階
- 構造
- RC造(鉄筋コンクリート造)
- 耐震基準
- 新耐震基準適合
- セキュリティ
- 機械警備(24時間監視)
- エントランス
- 平日開放
- エレベーター総数
- 1基
- 駐車場設備
- 無
まるべりーひらかわ の物件特徴・おすすめポイント
■ 1991年竣工の新耐震基準物件。構造面の信頼性に加え、石張りの外装が来訪者に対して誠実でプロフェッショナルな印象を醸成します。
■ 約20坪のワンフロア占有形態。他社スタッフの出入りを気にすることなく、自社独自のセキュリティやワークスタイルを構築できる点が最大の魅力です。
■ 室内は個別空調を完備。24時間自社のスケジュールに合わせた快適な室温調節が可能であり、高い集中力を要するデスクワークに適しています。
■ 周辺は大使館や官公庁に近い治安の良さと落ち着きがあるエリア。ブランドイメージを重視する企業にとって、平河町アドレスは一定のステータスとなります。
まるべりーひらかわ の募集区画 (総募集面積 33.79坪)
| 図面 | 階数 | 坪数 | 月額費用 | 坪単価 | 入居可能日 | |
|---|---|---|---|---|---|---|
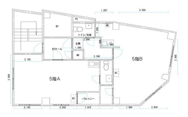
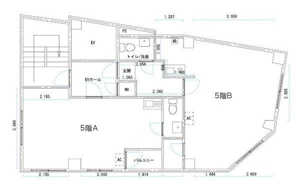
![]() | 5階 | 7.69坪 | 126,885円 | 16,500円 | 即時 | 検討リスト お問い合わせ |
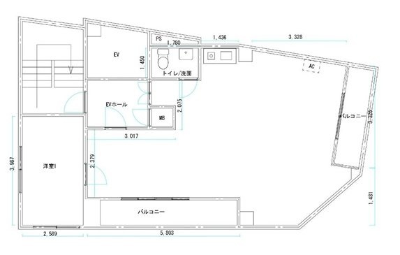
![]() | 6階 | 17.16坪 | 283,140円 | 16,500円 | 即時 | 検討リスト お問い合わせ |
![]() | 7階 | 8.94坪 | 147,510円 | 16,500円 | 即時 | 検討リスト お問い合わせ |
※月額費用、坪単価 ともに共益費込・税別の価格です
建物に関するよくある質問と回答
A. 半蔵門駅の「1番出口」から徒歩3分です。駅を出て新宿通りから一歩入った平河町エリアの落ち着いた区画に位置しています。有楽町線「麹町駅」の1番出口からも徒歩5分程度でアクセス可能です。
Q. 建物の耐震性能はどうなっていますか?
A. 1991年竣工の建物ですので、新耐震基準に適合して設計・建築されています。現行の法的基準を満たした構造であり、地震リスクに対する安全性は高い水準にあります。
Q. トイレの仕様について教えてください。
A. 各フロアの専有部内に専用のトイレが設置されています。男女共用の仕様ですが、ワンフロア占有物件のため自社スタッフのみで使用でき、衛生管理やプライバシーの面でも自社の裁量で運用できます。
Q. 24時間の入退館は可能ですか?
A. 機械警備を導入しており、24時間365日いつでも入退館が可能です。夜間や休日の勤務が発生する場合でも、セキュアな環境を維持したままオフィスを利用できる体制が整っています。
Q. 周辺のランチ環境やコンビニは?
A. 物件周辺には落ち着いた雰囲気のカフェや飲食店が点在しています。コンビニも徒歩圏内に複数あり、麹町・半蔵門駅方面へ向かえば銀行や郵便局も揃うため、日常の事務環境に困ることはありません。
地図
東京都千代田区平河町1-7-19 地図をクリックして拡大できます
まるべりーひらかわ の外観イメージ
落ち着いた色調の石張りを採用した外装が、平河町らしい格式の高さを感じさせます。地上8階建てのスリムなフォルムながら、細部まで丁寧に維持管理されている様子がうかがえ、企業の顔として相応しい堅実な印象を来訪者に与えます。周辺の街並みに調和しつつも、独自の存在感を放つデザインです。








まるべりーひらかわ の周辺イメージ
平河町1丁目は、都心の中枢にありながら、大通りの喧騒から遮断された静穏なエリアです。周辺には法律事務所や会計事務所が多く、落ち着いたビジネスライフを望む企業に適しています。徒歩圏内には国立劇場や皇居の緑もあり、オンとオフを切り替えやすい潤いのあるロケーションです。

まるべりーひらかわ のアクセス・ロケーション
半蔵門・麹町・永田町を拠点に、都内全域をスマートにカバーできる戦略的なポジション。
■ 半蔵門駅徒歩3分の瞬発力: 半蔵門線で渋谷、大手町へダイレクトアクセス。移動時間を最小限に抑え、営業効率やビジネスの機動力を最大化することが期待できます。
■ 多路線利用のメリット: 有楽町線、南北線、丸ノ内線、JR線が徒歩圏内に集結。鉄道遅延時の回避ルートが豊富なだけでなく、広範囲からの優秀な人材確保にも寄与する立地です。
■ 政治・経済の中枢に近いステータス: 官公庁や大手企業が集中するエリアに隣接しており、信頼性が重視される業種において、この場所に拠点を置くこと自体が一定のブランド力となります。
まるべりーひらかわ の募集終了区画
| 図面 | 階数 | 坪数 | 月額費用 | 坪単価 | 入居可能日 | |
|---|---|---|---|---|---|---|
準備中 | 2階 | 19.90坪 | お問い合わせください | 募集終了 | 検討リスト | |
準備中 | 3階 | 23.99坪 | お問い合わせください | 募集終了 | 検討リスト | |
![]() | 5階 | 10.85坪 | お問い合わせください | 募集終了 | 検討リスト |
まるべりーひらかわ が選ばれる理由
■ 平河町アドレスという信頼の基盤
都心の中枢でありながら、静穏な環境を維持できる希少なロケーション。来訪者に対しても企業の安定感と品格を印象付けることができる、ステータスの高い拠点となります。
■ 高い独立性を誇るワンフロア占有
約20坪というサイズでフロアを独占できるため、プライバシー確保とセキュリティコントロールが容易です。自社専用の空間として、集中して業務に取り組める環境が評価されています。
■ 新耐震基準・駅近の「実利スペック」
半蔵門駅徒歩3分という利便性に加え、1991年竣工の安全基準をクリア。安全性と機動力という、経営課題に直結する要素をバランスよく備えた合理的な選択肢です。
近くの物件紹介
千代田区のエリア
近くの駅
| 取扱態様 | 仲介 |
|---|---|
| 取扱会社 | 株式会社アドマイアー 東京都中央区日本橋3-2-3ユニバース第1ビル2F TEL. 03-5204-1031 宅地建物取引業免許 東京都知事(3)第94663号 マンション管理業免許 国土交通大臣(2)第034224号 賃貸住宅管理業免許 国土交通大臣(01)第005938号 |





























