合人社東京秋葉原ビル(千代田区、岩本町、秋葉原、馬喰町) の賃貸オフィス情報

- 所在地
- 東京都千代田区岩本町3-5-2
- 最寄り駅
- 岩本町駅徒歩3分、秋葉原駅徒歩5分、馬喰町駅徒歩8分
- 竣工
- 1985年
- 規模
- 地上9階
- 構造
- RC造(鉄筋コンクリート造)
- 耐震基準
- 新耐震基準適合
- セキュリティ
- 機械警備(24時間監視)
- エントランス
- 平日開放
- エレベーター総数
- 1基
- 駐車場設備
- 無
- 設備
- 屋上テラス(ルーフトップテラス)、 トイレ男女別
合人社東京秋葉原ビル の物件特徴・おすすめポイント
■大規模リニューアル済み!白と木目調を多用したハイセンスな内装デザインが魅力
■セットアップ・居抜き対応区画あり!初期費用を抑えて即座に業務を開始できます
■20坪前後のコンパクトオフィスながら、室内には「専用の男女別トイレ」を完備
■機械警備×24時間利用可能。多様なワークスタイルに柔軟に対応できる管理体制です
合人社東京秋葉原ビル の募集区画 (総募集面積 64.49坪)
| 図面 | 階数 | 坪数 | 月額費用 | 坪単価 | 入居可能日 | |
|---|---|---|---|---|---|---|
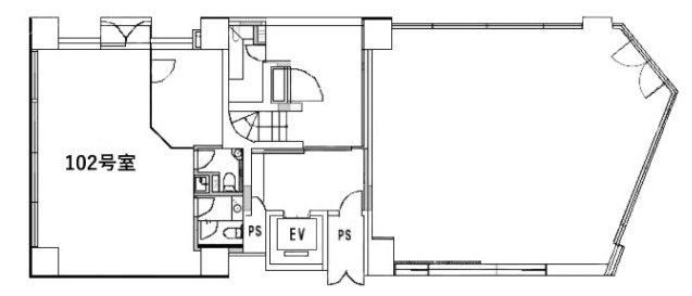
![]() | 1階 | 17.27坪 | お問い合わせください | 2026/6/中 | 検討リスト お問い合わせ | |
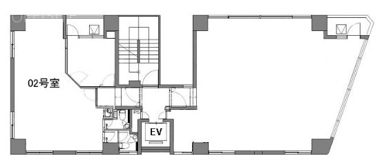
![]() | 8階 | 19.46坪 | 447,580円 | 23,000円 | 2026/8 | 検討リスト お問い合わせ |
準備中 | 9階 | 27.76坪 | 638,480円 | 23,000円 | 即時 | 検討リスト お問い合わせ |
※月額費用、坪単価 ともに共益費込・税別の価格です
建物に関するよくある質問と回答
A1. 都営新宿線「岩本町駅」から徒歩3分です。靖国通りを秋葉原駅方面へ進むと左側に位置しています。また、東京メトロ日比谷線「秋葉原駅」から徒歩5分、JR「秋葉原駅」からも徒歩7分でアクセス可能な、非常に利便性の高い立地です。
Q2. 合人社東京秋葉原ビルの内装やデザインの特徴を教えてください。
A2. 合人社東京秋葉原ビルは大規模リニューアルが行われており、室内は白と木目調を基調としたモダンなデザイン内装が施されています。特にセットアップ・居抜き区画では、そのまま業務を開始できる洗練された空間が提供されており、企業のブランディング向上にも寄与します。
Q3. 合人社東京秋葉原ビルのセキュリティ体制はどうなっていますか?
A3. 合人社東京秋葉原ビルは「機械警備」を導入しており、24時間の利用が可能です。夜間や休日でも安心して稼働できる体制が整っており、多様な働き方を目指すIT企業やクリエイティブ関連のテナント様にも選ばれています。
Q4. 合人社東京秋葉原ビルの空調やトイレなどの室内スペックを教えてください。
A4. 室内は「個別空調」を採用しており、区画ごとにきめ細やかな室温設定が可能です。また、20坪前後の区画であっても「男女別トイレ」を専用設備として完備しており、プライバシーと清潔感に配慮した設計となっています。
Q5. 合人社東京秋葉原ビル周辺の利便性について教えてください。
A5. 靖国通り沿いという好立地のため、近隣にはコンビニ、飲食店、銀行、カフェが非常に充実しています。秋葉原の電気街や商業施設も徒歩圏内のため、日常の買い物やビジネスランチ、金融手続きに困ることはありません。
地図
東京都千代田区岩本町3-5-2 地図をクリックして拡大できます
合人社東京秋葉原ビル の外観イメージ
合人社東京秋葉原ビルは、地上9階建てのシャープで洗練された佇まいのオフィスビルです。靖国通りに面した大きな窓面が特徴で、1985年竣工の新耐震基準物件ながら、リニューアルによってビル全体に現代的な清潔感が漂います。靖国通りの街並みにおいても視認性が高く、来訪者にスマートな印象を与える外装デザインとなっています。










合人社東京秋葉原ビル の周辺イメージ
千代田区岩本町3丁目は、神田と秋葉原の結節点として、落ち着いたビジネス環境と高度な商業利便性が共存するエリアです。合人社東京秋葉原ビルの足元には靖国通りの賑わいがあり、多数の飲食店やコンビニエンスストアが点在。さらにメガバンクの支店や郵便局も至近に揃っており、少数精鋭のチームがビジネスを円滑に進めるためのインフラが完璧に整っています。


合人社東京秋葉原ビル のアクセス・ロケーション
■ 駅徒歩分数
都営新宿線 「岩本町駅」 徒歩3分
東京メトロ日比谷線 「秋葉原駅」 徒歩5分
JR山手線・京浜東北線・総武線 「秋葉原駅」 徒歩7分
JR総武線快速 「馬喰町駅」 徒歩8分
■ 主要エリアへのアクセス
「秋葉原駅」を利用すれば、東京駅まで約4分、新宿駅まで約12分と、都心主要駅へダイレクトに繋がります。「岩本町駅」からは新宿方面へのアクセスも良く、合計5路線以上を使い分けることで、都内全域の取引先へスピーディーに駆けつけることが可能です。
■ エリア特性
千代田区岩本町アドレスは、IT・製造・商社など多様な企業が集まる伝統あるビジネス街です。靖国通り沿いという象徴的なロケーションは、企業の認知度を高め、広域からの人材採用においても強力なアドバンテージとなります。
合人社東京秋葉原ビル の募集終了区画
| 図面 | 階数 | 坪数 | 月額費用 | 坪単価 | 入居可能日 | |
|---|---|---|---|---|---|---|
![]() | 1階 | 25.45坪 | お問い合わせください | 募集終了 | 検討リスト | |
![]() | 1階 | 42.72坪 | お問い合わせください | 募集終了 | 検討リスト | |
準備中 | 2階 | 19.46坪 | お問い合わせください | 募集終了 | 検討リスト | |
準備中 | 2階 | 27.33坪 | お問い合わせください | 募集終了 | 検討リスト | |
![]() | 3階 | 28.48坪 | お問い合わせください | 募集終了 | 検討リスト | |
準備中 | 3階 | 47.94坪 | お問い合わせください | 募集終了 | 検討リスト | |
![]() | 3階 | 19.46坪 | お問い合わせください | 募集終了 | 検討リスト | |
準備中 | 4階 | 28.48坪 | お問い合わせください | 募集終了 | 検討リスト | |
準備中 | 4階 | 47.94坪 | お問い合わせください | 募集終了 | 検討リスト | |
![]() | 4階 | 19.46坪 | お問い合わせください | 募集終了 | 検討リスト | |
![]() | 5階 | 28.48坪 | お問い合わせください | 募集終了 | 検討リスト | |
準備中 | 5階 | 47.94坪 | お問い合わせください | 募集終了 | 検討リスト | |
準備中 | 5階 | 19.46坪 | お問い合わせください | 募集終了 | 検討リスト | |
![]() | 6階 | 28.48坪 | お問い合わせください | 募集終了 | 検討リスト | |
![]() | 6階 | 19.46坪 | お問い合わせください | 募集終了 | 検討リスト | |
準備中 | 6階 | 47.94坪 | お問い合わせください | 募集終了 | 検討リスト | |
準備中 | 7階 | 28.48坪 | お問い合わせください | 募集終了 | 検討リスト | |
準備中 | 7階 | 19.11坪 | お問い合わせください | 募集終了 | 検討リスト | |
![]() | 8階 | 28.48坪 | お問い合わせください | 募集終了 | 検討リスト | |
準備中 | 9階 | 18.96坪 | お問い合わせください | 募集終了 | 検討リスト |
合人社東京秋葉原ビル が選ばれる理由
■ リニューアルが生んだ「セットアップ・デザイン内装」
古いビルのイメージを払拭する大規模リニューアルにより、一歩足を踏み入れると新築同様の清潔感と洗練されたデザインが広がります。内装費を抑えつつ、すぐに感度の高いオフィスで働きたい企業様に最適です。
■ 20坪前後の希少な「高機能コンパクトオフィス」
このサイズ感で「男女別トイレ」と「個別空調」を完備し、さらには「靖国通り沿い」という条件をすべて満たす物件は岩本町エリアでも限られています。機能性とステータスを両立させた、実利的な選択肢です。
■ 秋葉原・神田を使いこなす「圧倒的ロケーション」
ビジネスインフラが整った岩本町の静穏さと、巨大ターミナル・秋葉原の利便性を同時に享受。営業活動、採用活動、そして社員の日常の充実度。これらすべてを高次元で叶える、2026年のマーケットでも際立つ優良物件です。
近くの物件紹介
千代田区のエリア
近くの駅
| 取扱態様 | 仲介 |
|---|---|
| 取扱会社 | 株式会社アドマイアー 東京都中央区日本橋3-2-3ユニバース第1ビル2F TEL. 03-5204-1031 宅地建物取引業免許 東京都知事(3)第94663号 マンション管理業免許 国土交通大臣(2)第034224号 賃貸住宅管理業免許 国土交通大臣(01)第005938号 |




































